横浜市中区北仲通5丁目
みなとみらい線 馬車道駅 徒歩1分
2LDK / 64.33㎡
2019年10月築
20,500万円



| 物件種別 | 中古マンション |
| 所在地 | GoogleMaps |
| 交通 | |
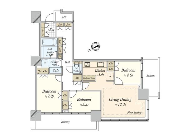
| 間取り | 3LDK |
| 専有面積 | 80.09㎡(約24.22坪) |
| 築年月 | 2019年10月築 |
| 階数 / 階建 | 23階 / 地上58階 地下1階建 |
| 向き | 北西 |
| 想定賃料 (年間) | 5,100,000円(満室時想定) |
| 想定利回り | 2.4% |
| 現行賃料 (年間) | 5,100,000円 |
| 現行利回り | 2.4% |
| 賃貸状況 | - |
| 備考 | ※利回りは、販売価格に対する年間の賃料収入(共益費等を含む)の割合で、公租公課その他当該物件を維持するために必要な費用の控除前のものです。なお、想定賃料・想定利回りは、賃料相場をもとに空室部分の賃料を加え満室時を想定して算出したものです。 ※賃料収入は、将来にわたって確実に得られることを保証するものではありません。 (調査日: 2025年12月25日現在) |
■ お部屋の特徴 ○ 23階・北西南西向き角住戸 ○ スクエアで使い勝手の良い3LDKタイプ ○ 2面バルコニー ○ LDには足元から温かい床暖房を敷設 ○ 浴室はゆとりある1620サイズ ○ 廊下収納やSto等、豊富な収納スペース ○ プライバシーに配慮されたクランク廊下 ■ オーナーチェンジ物件 ○ 表面利回り:約2.48% ○ 年間賃料収入:5,100,000円 ■ 共用施設 ○ エントランスラウンジ ○ ゲストルーム(スイート/25階・翠/5階・和/5階) ○ スタディルーム・ フィットネスルーム・ マルチアトリエ・パーティーリビング・パーティーダイニング(5階) ○ ビューラウンジ(25階) ○ スカイテラス・ハーバーテラス(屋上) ○ EV充電用平面駐車場(地下1階) ○ レンタサイクル(3階) ※ご利用時間・料金等、詳細はお問合せください。 ■ 構造 ○ 強固な地盤だからできる地面で支える「直接基礎」採用 ※地盤調査結果:N値60以上(粘性土:非常に硬い、砂質土:非常に密) ○ ハニカムダンパーを組み込んだ「制震構造」採用 ※ダンパーが変形時にエネルギーを吸収 ○ セントラル浄水機能(住戸内のすべての水が浄水) ■ セキュリティ ○ 24時間有人管理 AM8:00~PM8:00 コンシェルジュ(バイリンガル)が対応 PM8:00~AM8:00 警備会社が対応 ○ セキュリティネットワーク導入 三井不動産レジデンシャルサービスお客様センターと警備会社による24時間365日体制での一括管理
| 所在地 | GoogleMaps |
| 価格 | 20,500万円 |
| 交通 | |
| 管理費等 | 28,990円 |
| 修繕積立金 | 18,990円 |
| その他費用 | 地域活動推進費 500円 / 月、インターネット 1,760円 / 月 |
| 間取り | 3LDK |
| 専有面積 | 80.09㎡(約24.22坪) |
| 築年月 | 2019年10月築 |
| 階数 / 階建 | 23階 / 地上58階 地下1階建 |
| 向き | 北西 |
| バルコニー | 17.89㎡ |
| 現況 | 賃貸中 |
| 駐車場 | 空き無 |
| 建物構造 | 鉄筋コンクリート造 |
| 総戸数 | 1174戸 |
| 管理会社 | 三井不動産レジデンシャルサービス(株) |
| 管理形態 | 管理会社に全部委託 |
| 管理員の 勤務形態 | 日勤 |
| 土地権利 | 所有権 |
| 分譲会社 | 三井不動産レジデンシャル(株)、丸紅(株) (新築分譲時における売主) |
| 施工会社 | 鹿島建設(株)他 |
| 設計会社 | 鹿島建設(株) |
| 備考 | ※賃貸中(賃貸借契約引継要) |
| 引渡時期 | 相談 |
| 取引態様 | 仲介 |
| 更新日 | 2026年05月04日 |
| 次回更新予定 | 2026年05月18日 |
| 物件番号 | F8AAWA10 |
GoogleMaps
| スーパー | リンコス横浜馬車道店 約10m(徒歩1分) |
| 公園 | 北仲通北第二公園 約60m(徒歩1分) |
| 病院 | 馬車道内科クリニック 約330m(徒歩5分) |
| 小学校 | 横浜市立みなとみらい本町小学校 約1700m(徒歩22分) |
| 中学校 | 横浜市立横浜吉田中学校 約1360m(徒歩17分) |
| その他利便施設1 | ファミリーマート横浜万国橋店 約120m(徒歩2分) |
| その他利便施設2 | 横浜ランドマークタワー 約800m(徒歩10分) |
| その他利便施設3 | 横浜赤レンガ倉庫 約800m(徒歩10分) |
三井不動産リアルティ株式会社
国土交通大臣(15)第777号
0120-504-262
0120-504-262
物件の売却をご検討の方は、 はやめの査定依頼がおすすめです!
買い替えをご検討の方はこちら0120-504-262
