横浜市中区本牧大里町
根岸線 根岸駅 バス7分 本牧市民公園前 停歩5分
3LDK / 90.63㎡
2004年02月築
4,780万円



| 物件種別 | 中古マンション |
| 所在地 | GoogleMaps |
| 交通 | |
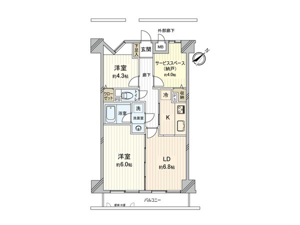
| 間取り | 2SLDK ※S・サービススペースは納戸です |
| 専有面積 | 56㎡(約16.94坪) |
| 築年月 | 1998年12月築 |
| 階数 / 階建 | 3階 / 地上14階 地下1階建 |
| 向き | 南東 |
▼立地 ・ JR京浜東北・根岸線「関内」駅 徒歩5分 ・ JR京浜東北・根岸線「桜木町」駅 徒歩6分 ・ 横浜市営地下鉄ブルーライン線「関内」駅 徒歩5分 ・ 横浜市営地下鉄ブルーライン「桜木町」駅 徒歩6分 ・ 京急本線「日ノ出町」駅 徒歩8分 ・ みなとみらい線「馬車道」駅 徒歩11分 ▼マンションの特徴 ・ 快適な暮らしを守るオートロックシステム ・ 不在時も荷物の受取が可能な宅配ボックス ・ ペット飼育可(飼育細則あり) ▼お部屋の特徴 ・ 南東向きにつき、陽当たり・通風良好 ・ お部屋に匂いがつきにくい独立型キッチン ・ 使い勝手の良い納戸 ・室内リフォーム履歴あり ▼周辺環境 ・ 2026年3月開業 大型商業施設「BASE GATE横浜関内」まで約9分(約670m) ・ スーパー「もとまちユニオン伊勢佐木町店」 まで約3分(約190m) ■ 担当者より ━━━━━━━━━━━━━━━・・・・・ 周辺環境や施設のご案内はもちろん、周辺物件も併せてご紹介できます。 また、購入に際しての諸費用、住宅ローン(月々の返済例など)等、 資金計画のご相談も承っておりますので、 ご興味がございましたら下方にございます、 「お問合せ」又は「見学予約」よりお問合せ下さい。 お電話でのご相談も受付けておりますので、 フリーコール「0120-504-262」までお気軽にお問合せ下さいませ。
| 所在地 | GoogleMaps |
| 価格 | 4,780万円 |
| 交通 | |
| 管理費等 | 7,400円 |
| 修繕積立金 | 7,280円 |
| その他費用 | - |
| 間取り | 2SLDK ※S・サービススペースは納戸です |
| 専有面積 | 56㎡(約16.94坪) |
| 築年月 | 1998年12月築 |
| 階数 / 階建 | 3階 / 地上14階 地下1階建 |
| 向き | 南東 |
| バルコニー | 6.16㎡ |
| 現況 | 居住中 |
| 駐車場 | 敷地内有 (賃貸) 空き:10台有り 月額 16,500円 (確認日:西暦2026年04月26日現在) |
| 建物構造 | 鉄骨鉄筋コンクリート造 |
| 総戸数 | 98戸 |
| 管理会社 | 日本ハウズイング(株) |
| 管理形態 | 管理会社に全部委託 |
| 管理員の 勤務形態 | 日勤 |
| 土地権利 | 所有権 |
| 分譲会社 | リゾートトラスト(株) (新築分譲時における売主) |
| 施工会社 | 三平建設(株) |
| 設計会社 | (株)池田設計 |
| 備考 | - |
| 引渡時期 | 相談 |
| 取引態様 | 仲介 |
| 更新日 | 2026年04月26日 |
| 次回更新予定 | 2026年05月10日 |
| 物件番号 | F8ABDA0B |
最新のAI技術を活用した相談サービスです。
お客様一人ひとりのニーズに合わせて最適な情報をご提供します。
リハウスAIチャットの詳しい説明はこちら
GoogleMaps
| スーパー | もとまちユニオン伊勢佐木町店 約190m(徒歩3分) |
| 公園 | 福富町西公園 約100m(徒歩2分) |
| 病院 | 関内しみずクリニック 約170m(徒歩3分) |
| 小学校 | 横浜市立本町小学校 約670m(徒歩9分) |
| 中学校 | 横浜市立横浜吉田中学校 約450m(徒歩6分) |
| その他利便施設1 | BASE GATE横浜関内 約670m(徒歩9分) |
| その他利便施設2 | ミニストップよこはま吉田町店 約90m(徒歩2分) |
| その他利便施設3 | 関内駅(JR京浜東北・根岸線) 約390m(徒歩5分) |
| その他利便施設4 | 桜木町駅(JR東日本 根岸線) 約440m(徒歩6分) |
| その他利便施設5 | トモズカトレヤプラザ伊勢佐木店 約260m(徒歩4分) |
三井不動産リアルティ株式会社
国土交通大臣(15)第777号
0120-504-262
0120-504-262
物件の売却をご検討の方は、 はやめの査定依頼がおすすめです!
買い替えをご検討の方はこちら0120-504-262

