ナイスアーバン藤沢
4,490万円



| 物件種別 | 中古マンション |
| 所在地 | GoogleMaps |
| 交通 | |
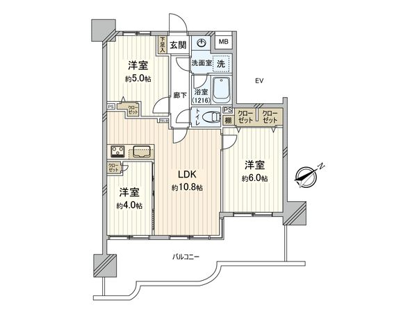
| 間取り | 3LDK |
| 専有面積 | 55.52㎡(約16.79坪) |
| 築年月 | 1996年02月築 |
| 階数 / 階建 | 2階 / 地上8階建 |
| 向き | 南東 |
この物件情報を共有する
毎月のお支払い目安
返済計画を入力すると毎月のお支払い目安を表示できます
- ローン126,746円
- 管理費+修繕積立金33,590円
- その他費用0円
おすすめポイント
設備
- 浴室乾燥機
- オートロック
- 食器洗乾燥機
特徴
- 全居室フローリング
-物件のおすすめポイント- ▼立地 ・JR東海道本線「藤沢」駅 徒歩8分 小田急電鉄江ノ島線「藤沢」駅 徒歩9分 江ノ島電鉄「藤沢」駅 徒歩11分 ・3路線利用可能で通勤・通学に便利な立地 ▼マンションの特徴 ・ペット飼育可(規約制限あり) ・オートロック付でセキュリティも安心 ▼お部屋の特徴 ・洋室約4.0帖はLDと一体利用可能 ・南東向きの窓から朝日が差し込むLDK ▼設備 ・浄水器一体型ハンドシャワー水栓 ・食器洗浄乾燥機 ・浴室換気乾燥暖房機 ・シャンプードレッサー ・3部屋から出入り可能なバルコニー ▼リフォーム内容(2025年10月) 【新規交換】給湯器、キッチン、UB、洗面台、トイレ 等 【張替】全室クロス・フローリング、フロアタイル 【その他】全室照明設置、配管部分更新 ▼周辺環境 ・商業施設まで徒歩7分圏内で住環境良好 ・入町まちかど公園 徒歩1分(約40m) ■ ご希望の住まい探しをお手伝いします ━━━━・・・ 物件の詳細・ご相談はお気軽にお問い合わせください。
リノベーション&リフォーム情報
台所(キッチン)交換 | バスルーム交換 |
トイレ交換 | 洗面化粧台交換 |
給湯器交換 |
水回り(キッチン、浴室、トイレ、洗面所、給湯器)(2025年10月)
内装(全面、全室照明設置)(2025年10月)
配管部分更新、ハウスクリーニング(2025年10月)
物件情報
| 所在地 | GoogleMaps |
| 価格 | 4,490万円 |
| 交通 | |
| 管理費等 | 15,820円 |
| 修繕積立金 | 17,770円 |
| その他費用 | - |
| 間取り | 3LDK |
| 専有面積 | 55.52㎡(約16.79坪) |
| 築年月 | 1996年02月築 |
| 階数 / 階建 | 2階 / 地上8階建 |
| 向き | 南東 |
| バルコニー | 15.01㎡ |
| 現況 | 空家 |
| 駐車場 | - |
| 建物構造 | 鉄筋コンクリート造 |
| 総戸数 | 38戸 |
| 管理会社 | ナイスコミュニティー(株)神奈川中央 |
| 管理形態 | 管理会社に全部委託 |
| 管理員の 勤務形態 | 管理員なし |
| 土地権利 | 所有権 |
| 分譲会社 | 日榮不動産(株) (新築分譲時における売主) |
| 施工会社 | 戸田建設(株)横浜支店 |
| 設計会社 | 諒建築設計事務所 |
| 備考 | ※本物件の建物構造・階数および所在階は、建築基準法上は地上5階建・地下2階付の地下1階部分となります。 |
| 引渡時期 | 即時 |
| 取引態様 | 仲介 |
| 更新日 | 2025年11月06日 |
| 次回更新予定 | 2025年11月20日 |
| 物件番号 | F90AGB90 |
周辺情報
GoogleMaps
| スーパー | スーパー三和 藤沢橋店 約270m(徒歩4分) |
| スーパー | ダイエー 藤沢店 約360m(徒歩5分) |
| 公園 | 入町まちかど公園 約40m(徒歩1分) |
| 病院 | 金子医院 約240m(徒歩3分) |
| 小学校 | 藤沢市立藤沢小学校 約270m(徒歩4分) |
| 中学校 | 藤沢市立第一中学校 約1560m(徒歩20分) |
| その他利便施設1 | さいか屋 藤沢店 約500m(徒歩7分) |
| その他利便施設2 | ファミリーマート 藤沢駅北口店 約410m(徒歩6分) |
| その他利便施設3 | スギドラッグ 三和藤沢橋店 約270m(徒歩4分) |
| その他利便施設4 | 藤沢南仲通郵便局 約180m(徒歩3分) |
取扱店舗
三井のリハウス 藤沢センター
- 営業時間10:00~18:00
- 定休日毎週火曜日・水曜日
0120-399-031
あなたへのおすすめ
藤沢市の物件情報
この物件を見学してみませんか?
この物件についてお問い合わせ
物件・住環境の詳しい情報、購入・ローン相談など、ささいなことでもお気軽にお問い合わせください。三井のリハウス 藤沢センター
- 営業時間10:00~18:00
- 定休日毎週火曜日・水曜日
0120-399-031

物件の売却をご検討の方は、 はやめの査定依頼がおすすめです!
買い替えをご検討の方はこちら見学予約
お問い合わせ
0120-399-031
- 営業時間 10:00~18:00
- 定休日 毎週火曜日・水曜日









