名古屋市名東区扇町2丁目
名古屋市東山線 星ヶ丘駅 徒歩17分
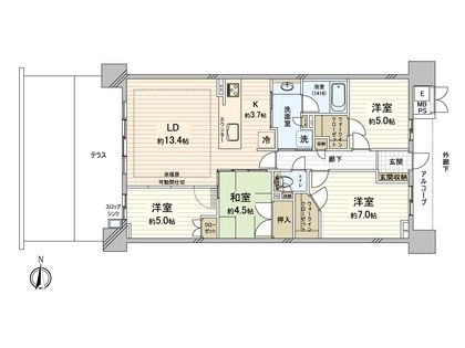
4LDK / 84.7㎡
2012年02月築
3,980万円



| 物件種別 | 中古マンション |
| 所在地 | GoogleMaps |
| 交通 | 名古屋市東山線 星ヶ丘駅 徒歩17分 |
| 間取り | 4LDK |
| 専有面積 | 86.67㎡(約26.21坪) |
| 築年月 | 2012年02月築 |
| 階数 / 階建 | 4階 / 地上8階建 |
| 向き | 南 |
予約制内覧会を開催します!
| 開催日 | 4月18日(土)10:00 ~ 17:00 4月19日(日)10:00 ~ 17:00 4月25日(土)10:00 ~ 17:00 4月26日(日)10:00 ~ 17:00 |
|---|
■ おすすめポイント 〇 平成24年2月築 〇 分譲会社:(株)大京・トヨタホーム(株) ・中電不動産(株)・(株)長谷工コーポレーション 〇 総戸数278戸のビッグコミュニティ 〇 オール電化マンション 〇 ペット飼育可(規約による制限有り) ■ お部屋の特徴 〇 フォレストヴィラ4階部分 南東側角住戸 〇 専有面積約86平米の4LDK 〇 南向きのため日当り良好です 〇 対面式カウンターキッチン 〇 バスルームは広々とした1620サイズ 〇 リビングダイニングに床暖房あり ■ 共用部分・施設 〇 地下鉄「星ヶ丘」駅まで居住者専用のシャトルバスが運行 〇 ホテルライクなコンシェルジュサービス 〇 不在時に荷物が受け取れる宅配ボックス 〇 ゲストルーム・スタディールーム・キッズルーム等の共用施設充実
| 所在地 | GoogleMaps |
| 価格 | 3,980万円 |
| 交通 | 名古屋市東山線 星ヶ丘駅 徒歩17分 |
| 管理費等 | 17,700円 |
| 修繕積立金 | 13,000円 |
| その他費用 | - |
| 間取り | 4LDK |
| 専有面積 | 86.67㎡(約26.21坪) |
| 築年月 | 2012年02月築 |
| 階数 / 階建 | 4階 / 地上8階建 |
| 向き | 南 |
| バルコニー | 14.78㎡ |
| 現況 | 空家 |
| 駐車場 | 敷地内有 (賃貸) 空き:5台有り 月額 2,000円〜12,000円 (確認日:西暦2025年07月11日現在) |
| 建物構造 | 鉄筋コンクリート造 |
| 総戸数 | 278戸 |
| 管理会社 | 株式会社大京アステージ |
| 管理形態 | 管理会社に全部委託 |
| 管理員の 勤務形態 | 日勤 |
| 土地権利 | 所有権 |
| 分譲会社 | (株)大京、トヨタホーム(株)、中電不動産(株)、他1社 (新築分譲時における売主) |
| 施工会社 | (株)長谷工コーポレーション |
| 設計会社 | (株)IAO竹田設計、(株)長谷工コーポレーション |
| 備考 | - |
| 引渡時期 | 相談 |
| 取引態様 | 仲介 |
| 更新日 | 2026年04月13日 |
| 次回更新予定 | 2026年04月27日 |
| 物件番号 | FA6APA02 |
最新のAI技術を活用した相談サービスです。
お客様一人ひとりのニーズに合わせて最適な情報をご提供します。
リハウスAIチャットの詳しい説明はこちら
GoogleMaps
| スーパー | 西山ストア 約320m(徒歩4分) |
| 公園 | 植園公園 約30m(徒歩1分) |
| 病院 | 木村病院 約730m(徒歩10分) |
| 小学校 | 西山小学校 約460m(徒歩6分) |
| 中学校 | 神丘中学校 約880m(徒歩11分) |
| その他利便施設1 | 星ヶ丘駅(名古屋市交通局 東山線) 約1300m(徒歩17分) |
| その他利便施設2 | セブンイレブン名古屋西山本通3丁目店 約630m(徒歩8分) |
0120-37-0031
0120-37-0031
物件の売却をご検討の方は、 はやめの査定依頼がおすすめです!
買い替えをご検討の方はこちら0120-37-0031

