東京ツインパークス レフトウィング
45,800万円



| 物件種別 | 中古マンション |
| 所在地 | GoogleMaps |
| 交通 | |
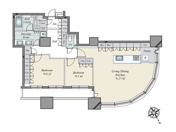
| 間取り | 2LDK |
| 専有面積 | 103.63㎡(約31.34坪) |
| 築年月 | 2002年09月築 |
| 階数 / 階建 | 38階 / 地上47階 地下2階建 |
| 向き | 北東 |
この物件情報を共有する
毎月のお支払い目安
返済計画を入力すると毎月のお支払い目安を表示できます
- ローン1,292,869円
- 管理費+修繕積立金70,320円
- その他費用0円
おすすめポイント
設備
- 床暖房
- シューズインクローク
- ゲストルーム
特徴
- 三不/三不レジ旧分譲
東京ツインパークスレフトウイングーーーーーーーーー ■リフォーム工事(2025年11月末完成) ・システムキッチン新規交換 ・浴室新規交換 ・洗面化粧台新規交換 ・トイレ新規交換 ・全室フローリング張替 ・玄関・廊下・トイレ・洗面室タイル張り ・全室クロス貼替 ・全室建具新規交換 ・洗濯パン新規交換 ・全室エアコン新規交換 ・全熱交換器新規交換 ・床暖房新規交換 ■ お部屋の特徴 ・リビングダイニングより東京タワーを望むパノラマ眺望(天候による) ・開放感のある北西・北東角部屋 ・約27.9帖の広々としたリビングダイニングキッチン ・8.2帖の主寝室 ■ マンションの特徴 ・高強度・制震構造のタワーレジデンス ・三菱地所一級建築士事務所による設計 ・24時間有人管理(9~20時フロントサービス、夜間警備員常駐) ・ふたつのタワーをつなぐ御影石づくりのエントランスホール ・車寄せのあるコーチエントランスは車路6mの幅が確保されており、運転手用の控え室もあります。 ■ 共用施設(一部有償) ○ ラウンジ(L棟、R棟1階) ○ フィットネス(R棟4階) ○ ビューラウンジ(L棟26階) ○ カードルーム(L棟26階) ○ パーティールーム(L棟26階、R棟26階) ○ ゲストルーム(L棟26階、R棟27階) 他
リノベーション&リフォーム情報
全室クロス/壁紙貼り替え | 台所(キッチン)交換 |
バスルーム交換 | トイレ交換 |
洗面化粧台交換 | 床貼り替え |
扉交換 |
水回り(キッチン、浴室、トイレ、洗面所)(2025年11月)
内装(全室クロス、床、建具)(2025年11月)
物件情報
| 所在地 | GoogleMaps |
| 価格 | 45,800万円 |
| 交通 | |
| 管理費等 | 38,300円 |
| 修繕積立金 | 32,020円 |
| その他費用 | - |
| 間取り | 2LDK |
| 専有面積 | 103.63㎡(約31.34坪) |
| 築年月 | 2002年09月築 |
| 階数 / 階建 | 38階 / 地上47階 地下2階建 |
| 向き | 北東 |
| バルコニー | 9.9㎡ |
| 現況 | 空家 |
| 駐車場 | 敷地内有 (賃貸) 空き:50台有り 月額 40,000円〜70,000円 (確認日:西暦2025年11月30日現在) |
| 建物構造 | 鉄筋コンクリート造 |
| 総戸数 | 577戸 |
| 管理会社 | 三井不動産レジデンシャルサービス(株) |
| 管理形態 | 管理会社に全部委託 |
| 管理員の 勤務形態 | 常勤 |
| 土地権利 | 所有権 |
| 分譲会社 | 三井不動産(株)、三菱地所(株)他 (新築分譲時における売主) |
| 施工会社 | 大成建設(株) |
| 設計会社 | 三菱地所(株) |
| 備考 | - |
| 引渡時期 | 相談 |
| 取引態様 | 仲介 |
| 更新日 | 2026年03月02日 |
| 次回更新予定 | 2026年03月16日 |
| 物件番号 | FAXAWA02 |
この物件のことを
AIに聞いてみませんか?
最新のAI技術を活用した相談サービスです。
お客様一人ひとりのニーズに合わせて最適な情報をご提供します。
リハウスAIチャットの詳しい説明はこちら

取扱店舗
- 営業時間
- 10:00~18:00
- 定休日
- 毎週火曜日・水曜日
- 住所
- 東京都港区白金1丁目17-3 NBFプラチナタワー1F
三井不動産リアルティ株式会社
国土交通大臣(15)第777号
三井のリアルプラン 白金高輪サロン
- 営業時間10:00~18:00
- 定休日毎週火曜日・水曜日
0120-046-031
あなたへのおすすめ
同じマンションの売買物件情報
港区の物件情報
この物件を見学してみませんか?
この物件についてお問い合わせ
物件・住環境の詳しい情報、購入・ローン相談など、ささいなことでもお気軽にお問い合わせください。三井のリアルプラン 白金高輪サロン
- 営業時間10:00~18:00
- 定休日毎週火曜日・水曜日
0120-046-031

物件の売却をご検討の方は、 はやめの査定依頼がおすすめです!
買い替えをご検討の方はこちら見学予約
お問い合わせ
0120-046-031
- 営業時間 10:00~18:00
- 定休日 毎週火曜日・水曜日



















