港区虎ノ門4丁目
東京メトロ日比谷線 神谷町駅 徒歩6分
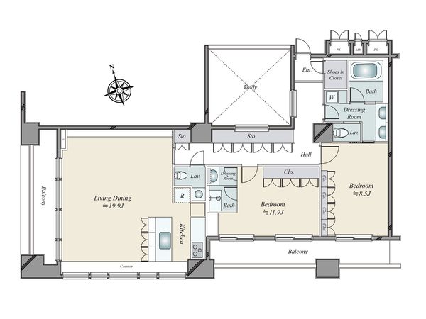
2LDK / 106.35㎡
2006年07月築
61,900万円



| 物件種別 | 中古マンション |
| 所在地 | GoogleMaps |
| 交通 | |
| 間取り | 2LDK |
| 専有面積 | 111.96㎡(約33.86坪) |
| 築年月 | 2007年04月築 |
| 階数 / 階建 | 19階 / 地上21階 地下1階建 |
| 向き | 南西 |
■ おすすめポイント ━━━━━━━━━━━━━━━・・・・・ ○ 東京メトロ日比谷線「虎ノ門ヒルズ」駅 徒歩1分 東京メトロ銀座線「虎ノ門」駅 徒歩1分 東京メトロ千代田線・日比谷線・丸ノ内線「霞が関」駅 徒歩8分 ○ 丸紅(株)旧分譲 ○ 専有面積111.96平米、2LDK ○ 19階、南西・北西角住戸 ○ 約19.9帖の広々としたリビングダイニング ○ 南西・北西角住戸につき、陽当たり、通風良好 ○ ディスポーザー、浄水器、食洗機付きシステムキッチン ○ 浴室乾燥機付きユニットバス ○ 各居室独立した間取 ■ リフォーム内容(2025年7月下旬完成) ━━━━━━━━━━━━━━━・・・・・ ○ 天井・壁クロス張替 ○ フローリング・タイル張替 ○ システムキッチン新規交換(ディスポーザー、浄水器、食洗機付) ○ ユニットバス新規交換(浴室乾燥機付) ○ 洗面化粧台新規交換 ○ トイレ新規交換 ○ 照明器具・ダウンライト新規取付 ○ 給湯器新規交換 ○ 建具新規交換 等
| 所在地 | GoogleMaps |
| 価格 | 61,900万円 |
| 交通 | |
| 管理費等 | 33,610円 |
| 修繕積立金 | 38,610円 |
| その他費用 | CATV利用料 495円 / 月、インターネット使用料 220円 / 月、組合費 170円 / 月 |
| 間取り | 2LDK |
| 専有面積 | 111.96㎡(約33.86坪) |
| 築年月 | 2007年04月築 |
| 階数 / 階建 | 19階 / 地上21階 地下1階建 |
| 向き | 南西 |
| バルコニー | 26.79㎡ |
| 現況 | 空家 |
| 駐車場 | 空き無 |
| 建物構造 | 鉄筋コンクリート造 |
| 総戸数 | 122戸 |
| 管理会社 | (株)穴吹ハウジングサービス |
| 管理形態 | 管理会社に全部委託 |
| 管理員の 勤務形態 | 常勤 |
| 土地権利 | 所有権 |
| 分譲会社 | 丸紅(株) (新築分譲時における売主) |
| 施工会社 | (株)ゼファー |
| 設計会社 | (株)日建ハウジングシステム |
| 備考 | - |
| 引渡時期 | 相談 |
| 取引態様 | 仲介 |
| 更新日 | 2026年04月03日 |
| 次回更新予定 | 2026年04月17日 |
| 物件番号 | FAXBTA06 |
最新のAI技術を活用した相談サービスです。
お客様一人ひとりのニーズに合わせて最適な情報をご提供します。
リハウスAIチャットの詳しい説明はこちら
三井不動産リアルティ株式会社
国土交通大臣(15)第777号
0120-046-031
0120-046-031
物件の売却をご検討の方は、 はやめの査定依頼がおすすめです!
買い替えをご検討の方はこちら0120-046-031

