大阪市北区大深町
大阪環状線 大阪駅 徒歩7分
1LDK / 68.93㎡
築1年未満
38,000万円



| 物件種別 | 事務所(区分所有) |
| 所在地 | GoogleMaps |
| 交通 | |
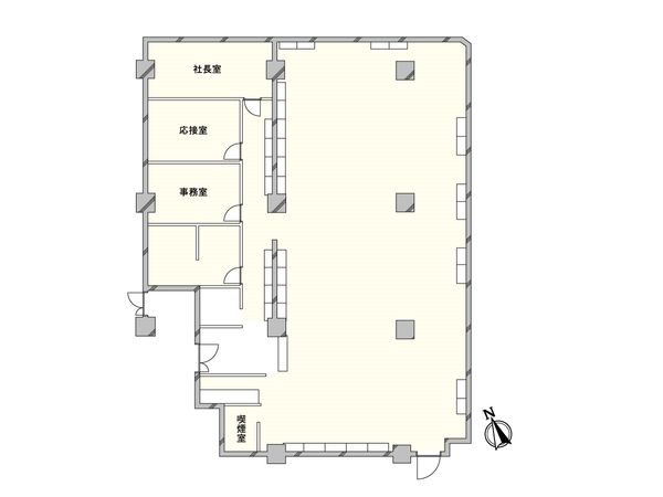
| 間取り | ワンルーム |
| 専有面積 | 303.13㎡(約91.69坪) |
| 築年月 | 1976年11月築 |
| 階数 / 階建 | 11階 / 地上16階 地下4階建 |
| 向き | 南 |
■ おすすめポイント ━━━━━━━━━━━━━━━・・・・・ ○ 大阪梅田の大型複合ビル ○ 専有面積:303.13平米 ○ 11階・北東角部分 ○ 事務所利用に適しています(規約による制限有り) ○ 複数沿線利用可能 ・JR東西線「北新地」駅 徒歩1分 ・大阪メトロ谷町線「東梅田」駅 徒歩4分 ・大阪メトロ四つ橋線「西梅田」駅 徒歩4分 ・阪神本線「大阪梅田」駅 徒歩5分 ・大阪メトロ御堂筋線「梅田」駅 徒歩5分 ・JR東海道本線/大阪環状線「大阪」駅 徒歩7分
| 所在地 | GoogleMaps |
| 価格 | 38,000万円 |
| 交通 | |
| 管理費等 | 333,745円 |
| 修繕積立金 | 121,252円 |
| その他費用 | - |
| 間取り | ワンルーム |
| 専有面積 | 303.13㎡(約91.69坪) |
| 築年月 | 1976年11月築 |
| 階数 / 階建 | 11階 / 地上16階 地下4階建 |
| 向き | 南 |
| バルコニー | - |
| 現況 | 居住中 |
| 駐車場 | - |
| 建物構造 | 鉄骨鉄筋コンクリート造 |
| 総戸数 | 280戸 |
| 管理会社 | 大阪市街地開発(株) |
| 管理形態 | 管理会社に全部委託 |
| 管理員の 勤務形態 | 日勤 |
| 土地権利 | 所有権 |
| 分譲会社 | 大阪市都市開発局 (新築分譲時における売主) |
| 施工会社 | (株)鴻池組、(株)錢高組、(株)松村組、(株)奥村組 |
| 設計会社 | 大阪市都市開発局 |
| 備考 | ■現況:使用中 |
| 引渡時期 | 相談 |
| 取引態様 | 仲介 |
| 更新日 | 2026年04月17日 |
| 次回更新予定 | 2026年05月01日 |
| 物件番号 | FBGBAA0C |
0120-3815-31
0120-3815-31
物件の売却をご検討の方は、 はやめの査定依頼がおすすめです!
買い替えをご検討の方はこちら0120-3815-31
