渋谷区宇田川町
東急東横線 渋谷駅 徒歩9分
2LDK / 165.5㎡
2020年07月築
137,000万円



| 物件種別 | 中古マンション |
| 所在地 | GoogleMaps |
| 交通 | |
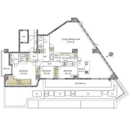
| 間取り | 3LDK |
| 専有面積 | 214.98㎡(約65.03坪) |
| 築年月 | 2024年03月築 |
| 階数 / 階建 | 4階 / 地上6階 地下1階建 |
| 向き | 北西 |
予約制内覧会を開催します!
| 開催日 | 4月25日(土)10:00 ~ 17:00 4月26日(日)10:00 ~ 17:00 |
|---|
■ 交通アクセス━━━━━━━━━━━━━━━・・・・・ 〇 東急東横線「代官山」駅 徒歩10分 〇 東急東横線・東京メトロ日比谷線「中目黒」駅 徒歩13分 〇 JR山手線「渋谷」駅 徒歩14分 ■ おすすめポイント━━━━━━━━━━━━━━━・・・・・ 〇 2024年3月 築後未入居 〇 専有面積214.98平米、3LDKの間取り 〇 積水ハウス旧分譲の「グランドメゾン」シリーズ 〇 北西×北東×南の3方向角住戸により陽当り・通風良好 〇 西郷山公園の緑を望むリビングダイニング 〇 1フロア2部屋のみのプライベート性の高いお部屋位置 〇 ハイルーフ機械式駐車場専用使用権付(月額60,000円、規制有) 〇 約60.7帖の広々としたLDK 〇 各居室約6帖以上 〇 29.37平米のルーフバルコニー付 〇 WIC等、豊富な収納スペース 〇 キッチンには食洗機・ディスポーザー・浄水器付き 〇 バス2か所、トイレ3か所有 〇 2ボウル洗面 〇 ペット飼育可能(細則有)
| 所在地 | GoogleMaps |
| 価格 | 137,000万円 |
| 交通 | |
| 管理費等 | 162,500円 |
| 修繕積立金 | 60,200円 |
| その他費用 | インターネット利用料 2,805円 / 月、付設駐車場使用料 60,000円 / 月、町内会費(任意) 200円 / 月 |
| 間取り | 3LDK |
| 専有面積 | 214.98㎡(約65.03坪) |
| 築年月 | 2024年03月築 |
| 階数 / 階建 | 4階 / 地上6階 地下1階建 |
| 向き | 北西 |
| バルコニー | 10.82㎡ |
| ルーフバルコニー | 29.37㎡ |
| 現況 | 空家 |
| 駐車場 | - |
| 建物構造 | 鉄筋コンクリート造 |
| 総戸数 | 14戸 |
| 管理会社 | 積水ハウスGMパートナーズ(株) |
| 管理形態 | 管理会社に全部委託 |
| 管理員の 勤務形態 | 日勤 |
| 土地権利 | 所有権 |
| 分譲会社 | 積水ハウス(株) (新築分譲時における売主) |
| 施工会社 | (株)鴻池組 |
| 備考 | - |
| 引渡時期 | 相談 |
| 取引態様 | 仲介 |
| 更新日 | 2026年04月12日 |
| 次回更新予定 | 2026年04月26日 |
| 物件番号 | FBIAWA01 |
最新のAI技術を活用した相談サービスです。
お客様一人ひとりのニーズに合わせて最適な情報をご提供します。
リハウスAIチャットの詳しい説明はこちら
GoogleMaps
| スーパー | サミットストア代官山鉢山町店 約140m(徒歩2分) |
| 病院 | 足高・森内科クリニック 約540m(徒歩7分) |
| 小学校 | 渋谷区立猿楽小学校 約720m(徒歩9分) |
| 中学校 | 渋谷区立鉢山中学校 約790m(徒歩10分) |
| その他利便施設1 | ファミマ!!代官山店 約390m(徒歩5分) |
| その他利便施設2 | ドン・キホーテ中目黒本店 約560m(徒歩7分) |
| その他利便施設3 | 目黒東山一郵便局 約640m(徒歩8分) |
| その他利便施設4 | さくら薬局中目黒店 約540m(徒歩7分) |
三井不動産リアルティ株式会社
国土交通大臣(15)第777号
0120-923-731
0120-923-731
物件の売却をご検討の方は、 はやめの査定依頼がおすすめです!
買い替えをご検討の方はこちら0120-923-731

