ヴェーゼント赤坂新坂
29,800万円



| 物件種別 | 中古マンション |
| 所在地 | GoogleMaps |
| 交通 | |
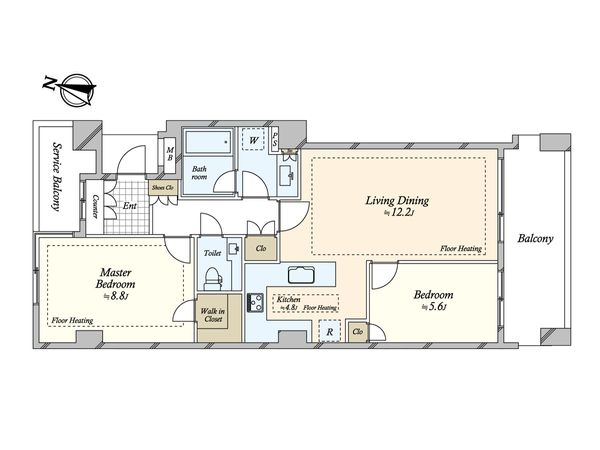
| 間取り | 2LDK |
| 専有面積 | 70.17㎡(約21.22坪) |
| 築年月 | 2001年03月築 |
| 階数 / 階建 | 4階 / 地上8階 地下1階建 |
| 向き | 南東 |
この物件情報を共有する
おすすめポイント
設備
- 床暖房
- ウォークインクローゼット
- 浴室乾燥機
- オートロック
-物件のおすすめポイント- 赤坂8丁目 青山通りから南側に少し入った静かな立地 ペット飼育可(規約制限有り) 体高50cm以下の小型の犬(成獣) 体高30cm以下の小型の猫(成獣) ※犬、猫の合計2頭以内など規約制限あります ▼お部屋の特徴 ・鉄筋コンクリート造地上8階地下1階建の4階部分 ・南東×北西向き住戸 ・リビング・主寝室には床暖房を設置 ・室内リノベーション実施済(2026年2月完了) ▼リノベーション内容(2026年2月完了) ・フローリング、クロス新規張替 ・一部床新規タイル貼り ・ユニットバス、追焚・浴室乾燥機、洗面化粧台新規交換 ・キッチン、シャワートイレ、防水パン新規交換 ・エアコン、建具新規交換 ・ダウンライト、間接照明新規造作 ・ハウスクリーニング 他 ▼交通 ・東京メトロ銀座線・半蔵門線「青山一丁目」駅 徒歩4分 ・都営大江戸線「青山一丁目」駅 徒歩4分 ▼マンションの特徴 ・第二種住居地域に属する鉄筋コンクリート造 ・1駅3路線利用可能 ■ ご希望の住まい探しをお手伝いします ━━━━━・・・ 物件の詳細・ご相談はお気軽にお問い合わせください。
リノベーション&リフォーム情報
全室クロス/壁紙貼り替え | 台所(キッチン)交換 |
バスルーム交換 | トイレ交換 |
洗面化粧台交換 | 床貼り替え |
扉交換 |
水回り(キッチン、浴室、トイレ、洗面所、防水パン新規交換)(2026年2月)
内装(全室クロス、床、建具、ハウスクリーニング)(2026年2月)
物件情報
| 所在地 | GoogleMaps |
| 価格 | 29,800万円 |
| 交通 | |
| 管理費等 | 23,160円 |
| 修繕積立金 | 21,620円 |
| その他費用 | - |
| 間取り | 2LDK |
| 専有面積 | 70.17㎡(約21.22坪) |
| 築年月 | 2001年03月築 |
| 階数 / 階建 | 4階 / 地上8階 地下1階建 |
| 向き | 南東 |
| バルコニー | 11.28㎡ |
| 現況 | 空家 |
| 駐車場 | - |
| 建物構造 | 鉄筋コンクリート造 |
| 総戸数 | 30戸 |
| 管理会社 | エム・エフ・リビングサポート(株) |
| 管理形態 | 管理会社に全部委託 |
| 管理員の 勤務形態 | 日勤 |
| 土地権利 | 所有権 |
| 分譲会社 | 三井物産(株) (新築分譲時における売主) |
| 施工会社 | 前田建設工業(株) |
| 設計会社 | (株)小林建築研究所 |
| 備考 | サービスバルコニー:5.96平米あり |
| 引渡時期 | 相談 |
| 取引態様 | 仲介 |
| 更新日 | 2026年04月20日 |
| 次回更新予定 | 2026年05月04日 |
| 物件番号 | FBIBGA3E |
この物件のことを
AIに聞いてみませんか?
最新のAI技術を活用した相談サービスです。
お客様一人ひとりのニーズに合わせて最適な情報をご提供します。
リハウスAIチャットの詳しい説明はこちら

周辺情報
GoogleMaps
| 公園 | 高橋是清翁記念公園 約230m(徒歩3分) |
| 病院 | 山王メディカルセンター 約180m(徒歩3分) |
| その他利便施設1 | ファミリーマート 青山外苑東通り 約170m(徒歩3分) |
| その他利便施設2 | タリーズコーヒー青山一丁目店 約240m(徒歩3分) |
| その他利便施設3 | Very 新青山 約300m(徒歩4分) |
| その他利便施設4 | 赤坂郵便局 約220m(徒歩3分) |
| その他利便施設5 | 青山ツイン 約240m(徒歩3分) |
| その他利便施設6 | プラースカナダ 約130m(徒歩2分) |
取扱店舗
- 営業時間
- 10:00~18:00
- 定休日
- 毎週水曜日
- 住所
- 東京都渋谷区桜丘町3-4 渋谷サクラステージ SAKURAサイド 4F
三井不動産リアルティ株式会社
国土交通大臣(15)第777号
三井のリハウス 渋谷センター
- 営業時間10:00~18:00
- 定休日毎週水曜日
0120-923-731
あなたへのおすすめ
同じマンションの売買物件情報
港区の物件情報
この物件を見学してみませんか?
この物件についてお問い合わせ
物件・住環境の詳しい情報、購入・ローン相談など、ささいなことでもお気軽にお問い合わせください。三井のリハウス 渋谷センター
- 営業時間10:00~18:00
- 定休日毎週水曜日
0120-923-731

物件の売却をご検討の方は、 はやめの査定依頼がおすすめです!
買い替えをご検討の方はこちら見学予約
お問い合わせ
0120-923-731
- 営業時間 10:00~18:00
- 定休日 毎週水曜日










