入間市久保稲荷1丁目
西武池袋・豊島線 武蔵藤沢駅 バス14分 入間扇町屋団地 停歩5分
4LDK / 90.57㎡
1988年12月築
1,280万円



| 物件種別 | 中古マンション |
| 所在地 | GoogleMaps |
| 交通 | 西武池袋・豊島線 武蔵藤沢駅 バス14分 入間扇町屋団地 停歩5分 |
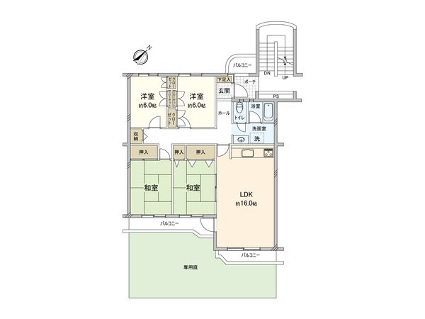
| 間取り | 4LDK |
| 専有面積 | 90.2㎡(約27.28坪) |
| 築年月 | 1983年07月築 |
| 階数 / 階建 | 1階 / 地上5階建 |
| 向き | 南東 |
-物件のおすすめポイント- ▼立地 ・西武池袋線 武蔵藤沢駅 バス14分 「入間扇町屋団地」 停歩5分 ▼マンションの特徴 ・南東向き・専用庭付住戸(面積不明) ▼お部屋の特徴 ・LDKと一体利用可能な和室を設置した4LDK住戸 ・全居室6帖以上 LDK約16帖の使いやすい間取りです ・南東向きにある大きな窓から日差しが入るLDKと和室 ▼設備 ・窓付の明るい浴室 ・バスルーム・トイレの独立設計で快適な毎日 ・プライバシーに配慮した玄関ポーチ ▼周辺環境 ・ 公園と緑に囲まれた閑静な住宅街 ■ ご希望の住まい探しをお手伝いします ━━━━━・・・ 物件の詳細・ご相談はお気軽にお問い合わせください。
| 所在地 | GoogleMaps |
| 価格 | 1,280万円 |
| 交通 | 西武池袋・豊島線 武蔵藤沢駅 バス14分 入間扇町屋団地 停歩5分 |
| 管理費等 | 2,500円 |
| 修繕積立金 | 12,500円 |
| その他費用 | 合同施設修繕積立金 1,000円 / 月、専用庭使用料 1,000円 / 月 |
| 間取り | 4LDK |
| 専有面積 | 90.2㎡(約27.28坪) |
| 築年月 | 1983年07月築 |
| 階数 / 階建 | 1階 / 地上5階建 |
| 向き | 南東 |
| バルコニー | 11.26㎡ |
| 現況 | 空家 |
| 駐車場 | - |
| 建物構造 | 鉄筋コンクリート造 |
| 管理形態 | 自主管理 |
| 管理員の 勤務形態 | 管理員なし |
| 土地権利 | 所有権 |
| 分譲会社 | 埼玉県住宅供給公社 (新築分譲時における売主) |
| 備考 | - |
| 引渡時期 | 相談 |
| 取引態様 | 仲介 |
| 更新日 | 2026年04月25日 |
| 次回更新予定 | 2026年05月09日 |
| 物件番号 | FH2BDA11 |
最新のAI技術を活用した相談サービスです。
お客様一人ひとりのニーズに合わせて最適な情報をご提供します。
リハウスAIチャットの詳しい説明はこちら
GoogleMaps
| スーパー | ジャパンミート卸売市場入間店 約350m(徒歩5分) |
| スーパー | スーパーアルプス入間下藤沢店 約1060m(徒歩14分) |
| 公園 | 中原公園 約110m(徒歩2分) |
| 病院 | 鈴木内科医院 約460m(徒歩6分) |
| 小学校 | 入間市立東町小学校 約1000m(徒歩13分) |
| 中学校 | 入間市立東町中学校 約950m(徒歩12分) |
| その他利便施設1 | イオンスタイル入間 約1220m(徒歩16分) |
| その他利便施設2 | セブンイレブン入間市東町3丁目店 約350m(徒歩5分) |
| その他利便施設3 | ウエルシア入間扇台店 約650m(徒歩9分) |
| その他利便施設4 | 入間郵便局 約1050m(徒歩14分) |
0120-31-3531
0120-31-3531
物件の売却をご検討の方は、 はやめの査定依頼がおすすめです!
買い替えをご検討の方はこちら0120-31-3531

