白金グランドハイツ
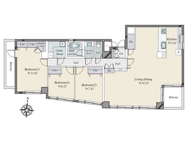
3LDK/137.27㎡(約41.52坪)
28,800万円



物件情報
おすすめポイント
取扱店舗
| 物件種別 | 中古マンション |
| 所在地 | GoogleMaps |
| 交通 | 東京メトロ南北線 白金高輪駅 徒歩7分 |
| 間取り | 3LDK |
| 専有面積 | 137.27㎡(約41.52坪) |
| 築年月 | 1983年03月築 |
| 階数 / 階建 | 7階 / 地上8階建 |
| 向き | 南東 |
この物件情報を共有する
おすすめポイント
設備
- オートロック
■物件の特徴 ○由緒ある白金の地に佇むヴィンテージマンション ○都営三田線、東京メトロ南北線の2路線利用可能 ○2026年3月末に大規模修繕工事を実施済 ○平置駐車場の空きあり(お問い合わせ頂いた時点で要確認) ■お部屋の特徴 ○専有面積137.27平米の3LDK ○南・西・東の3方向角部屋 ○30帖以上の広々としたLDK ○各部屋6帖以上かつ収納スペースあり ○2026年7月末に内装リフォーム予定 ■リフォーム内容(2026年7月に内装リフォーム予定) ※内容が変更となる場合がございます ○床材貼替 ○クロス張替 ○キッチン交換 ○浴室交換 ○洗面化粧台交換 ○トイレ交換 ○ハウスクリーニング 等
リノベーション&リフォーム情報(予定含む)
台所(キッチン)交換 | バスルーム交換 |
トイレ交換 | 洗面化粧台交換 |
床貼り替え |
水回り(キッチン、浴室、トイレ、洗面所)(2026年7月)
内装(床、壁)(2026年7月)
物件情報
| 所在地 | GoogleMaps |
| 価格 | 28,800万円 |
| 交通 | 東京メトロ南北線 白金高輪駅 徒歩7分 |
| 管理費等 | 24,700円 |
| 修繕積立金 | 46,672円 |
| その他費用 | - |
| 間取り | 3LDK |
| 専有面積 | 137.27㎡(約41.52坪) |
| 築年月 | 1983年03月築 |
| 階数 / 階建 | 7階 / 地上8階建 |
| 向き | 南東 |
| バルコニー | - |
| 現況 | 空家 |
| 駐車場 | - |
| 建物構造 | 鉄筋コンクリート造 |
| 総戸数 | 72戸 |
| 管理形態 | 管理会社に全部委託 |
| 管理員の 勤務形態 | 日勤 |
| 土地権利 | 所有権 |
| 分譲会社 | ニチメン (新築分譲時における売主) |
| 施工会社 | 松村組 |
| 備考 | - |
| 引渡時期 | 相談 |
| 取引態様 | 仲介 |
| 更新日 | 2026年04月18日 |
| 次回更新予定 | 2026年05月02日 |
| 物件番号 | FKQBGA0C |
この物件のことを
AIに聞いてみませんか?
最新のAI技術を活用した相談サービスです。
お客様一人ひとりのニーズに合わせて最適な情報をご提供します。
リハウスAIチャットの詳しい説明はこちら

取扱店舗
三井のリハウス 神宮外苑前センター
- 営業時間
- 10:00~18:00
- 定休日
- 毎週火曜日・水曜日
- 住所
- 東京都港区北青山2丁目12-13 青山KYビル2F
三井不動産リアルティ株式会社
国土交通大臣(15)第777号
三井のリハウス 神宮外苑前センター
- 営業時間10:00~18:00
- 定休日毎週火曜日・水曜日
0120-428-731
あなたへのおすすめ
港区の物件情報
この物件のリノベーションに関する問い合わせはこちらから。
リノベーション工事の可能範囲については、本物件の管理組合規約等により一定の制限が加わる場合がございます。詳細については、工事内容の確定後に判明する部分もありますので、この点については事前にお含みおきください。
リノベーションに関するお問い合わせこの物件を見学してみませんか?
この物件についてお問い合わせ
物件・住環境の詳しい情報、購入・ローン相談など、ささいなことでもお気軽にお問い合わせください。三井のリハウス 神宮外苑前センター
- 営業時間10:00~18:00
- 定休日毎週火曜日・水曜日
0120-428-731

物件の売却をご検討の方は、 はやめの査定依頼がおすすめです!
買い替えをご検討の方はこちら見学予約
お問い合わせ
0120-428-731
- 営業時間 10:00~18:00
- 定休日 毎週火曜日・水曜日









