市川市市川南3丁目
中央・総武緩行線 市川駅 徒歩10分
3LDK / 82.53㎡
2002年04月築
8,800万円



| 物件種別 | 中古マンション |
| 所在地 | GoogleMaps |
| 交通 | |
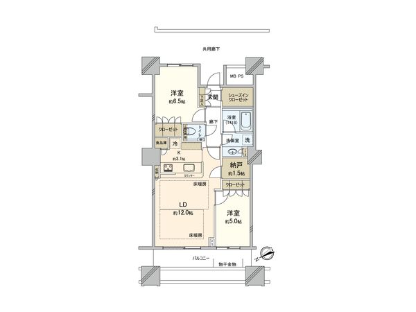
| 間取り | 2SLDK ※S・サービススペースは納戸です |
| 専有面積 | 64.81㎡(約19.6坪) |
| 築年月 | 2009年01月築 |
| 階数 / 階建 | 12階 / 地上45階 地下2階建 |
| 向き | 北西 |
返済計画を入力すると毎月のお支払い目安を表示できます
-物件のおすすめポイント- ▼立地 ・JR総武本線「市川」駅直結マンション ・ 駅前広場や屋上庭園など豊かな住環境 ・商業施設や医療施設にもなっており、便利な施設が豊富 ▼マンションの特徴 ・三井不動産レジデンシャル・野村不動産旧分譲、清水建設施工 ・ ペットと暮らせるマンション(細則有) ・ダブルオートロック採用 ・24時間セキュリティシステム ・24時間365日体制でタワー全体を見守る防災管理室 ・ 広大な眺望が迎えるゲストルームやマルチスタジオ、29階部分にはスカイラウンジ等、非日常的な空間を演出する共有施設 ▼お部屋の特徴 ・ 12階部分のため眺望良好 ・ 足元からお部屋を暖める床暖房(LD) ・ 家族の会話が弾む対面式キッチン ・ 洗面所のリネン庫はタオルや肌着類などの収納に便利 ・ 全居室に収納スペースあり ・ 約1.5帖のシューズインクローク有 ・ 収納力豊富な納戸有
| 所在地 | GoogleMaps |
| 価格 | 8,800万円 |
| 交通 | |
| 管理費等 | 17,240円 |
| 修繕積立金 | 16,790円 |
| その他費用 | インターネット使用料 660円 / 月 |
| 間取り | 2SLDK ※S・サービススペースは納戸です |
| 専有面積 | 64.81㎡(約19.6坪) |
| 築年月 | 2009年01月築 |
| 階数 / 階建 | 12階 / 地上45階 地下2階建 |
| 向き | 北西 |
| バルコニー | 8.01㎡ |
| 現況 | 居住中 |
| 駐車場 | 敷地内有 (賃貸) 空き:21台有り 月額 20,000円〜30,000円 (確認日:西暦2025年10月20日現在) |
| 建物構造 | 鉄筋コンクリート造 |
| 総戸数 | 573戸 |
| 管理会社 | 三井不動産レジデンシャルサービス(株) |
| 管理形態 | 管理会社に全部委託 |
| 管理員の 勤務形態 | 日勤 |
| 土地権利 | 所有権 |
| 分譲会社 | 三井不動産レジデンシャル(株)、野村不動産(株)、清水建設(株 (新築分譲時における売主) |
| 施工会社 | 清水建設(株)、他3社 |
| 設計会社 | (株)日建設計 |
| 備考 | - |
| 引渡時期 | 相談 |
| 取引態様 | 仲介 |
| 更新日 | 2025年12月19日 |
| 次回更新予定 | 2026年01月02日 |
| 物件番号 | FL9ASA0B |
最新のAI技術を活用した相談サービスです。
お客様一人ひとりのニーズに合わせて最適な情報をご提供します。
リハウスAIチャットの詳しい説明はこちら
GoogleMaps
| スーパー | スーパーオオゼキ市川店 約70m(徒歩1分) |
| 小学校 | 市川市立宮田小学校 約330m(徒歩5分) |
| 中学校 | 市川市立大洲中学校 約1130m(徒歩15分) |
| その他利便施設1 | 市川駅(JR東日本 総武本線) 約100m(徒歩2分) |
| その他利便施設2 | シャポー市川 約60m(徒歩1分) |
| その他利便施設3 | サンドラッグ市川店 約80m(徒歩1分) |
| その他利便施設4 | ファミリーマート市川駅西店 約50m(徒歩1分) |
0120-232-231
0120-232-231
物件の売却をご検討の方は、 はやめの査定依頼がおすすめです!
買い替えをご検討の方はこちら0120-232-231

