グランアッシュ新深江
4LDK/80.87㎡(約24.46坪)
4,998万円



物件情報
おすすめポイント
取扱店舗
| 物件種別 | 中古マンション |
| 所在地 | GoogleMaps |
| 交通 | |
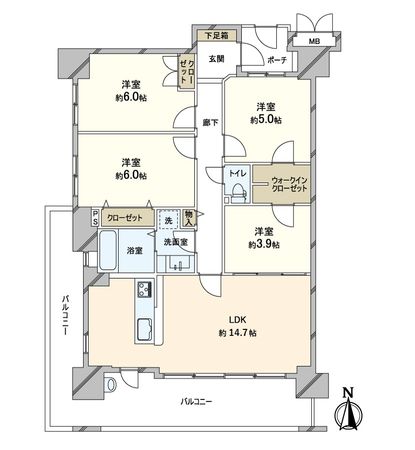
| 間取り | 4LDK |
| 専有面積 | 80.87㎡(約24.46坪) |
| 築年月 | 2003年10月築 |
| 階数 / 階建 | 3階 / 地上10階建 |
| 向き | 南 |
この物件情報を共有する
おすすめポイント
設備
- ウォークインクローゼット
-物件のおすすめポイント- ▼立地 ○地下鉄千日前線「新深江」駅まで徒歩5分 近鉄難波・奈良線「布施」駅まで徒歩10分 ▼特徴 ○平成15年10月建築 ○4LDKの間取り ○カウンターキッチンのある約14.7帖のLDK ○ペット2匹まで飼育可能なマンションです (規約による制限あり) ○南西角部屋につき日当たり通風眺望良好です ■令和8年5月リフォーム完了予定 ・システムキッチン交換 ・ユニットバス交換 ・洗面化粧台交換 ・トイレ交換 ・全室クロス張替(天井・壁) ・フローリング張替(LDK・廊下・洋室) ・CF張替(洗面・トイレ) ・フロアタイル貼替(玄関) 他 ■ ご希望の住まい探しをお手伝いします ━━━━━・・・ 物件の詳細・ご相談はお気軽にお問い合わせください。
リノベーション&リフォーム情報
全室クロス/壁紙貼り替え | 台所(キッチン)交換 |
バスルーム交換 | トイレ交換 |
洗面化粧台交換 | 床貼り替え |
給湯器交換 |
水回り(キッチン、浴室、トイレ、洗面所、給湯器)(2026年5月)
内装(全室クロス、床)(2026年5月)
物件情報
| 所在地 | GoogleMaps |
| 価格 | 4,998万円 |
| 交通 | |
| 管理費等 | 10,550円 |
| 修繕積立金 | 16,600円 |
| その他費用 | - |
| 間取り | 4LDK |
| 専有面積 | 80.87㎡(約24.46坪) |
| 築年月 | 2003年10月築 |
| 階数 / 階建 | 3階 / 地上10階建 |
| 向き | 南 |
| バルコニー | 21.76㎡ |
| 現況 | 空家 |
| 駐車場 | 空き無 |
| 建物構造 | 鉄筋コンクリート造 |
| 総戸数 | 71戸 |
| 管理会社 | 住友不動産建物サービス(株) |
| 管理形態 | 管理会社に全部委託 |
| 管理員の 勤務形態 | 日勤 |
| 土地権利 | 所有権 |
| 分譲会社 | (株)ホームズ (新築分譲時における売主) |
| 施工会社 | 栗本建設工業(株) |
| 設計会社 | (株)長谷工コーポレーション |
| 備考 | ポーチ面積:3.07平米、室外機置場面積:0.60平米 |
| 引渡時期 | 2026年06月上旬以降 |
| 取引態様 | 仲介 |
| 更新日 | 2026年05月08日 |
| 次回更新予定 | 2026年05月22日 |
| 物件番号 | FMKBCA09 |
この物件のことを
AIに聞いてみませんか?
最新のAI技術を活用した相談サービスです。
お客様一人ひとりのニーズに合わせて最適な情報をご提供します。
リハウスAIチャットの詳しい説明はこちら

取扱店舗
三井のリハウス 東大阪センター
- 営業時間
- 10:00~18:00
- 定休日
- 毎週火曜日・水曜日
- 住所
- 大阪府東大阪市長堂1丁目5-6 布施駅前セントラルビル6F
三井不動産リアルティ株式会社
国土交通大臣(15)第777号
三井のリハウス 東大阪センター
- 営業時間10:00~18:00
- 定休日毎週火曜日・水曜日
0120-372-321
大阪市東成区の物件情報
この物件を見学してみませんか?
この物件についてお問い合わせ
物件・住環境の詳しい情報、購入・ローン相談など、ささいなことでもお気軽にお問い合わせください。三井のリハウス 東大阪センター
- 営業時間10:00~18:00
- 定休日毎週火曜日・水曜日
0120-372-321

物件の売却をご検討の方は、 はやめの査定依頼がおすすめです!
買い替えをご検討の方はこちら見学予約
お問い合わせ
0120-372-321
- 営業時間 10:00~18:00
- 定休日 毎週火曜日・水曜日

