新宿区南元町
中央本線 四ツ谷駅 徒歩10分
2SLDK / 82.5㎡
2016年10月築
27,800万円



| 物件種別 | 中古マンション |
| 所在地 | GoogleMaps |
| 交通 | |
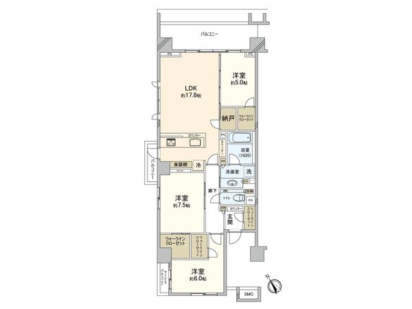
| 間取り | 3SLDK ※S・サービススペースは納戸です |
| 専有面積 | 86.46㎡(約26.15坪) |
| 築年月 | 2016年10月築 |
| 階数 / 階建 | 3階 / 地上7階 地下2階建 |
| 向き | 北東 |
返済計画を入力すると毎月のお支払い目安を表示できます
■ガーデンヒルズ四ツ谷迎賓の森■ 赤坂御用地前の安鎮坂沿いに佇む全139戸のレジデンス エントランスロビーではガラス越しに開放的なパティオをお愉しみいただけます ■ おすすめポイント 《マンション》 ○ 新宿区南元町に立地 ○ 複数駅が利用可能な好立地 JR中央線「四ツ谷」駅 徒歩11分 JR総武線「信濃町」駅 徒歩9分 都営大江戸線「国立競技場」駅 徒歩13分 東京メトロ銀座線「青山一丁目」駅 徒歩15分 ○ 住友不動産(株)旧分譲マンション×西松建設株式会社施工 ○ 2層吹抜けのエントランスロビー ○ アート空間のような開放感のあるパティオ ○ コンシェルジュサービス(一部有償) 夜間は警備員配置 ○ フィットネスルーム有(規約による制限あり) ○ ダブルオートロックシステム(エントランス、エレベーター前) ○ ペット飼育可能(規約による制限あり) 《専有部分》 ○ 専有面積約86.46平米の3SLDK ○ 3階角住戸・3方向に開口部あり ○ 約17.8帖のLDK ○ ウォークインクローゼット3箇所あり ○ キッチン横にバルコニーあり ○ 床暖房・浴室乾燥機・食洗機・ディスポーザーあり ○ 1620サイズの浴室 ■リノベーション内容(2025年11月完了予定) 【交換】キッチンコンロ・ディスポーザー・天井カセットエアコン・給湯器 など 【その他】網戸張替え・クロス張替え・エコカラット新規設置 など ■ ライフインフォメーション ━━━━━━━━━━━━━━━・・・・・ ○ マルエツプチ四谷二丁目店 約900m ○ みなみもと町公園 約50m ○ 慶應義塾大学病院 約830m ○ ファミリーマート四谷若葉店 約360m ○ コモレ四谷 約910m ○ 四谷駅前郵便局 約930m
| 所在地 | GoogleMaps |
| 価格 | 27,800万円 |
| 交通 | |
| 管理費等 | 31,426円 |
| 修繕積立金 | 13,950円 |
| その他費用 | - |
| 間取り | 3SLDK ※S・サービススペースは納戸です |
| 専有面積 | 86.46㎡(約26.15坪) |
| 築年月 | 2016年10月築 |
| 階数 / 階建 | 3階 / 地上7階 地下2階建 |
| 向き | 北東 |
| バルコニー | 14.13㎡ |
| 現況 | 空家 |
| 駐車場 | 空き無 |
| 建物構造 | 鉄筋コンクリート造 |
| 総戸数 | 139戸 |
| 管理会社 | 住友不動産建物サービス(株) |
| 管理形態 | 管理会社に全部委託 |
| 管理員の 勤務形態 | 日勤 |
| 土地権利 | 所有権 |
| 分譲会社 | 住友不動産(株) (新築分譲時における売主) |
| 施工会社 | 西松建設(株) |
| 設計会社 | 西松建設(株)・一級建築士事務所 |
| 備考 | 管理費等は調査中です。 |
| 引渡時期 | 相談 |
| 取引態様 | 仲介 |
| 更新日 | 2025年10月30日 |
| 次回更新予定 | 2025年11月13日 |
| 物件番号 | FN5ASA25 |
GoogleMaps
| その他利便施設1 | JR総武線「信濃町」駅 約700m(徒歩9分) |
| その他利便施設2 | JR中央線「四ツ谷」駅 約820m(徒歩11分) |
| その他利便施設3 | 都営大江戸線「国立競技場」駅 約1000m(徒歩13分) |
| その他利便施設4 | 東京メトロ銀座線・半蔵門線・都営大江戸線「青山一丁目」駅 約1150m(徒歩15分) |
0120-118-321
0120-118-321
物件の売却をご検討の方は、 はやめの査定依頼がおすすめです!
買い替えをご検討の方はこちら0120-118-321
