千代田区神田佐久間町4丁目
山手線 秋葉原駅 徒歩5分
2LDK / 55.79㎡
2019年11月築
16,990万円



| 物件種別 | 中古マンション |
| 所在地 | GoogleMaps |
| 交通 | |
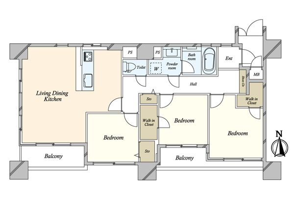
| 間取り | 3LDK |
| 専有面積 | 69.76㎡(約21.1坪) |
| 築年月 | 2000年03月築 |
| 階数 / 階建 | 8階 / 地上12階 地下1階建 |
| 向き | 南 |
■交通アクセス ◎複数路線利用可能 ○東京メトロ日比谷線「秋葉原」駅 徒歩4分 ○JR山手線、京浜東北線「秋葉原」駅 徒歩4分 ○都営新宿線「岩本町」駅 徒歩5分 ○JR中央総武線「浅草橋」駅 徒歩7分 ○都営浅草線「浅草橋」駅 徒歩11分 ■おすすめポイント ○8階部分 南・西・北の3方角住戸につき陽当たり・通風良好 ○専有面積69.76平米の3LDK ○全居室が南側バルコニーに面する為、陽当たりの良い間取りで御座います ○キッチン・浴室・玄関に窓有り ○浴室乾燥機有り ○ウォシュレット機能付きトイレ ○各居室に収納有 ○TVモニター付オートロック ○宅配ボックス有 ■リフォーム内容(2026年6月完了予定) 〇フローリング貼替 〇クッションフロア貼替(玄関・洗面室・トイレ) 〇クロス貼替 〇キッチン交換 〇ユニットバス交換 〇洗面化粧台交換 〇トイレ交換 〇給湯器交換 〇建具交換 等
| 所在地 | GoogleMaps |
| 価格 | 16,990万円 |
| 交通 | |
| 管理費等 | 8,700円 |
| 修繕積立金 | 28,180円 |
| その他費用 | - |
| 間取り | 3LDK |
| 専有面積 | 69.76㎡(約21.1坪) |
| 築年月 | 2000年03月築 |
| 階数 / 階建 | 8階 / 地上12階 地下1階建 |
| 向き | 南 |
| バルコニー | 11.8㎡ |
| 現況 | 空家 |
| 駐車場 | 空き無 |
| 建物構造 | 鉄骨鉄筋コンクリート造 |
| 総戸数 | 34戸 |
| 管理会社 | 日本ハウズイング(株) |
| 管理形態 | 管理会社に全部委託 |
| 管理員の 勤務形態 | 巡回 |
| 土地権利 | 所有権 |
| 分譲会社 | ニチメン土地建物(株) (新築分譲時における売主) |
| 施工会社 | 真柄建設(株) |
| 備考 | - |
| 引渡時期 | 2026年06月下旬以降 |
| 取引態様 | 仲介 |
| 更新日 | 2026年05月25日 |
| 次回更新予定 | 2026年06月08日 |
| 物件番号 | FN6BGA0A |
最新のAI技術を活用した相談サービスです。
お客様一人ひとりのニーズに合わせて最適な情報をご提供します。
リハウスAIチャットの詳しい説明はこちら
三井不動産リアルティ株式会社
国土交通大臣(15)第777号
0120-929-431
0120-929-431
物件の売却をご検討の方は、 はやめの査定依頼がおすすめです!
買い替えをご検討の方はこちら0120-929-431

