川口市原町
京浜東北・根岸線 川口駅 徒歩12分
2SLDK / 62.11㎡
1999年11月築
4,980万円



| 物件種別 | 中古マンション |
| 所在地 | GoogleMaps |
| 交通 | 京浜東北・根岸線 川口駅 徒歩12分 |
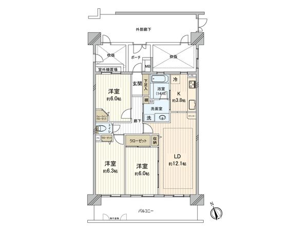
| 間取り | 3LDK |
| 専有面積 | 75.6㎡(約22.86坪) |
| 築年月 | 1999年11月築 |
| 階数 / 階建 | 7階 / 地上8階建 |
| 向き | 南西 |
-物件のおすすめポイント- ▼立地 ・京浜東北・根岸線 「川口」駅 徒歩12分 ▼マンションの特徴 ・住戸数131戸のビッグコミュニティ ・24時間荷物が受け取れる宅配BOX利用可能 ・来客時に便利なTVモニター付オートロック採用 ・24時間安全監視システム「コスモコール24」採用 ・子供の遊び場に便利なキッズガーデン、共用ガーデン ▼お部屋の特徴 ・8階建7階部分、南向きにつき陽当たり・眺望・通風良好 ・全居室フローリング貼り、フルフラット設計採用 ・洗面室は2WAY設計採用 家事動線が考えられた使いやすい間取りです ・全居室6帖以上 ▼設備 ・浄水器付システムキッチン ・温水洗浄便座付トイレ ・三面鏡付洗面化粧台 ・浴室換気乾燥機付オートバス ・ウォークインクローゼットをはじめ収納スペース充実 ▼周辺環境 ・コモディイイダ仲町店まで約280m ・オーケー 川口店まで約750m ■ ご希望の住まい探しをお手伝いします ━━━━━・・・ 物件の詳細・ご相談はお気軽にお問い合わせください。
| 所在地 | GoogleMaps |
| 価格 | 4,980万円 |
| 交通 | 京浜東北・根岸線 川口駅 徒歩12分 |
| 管理費等 | 6,000円 |
| 修繕積立金 | 13,250円 |
| その他費用 | 町会費 300円 / 月 |
| 間取り | 3LDK |
| 専有面積 | 75.6㎡(約22.86坪) |
| 築年月 | 1999年11月築 |
| 階数 / 階建 | 7階 / 地上8階建 |
| 向き | 南西 |
| バルコニー | 16㎡ |
| 現況 | 居住中 |
| 駐車場 | 敷地内有 (賃貸) 空き:5台有り 月額 12,500円〜15,000円 (確認日:西暦2025年12月22日現在) |
| 建物構造 | 鉄筋コンクリート造 |
| 総戸数 | 131戸 |
| 管理会社 | 三菱地所コミュニティ株式会社 |
| 管理形態 | 管理会社に全部委託 |
| 管理員の 勤務形態 | 日勤 |
| 土地権利 | 所有権 |
| 分譲会社 | (株)リクルートコスモス、上尾興業(株) (新築分譲時における売主) |
| 施工会社 | 三井プレコン(株)、前田建設工業(株) |
| 設計会社 | ジャパン・アートプランニング(株) |
| 備考 | - |
| 引渡時期 | 相談 |
| 取引態様 | 仲介 |
| 更新日 | 2026年05月01日 |
| 次回更新予定 | 2026年05月15日 |
| 物件番号 | FQ3AWA1A |
最新のAI技術を活用した相談サービスです。
お客様一人ひとりのニーズに合わせて最適な情報をご提供します。
リハウスAIチャットの詳しい説明はこちら
GoogleMaps
| スーパー | コモディイイダ仲町店 約280m(徒歩4分) |
| スーパー | オーケー 川口店 約750m(徒歩10分) |
| 公園 | 仙太郎第1公園 約260m(徒歩4分) |
| 公園 | 南町公園 約190m(徒歩3分) |
| 病院 | 千葉外科内科病院 約120m(徒歩2分) |
| その他利便施設1 | ヨークマート・フードセントラル ララガーデン川口店 約890m(徒歩12分) |
| その他利便施設2 | ローソン 川口六丁目店 約380m(徒歩5分) |
| その他利便施設3 | ローソン・スリーエフ 川口飯塚三丁目店 約410m(徒歩6分) |
0120-929-531
0120-929-531
物件の売却をご検討の方は、 はやめの査定依頼がおすすめです!
買い替えをご検討の方はこちら0120-929-531

