江戸川区南小岩6丁目
中央・総武緩行線 小岩駅 徒歩1分
2LDK / 60.52㎡
2022年03月築
9,280万円



| 物件種別 | 中古マンション |
| 所在地 | GoogleMaps |
| 交通 | 中央・総武緩行線 小岩駅 徒歩2分 |
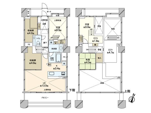
| 間取り | 3LDK |
| 専有面積 | 75.46㎡(約22.82坪) |
| 築年月 | 2007年04月築 |
| 階数 / 階建 | 23階 / 地上24階建 |
| 向き | 南 |
返済計画を入力すると毎月のお支払い目安を表示できます
-物件のおすすめポイント- ▼立地 ・JR中央・総武緩行線「小岩」駅 徒歩2分 ▼特徴 ・ 専有面積75.46平米 / メゾネット ・ 南向き/3LDK+2ロフト+2収納庫 ・24階建23階部分につき眺望良好 ・約3.6mの開放的な天井高(LD部分) ・上部吹抜があり明るく陽当りの良いお部屋です (玄関・居室・LD) ・ 6.07平米の玄関ポーチ有 ・ 平成19年4月築 ・ 総戸数183戸のビッグコミュニティ ・ エントランスとエレベーターでのダブルオートロックシステム ・ ペット飼育可能(飼育細則有)・ペット足洗場有 ▼設備 ・ LD床暖房 ・ 浴室乾燥機 ・ 対面式キッチン ・ ディスポーザー ・ 風呂追焚き機能 ・ 宅配ボックス有 ・ TVモニター付インターホン ■ ご希望の住まい探しをお手伝いします ━━━━━・・・ 物件の詳細・ご相談はお気軽にお問い合わせください。
| 所在地 | GoogleMaps |
| 価格 | 9,280万円 |
| 交通 | 中央・総武緩行線 小岩駅 徒歩2分 |
| その他費用 | - |
| 間取り | 3LDK |
| 専有面積 | 75.46㎡(約22.82坪) |
| 築年月 | 2007年04月築 |
| 階数 / 階建 | 23階 / 地上24階建 |
| 向き | 南 |
| バルコニー | 12.9㎡ |
| 現況 | 居住中 |
| 駐車場 | 敷地内有 (賃貸) 空き:10台有り 月額 17,000円〜25,000円 (確認日:西暦2026年03月09日現在) |
| 建物構造 | 鉄筋コンクリート造 |
| 総戸数 | 183戸 |
| 管理会社 | ホームライフ管理(株) |
| 管理形態 | 管理会社に全部委託 |
| 管理員の 勤務形態 | 日勤 |
| 土地権利 | 所有権 |
| 分譲会社 | (株)リクルートコスモス (新築分譲時における売主) |
| 施工会社 | (株)錢高組 |
| 設計会社 | (株)リクルートコスモス一級建築士事務所 |
| 備考 | ※管理費、修繕積立費確認中 |
| 引渡時期 | 相談 |
| 取引態様 | 仲介 |
| 更新日 | 2026年03月09日 |
| 次回更新予定 | 2026年03月23日 |
| 物件番号 | FQ8BCA05 |
最新のAI技術を活用した相談サービスです。
お客様一人ひとりのニーズに合わせて最適な情報をご提供します。
リハウスAIチャットの詳しい説明はこちら
GoogleMaps
| スーパー | イトーヨーカドー小岩店 約110m(徒歩2分) |
| 公園 | 西小岩1児童遊園 約440m(徒歩6分) |
| 小学校 | 区立西小岩小学校 約770m(徒歩10分) |
| 中学校 | 区立小岩第四中学校 約1000m(徒歩13分) |
| その他利便施設1 | ファミリーマート小岩駅東店 約30m(徒歩1分) |
| その他利便施設2 | クリエイトSD JR小岩駅前店 約120m(徒歩2分) |
0120-926-531
0120-926-531
物件の売却をご検討の方は、 はやめの査定依頼がおすすめです!
買い替えをご検討の方はこちら0120-926-531

