札幌市中央区北四条西18丁目
札幌市営東西線 西18丁目駅 徒歩9分
3LDK / 71.38㎡
1999年09月築
4,450万円



| 物件種別 | 中古マンション |
| 所在地 | GoogleMaps |
| 交通 | |
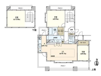
| 間取り | 3LDK |
| 専有面積 | 90.52㎡(約27.38坪) |
| 築年月 | 2004年11月築 |
| 階数 / 階建 | 5階 / 地上11階建 |
| 向き | 南 |
―物件概要— ▼立地 ・利便と自然が調和する豊かな円山の暮らし ・小学校や公園が徒歩10分圏内で子育てのしやすい環境 ▼マンションの特徴 ・暖房・給湯は灯油セントラルシステム ・季節用品もすっきり収納できるトランクルームあり(無償) ・タイヤ置場あり ・ペット飼育可(細則による制限あり) ・安心安全な屋内自転車置場あり ▼おすすめポイント ・陽光をたっぷり取り込む、心地よい南向きのリビングダイニング ・隣接地建物よりも高位置のため日当たり良好 ・全部屋がバルコニーにつながる開放的な間取り ・通風、採光に優れた三面バルコニー ・キッチン・ユーティリティは家事がしやすい2WAY動線 ・三面採光の明るい独立型システムキッチン ・火を使わない安心・清潔なIHクッキングヒーター ・清潔も時短も叶う食器洗い乾燥機あり ・湿気がこもりにくく、清潔感のある窓付きの浴室 ・追い焚き、足し湯、自動保温機能付きの予約タイマー付きオートバス ・雨の日や雪の日でも安心な、浴室換気暖房乾燥機あり ・手洗いカウンター付きのタンクレストイレ
室内を内覧しているように物件を見学することができます。
| 所在地 | GoogleMaps |
| 価格 | 4,450万円 |
| 交通 | |
| 管理費等 | 17,070円 |
| 修繕積立金 | 28,970円 |
| その他費用 | - |
| 間取り | 3LDK |
| 専有面積 | 90.52㎡(約27.38坪) |
| 築年月 | 2004年11月築 |
| 階数 / 階建 | 5階 / 地上11階建 |
| 向き | 南 |
| バルコニー | 31.23㎡ |
| 現況 | 空家 |
| 駐車場 | 敷地内有 (賃貸) 空き:2台有り 月額 9,000円〜16,000円 (確認日:西暦2026年02月15日現在) |
| 建物構造 | 鉄筋コンクリート造 |
| 総戸数 | 20戸 |
| 管理会社 | 日本管財住宅管理株式会社 |
| 管理形態 | 管理会社に全部委託 |
| 管理員の 勤務形態 | 日勤 |
| 土地権利 | 所有権 |
| 分譲会社 | (株)宮川建設 (新築分譲時における売主) |
| 施工会社 | (株)宮川建設 |
| 設計会社 | (株)宮川建設 |
| 備考 | - |
| 引渡時期 | 相談 |
| 取引態様 | 仲介 |
| 更新日 | 2026年04月24日 |
| 次回更新予定 | 2026年05月08日 |
| 物件番号 | FSCBCA03 |
最新のAI技術を活用した相談サービスです。
お客様一人ひとりのニーズに合わせて最適な情報をご提供します。
リハウスAIチャットの詳しい説明はこちら
GoogleMaps
| スーパー | まいばすけっと北3条西24丁目店 約210m(徒歩3分) |
| スーパー | 東光ストア円山店 約370m(徒歩5分) |
| 公園 | 共栄公園 約150m(徒歩2分) |
| 病院 | 昴希内科クリニック 約290m(徒歩4分) |
| 小学校 | 札幌市立日新小学校 約610m(徒歩8分) |
| 中学校 | 札幌市立向陵中学校 約560m(徒歩7分) |
| その他利便施設1 | サツドラ円山西28丁目店 約350m(徒歩5分) |
| その他利便施設2 | ツルハドラッグ円山店 約370m(徒歩5分) |
| その他利便施設3 | セブンイレブン札幌北4条西25丁目店 約50m(徒歩1分) |
| その他利便施設4 | 札幌北七条西郵便局 約400m(徒歩5分) |
三井不動産リアルティ札幌株式会社
北海道知事石狩(8)第5813号
0120-321-886
0120-321-886
物件の売却をご検討の方は、 はやめの査定依頼がおすすめです!
買い替えをご検討の方はこちら0120-321-886

