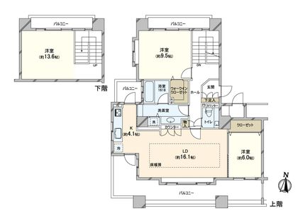
3LDK / 112.57㎡ / 2階
エクセルシオール円山
「エクセルシオール円山」は、札幌市営東西線の西28丁目駅から徒歩約5分の距離に位置しており、日々の通勤や通学、さらにはお出かけにも便利な立地です。 この物件は、駅近の利点を活かし、札幌市内の様々なエリアへのアクセスが容易であり、生活の利便性を重視する方に適した住まいと言えるでしょう。





基本情報
| 所在地 | 北海道札幌市中央区北四条西25丁目 GoogleMaps |
| 交通 | |
| 総戸数 | 20戸 |
| 分譲会社 | (株)宮川建設 |
| 周辺施設 | - |
| 築年月 | 2004年11月 築 |
| 階建 | 11階建 |
| 建物構造 | 鉄筋コンクリート造 |
| 施工会社 | (株)宮川建設 |
交通情報の変化や、分譲会社の社名変更等により、現況(販売中物件)と異なる場合があります。
担当店舗
営業時間
10:00~18:00
定休日
毎週火曜日・水曜日 ※5/1(金)~5/6(水) GW休業期間
※募集期間:2025/2/1 ~ 2025/3/31
※回答人数:27,509名
※対象者:三井のリハウスで不動産売買を経験された方
三井のリハウスの無料査定
お客様一人一人の物件に合わせて、
不動産取引に精通したプロが売り出し価格・募集賃料をご提案いたします。
不動産無料査定をお考えの方
お客様からいただいた物件情報と周辺事例や成約取引事例等に基づき、価格をご提示いたします。
無料査定依頼参考相場価格
エクセルシオール円山
万円~
万円
物件の広さを選択してください
※物件の広さを選択いただくと、面積ごとの参考相場価格が確認できます。選択可能な面積は、実際のマンションの面積帯とは異なりますので、ご注意ください。
エクセルシオール円山 周辺相場・購入検討者情報
札幌市中央区周辺での周辺相場(売り出し中物件情報)
「専有面積×価格」などの件数分布表で相場を把握いただけます。
札幌市中央区の中古マンション購入情報をチェック購入検討者情報
三井のリハウスにご依頼いただいている方のうち、札幌市中央区周辺のマンション購入検討者数をご希望価格帯別にご紹介します。
札幌市中央区周辺での購入検討者
1,145人
札幌市中央区周辺におけるマンションの購入検討者数をご希望価格帯別に表示しています。
取引実績
過去10年の取引実績件数を一覧で表示します
札幌市中央区周辺での取引実績
総取引件数
2,991件
マンション
2,406件
一戸建て・土地
585件
アイコンについて
近隣のマンションを探す
札幌市中央区の物件情報
近くのエリアから探す
他の駅から探す
札幌市営東西線
札幌市営東西線
よくあるご質問
物件が売り出されたら、
メールでお知らせします!
こちらのマンションで別の間取りや別の階などの新しい物件が売り出されたら、いち早くメールでご連絡いたします。
この物件が出たら教えて!不動産無料査定
お客様一人一人の物件に合わせて、不動産取引に精通したプロが売り出し価格・募集賃料をご提案いたします。
無料査定依頼店舗へ問い合わせる
売り出し中物件が見つからない場合、異なる条件の物件をご希望の場合など、お気軽にお問い合わせください。
担当店舗へ問い合わせる







