広島市中区田中町
山陽本線 広島駅 バス15分 田中町 停歩3分
3LDK / 89.54㎡
2014年09月築
5,680万円



| 物件種別 | 中古マンション |
| 所在地 | GoogleMaps |
| 交通 | |
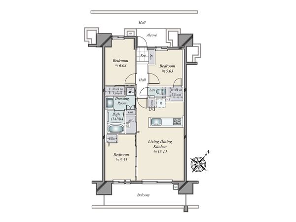
| 間取り | 3LDK |
| 専有面積 | 70.57㎡(約21.34坪) |
| 築年月 | 2018年12月築 |
| 階数 / 階建 | 6階 / 地上15階建 |
| 向き | 南東 |
返済計画を入力すると毎月のお支払い目安を表示できます
-物件のおすすめポイント- ▼立地 ・広島電鉄皆実線 南区役所前駅徒歩7分 ▼マンションの特徴 ・総戸数170戸の大規模マンション ▼お部屋の特徴 ・南東向き住戸につき、日当たり良好 ・LDKは約15.1帖とゆったりくつろげる空間 ・一か所に水まわりを集中させ、生活に配慮した間取り ▼設備 ・家族との会話が弾む対面式キッチン ・調味料のストックや非常食の収納に便利なパントリー付 ・ウォークインクローゼット等収納充実 ・プライバシーに配慮した玄関前アルコーブ ▼周辺環境 ・マックスバリュ千田店(約560m)まで近く、買い物便利 ・千田小学校まで約390m 国泰寺中学校まで約1050m ■ ご希望の住まい探しをお手伝いします ━━━━━・・・ 物件の詳細・ご相談はお気軽にお問い合わせください。
| 所在地 | GoogleMaps |
| 価格 | 5,680万円 |
| 交通 | |
| 管理費等 | 10,450円 |
| 修繕積立金 | 10,590円 |
| その他費用 | - |
| 間取り | 3LDK |
| 専有面積 | 70.57㎡(約21.34坪) |
| 築年月 | 2018年12月築 |
| 階数 / 階建 | 6階 / 地上15階建 |
| 向き | 南東 |
| バルコニー | 12.16㎡ |
| 現況 | 居住中 |
| 駐車場 | 空き無 |
| 建物構造 | 鉄筋コンクリート造 |
| 総戸数 | 170戸 |
| 管理会社 | 株式会社大京アステージ |
| 管理形態 | 管理会社に全部委託 |
| 管理員の 勤務形態 | 日勤 |
| 土地権利 | 所有権 |
| 分譲会社 | (株)大京 (新築分譲時における売主) |
| 施工会社 | (株)鴻池組 |
| 設計会社 | (株)U建築設計事務所 |
| 備考 | - |
| 引渡時期 | 相談 |
| 取引態様 | 仲介 |
| 更新日 | 2026年02月15日 |
| 次回更新予定 | 2026年03月01日 |
| 物件番号 | FVHBAA0C |
最新のAI技術を活用した相談サービスです。
お客様一人ひとりのニーズに合わせて最適な情報をご提供します。
リハウスAIチャットの詳しい説明はこちら
GoogleMaps
| スーパー | マックスバリュ千田店 約560m(徒歩7分) |
| 公園 | 平野公園 約270m(徒歩4分) |
| 病院 | わだ内科医院 約1220m(徒歩16分) |
| 小学校 | 広島市立千田小学校 約390m(徒歩5分) |
| 中学校 | 広島市立国泰寺中学校 約1050m(徒歩14分) |
| その他利便施設1 | ゆめタウン広島 約1170m(徒歩15分) |
| その他利便施設2 | セブンイレブン広島皆実1丁目北店 約660m(徒歩9分) |
| その他利便施設3 | ウォンツ皆実町店 約1240m(徒歩16分) |
| その他利便施設4 | 広島鶴見郵便局 約740m(徒歩10分) |
| その他利便施設5 | 広島銀行皆実町支店 約1190m(徒歩15分) |
| その他利便施設6 | 皆実保育園 約790m(徒歩10分) |
三井不動産リアルティ中国株式会社
国土交通大臣(7)第5169号
0120-545-321
0120-545-321
物件の売却をご検討の方は、 はやめの査定依頼がおすすめです!
買い替えをご検討の方はこちら0120-545-321

