市川市新浜1丁目
東京メトロ東西線 行徳駅 徒歩15分
2LDK / 60.01㎡
1974年09月築
1,780万円



| 物件種別 | 中古マンション |
| 所在地 | GoogleMaps |
| 交通 | |
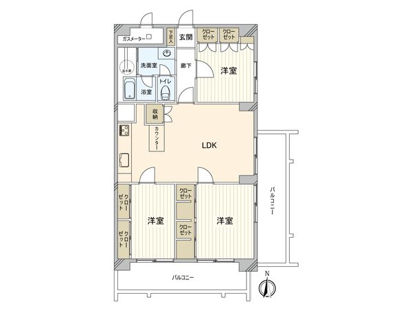
| 間取り | 3LDK |
| 専有面積 | 70.19㎡(約21.23坪) |
| 築年月 | 1974年11月築 |
| 階数 / 階建 | 9階 / 地上11階建 |
| 向き | 南 |
返済計画を入力すると毎月のお支払い目安を表示できます
-物件のおすすめポイント- ▼立地 ・東京メトロ東西線「原木中山」駅 徒歩7分 ・JR中央総武緩行線「下総中山」駅 徒歩14分 ▼特徴 ・南・東向きの角部屋につき陽当たり通風良好 ・9階のお部屋で前面に遮る建物がないため眺望良好 ・各居室収納付き ・ペット飼育可(飼育細則あり) ▼周辺環境 ・周辺にはスーパーやコンビニ等があり便利な住環境 ・オーケー市川田尻店(約240m) ・セブンイレブン原木中山店(約200m) ■ ご希望の住まい探しをお手伝いします ━━━━━・・・ 物件の詳細・ご相談はお気軽にお問い合わせください。
室内を内覧しているように物件を見学することができます。
| 所在地 | GoogleMaps |
| 価格 | 1,780万円 |
| 交通 | |
| 管理費等 | 14,700円 |
| 修繕積立金 | 30,100円 |
| その他費用 | - |
| 間取り | 3LDK |
| 専有面積 | 70.19㎡(約21.23坪) |
| 築年月 | 1974年11月築 |
| 階数 / 階建 | 9階 / 地上11階建 |
| 向き | 南 |
| バルコニー | 18.45㎡ |
| 現況 | 空家 |
| 駐車場 | - |
| 建物構造 | 鉄骨鉄筋コンクリート造 |
| 総戸数 | 55戸 |
| 管理会社 | 日本ハウズイング(株) |
| 管理形態 | 管理会社に全部委託 |
| 管理員の 勤務形態 | 日勤 |
| 土地権利 | 所有権 |
| 分譲会社 | (株)加藤不動産商会 (新築分譲時における売主) |
| 施工会社 | 不動建設(株) |
| 設計会社 | 不動建設(株) |
| 備考 | - |
| 引渡時期 | 即時 |
| 取引態様 | 仲介 |
| 更新日 | 2025年11月01日 |
| 次回更新予定 | 2025年11月15日 |
| 物件番号 | FWNAUA01 |
GoogleMaps
| スーパー | オーケー市川田尻店 約240m(徒歩3分) |
| スーパー | まいばすけっと原木中山駅前店 約470m(徒歩6分) |
| スーパー | 業務スーパー原木中山店 約530m(徒歩7分) |
| スーパー | ベルクス市川鬼高店 約550m(徒歩7分) |
| 小学校 | 市川市立信篤小学校 約1200m(徒歩15分) |
| 中学校 | 市川市立高谷中学校 約1490m(徒歩19分) |
| その他利便施設1 | セブンイレブン原木中山店 約200m(徒歩3分) |
| その他利便施設2 | ファミリーマート原木中山駅北店 約460m(徒歩6分) |
| その他利便施設3 | SHOPS 約710m(徒歩9分) |
| その他利便施設4 | マツモトキヨシ原木中山店 約470m(徒歩6分) |
0120-993-044
0120-993-044
物件の売却をご検討の方は、 はやめの査定依頼がおすすめです!
買い替えをご検討の方はこちら0120-993-044
