港区芝浦4丁目
山手線 田町駅 徒歩8分
1LDK / 61.51㎡
2006年11月築
14,500万円



| 物件種別 | 中古マンション |
| 所在地 | GoogleMaps |
| 交通 | |
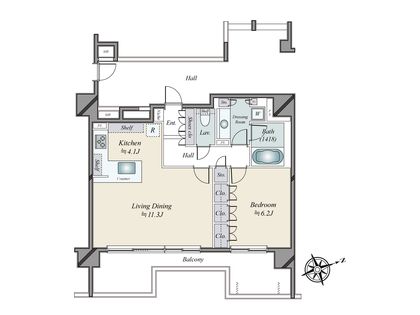
| 間取り | 2LDK |
| 専有面積 | 72.21㎡(約21.84坪) |
| 築年月 | 2003年11月築 |
| 階数 / 階建 | 4階 / 地上11階建 |
| 向き | 南東 |
-物件のおすすめポイント- ▼立地 ・JR山手線「田町」駅 徒歩10分 ・都営三田線「三田」駅 徒歩10分 ・ゆりかもめ「芝浦ふ頭」駅 徒歩8分 ▼お部屋の特徴 ・専有面積72.21平米、2LDK ・4階部分、芝浦運河に面するキャナルサイド ・廊下部分が少なく居室に広さが取れた間取り ・二面バルコニー ・家族との会話弾む対面式キッチン(窓付) ・LD部分には床暖房有 ・1418サイズのユニットバス ・トイレに手洗器有 ・二重床、二重天井構造 ・各居室のクローゼット、玄関収納、リビングダイニングの収納有 ▼マンションの特徴 ・屋上にスカイサイドガーデンあり(共用部) ・3住戸につき1基エレベーターあり ・24時間ゴミ出し可能 ・クリーニングサービス付宅配ボックス ・ペット飼育可(細則あり) ・オートロックシステム ■ ご希望の住まい探しをお手伝いします ━━━━━ ・・・ 物件の詳細・ご相談はお気軽にお問い合わせください。
| 所在地 | GoogleMaps |
| 価格 | 14,500万円 |
| 交通 | |
| 管理費等 | 10,800円 |
| 修繕積立金 | 27,440円 |
| その他費用 | インターネット使用料 1,045円 / 月、町会費 200円 / 月、管理予備費 2,630円 / 月 |
| 間取り | 2LDK |
| 専有面積 | 72.21㎡(約21.84坪) |
| 築年月 | 2003年11月築 |
| 階数 / 階建 | 4階 / 地上11階建 |
| 向き | 南東 |
| バルコニー | 18.1㎡ |
| 現況 | 居住中 |
| 駐車場 | 空き無 |
| 建物構造 | 鉄筋コンクリート造 |
| 総戸数 | 58戸 |
| 管理会社 | (株)東急コミュニティー |
| 管理形態 | 管理会社に全部委託 |
| 管理員の 勤務形態 | 日勤 |
| 土地権利 | 所有権 |
| 分譲会社 | (株)明豊エンタープライズ (新築分譲時における売主) |
| 施工会社 | 飛島建設(株) |
| 設計会社 | (株)日建ハウジングシステム |
| 備考 | - |
| 引渡時期 | 相談 |
| 取引態様 | 仲介 |
| 更新日 | 2026年05月15日 |
| 次回更新予定 | 2026年05月29日 |
| 物件番号 | FWPATA1A |
最新のAI技術を活用した相談サービスです。
お客様一人ひとりのニーズに合わせて最適な情報をご提供します。
リハウスAIチャットの詳しい説明はこちら
GoogleMaps
| スーパー | まいばすけっと海岸3丁目店 約220m(徒歩3分) |
| 病院 | 愛育病院 約480m(徒歩6分) |
| 小学校 | 港区立芝浜小学校 約470m(徒歩6分) |
| 中学校 | 港南中学校 約1780m(徒歩23分) |
| その他利便施設1 | セブンイレブン芝浦ベイワード店 約150m(徒歩2分) |
| その他利便施設2 | ローソン芝浦2丁目店 約220m(徒歩3分) |
| その他利便施設3 | ムスブ田町 約570m(徒歩8分) |
三井不動産リアルティ株式会社
国土交通大臣(15)第777号
0120-173-031
0120-173-031
物件の売却をご検討の方は、 はやめの査定依頼がおすすめです!
買い替えをご検討の方はこちら0120-173-031

