豊中市新千里東町1丁目
北大阪急行南北線 千里中央駅 徒歩1分
3LDK / 96.52㎡
2019年01月築
11,500万円



| 物件種別 | 中古マンション |
| 所在地 | GoogleMaps |
| 交通 | |
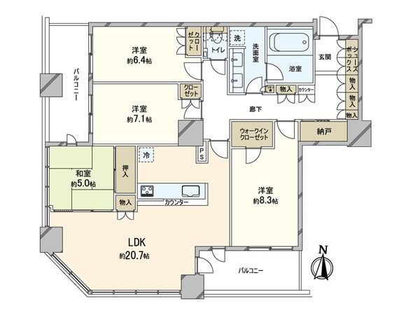
| 間取り | 4LDK |
| 専有面積 | 112.42㎡(約34坪) |
| 築年月 | 2009年04月築 |
| 階数 / 階建 | 9階 / 地上50階建 |
| 向き | 南 |
返済計画を入力すると毎月のお支払い目安を表示できます
■おすすめポイント━━━━━━━━━━━━━━━━・・・・・ ◇北大阪急行「千里中央駅」徒歩1分 大阪モノレール「千里中央駅」徒歩5分 ◇専有面積112.42平米の4LDK ◇9階部分、南西角住部屋のため、陽当り・通風・眺望良好◎ ◇LDKは広々約20.7帖、採光面が広く開放的! ◇ウォークインクローゼット、納戸付き!収納豊富! ◇コンシェルジュサービス・24時間有人管理・各階ゴミ置場有 ◇共用施設充実! (ゲストルーム・キッズルーム・ライブラリー・ミニショップ・カフェ・スタディルーム等) ◇ペット飼育可(規約による制限有り)
| 所在地 | GoogleMaps |
| 価格 | 11,500万円 |
| 交通 | |
| 管理費等 | 21,900円 |
| 修繕積立金 | 53,900円 |
| その他費用 | - |
| 間取り | 4LDK |
| 専有面積 | 112.42㎡(約34坪) |
| 築年月 | 2009年04月築 |
| 階数 / 階建 | 9階 / 地上50階建 |
| 向き | 南 |
| バルコニー | 17.48㎡ |
| 現況 | 空家 |
| 駐車場 | 敷地内有 (賃貸) 空き:10台有り 月額 18,000円〜28,000円 (確認日:西暦2025年10月27日現在) |
| 建物構造 | その他 |
| 総戸数 | 356戸 |
| 管理会社 | 住商建物(株) |
| 管理形態 | 管理会社に全部委託 |
| 管理員の 勤務形態 | 日勤 |
| 土地権利 | 所有権 |
| 分譲会社 | 住友商事(株)、阪急不動産(株)、オリックス不動産(株) (新築分譲時における売主) |
| 施工会社 | (株)竹中工務店 |
| 備考 | 構造:鉄筋コンクリート・鉄骨造 |
| 引渡時期 | 即時 |
| 取引態様 | 仲介 |
| 更新日 | 2026年03月16日 |
| 次回更新予定 | 2026年03月30日 |
| 物件番号 | FXBATA7F |
最新のAI技術を活用した相談サービスです。
お客様一人ひとりのニーズに合わせて最適な情報をご提供します。
リハウスAIチャットの詳しい説明はこちら
GoogleMaps
| スーパー | 阪急オアシス千里中央店 約20m(徒歩1分) |
| 公園 | 千里東町公園 約250m(徒歩4分) |
| 病院 | 医療法人協和会千里中央病院 約100m(徒歩2分) |
| 小学校 | 豊中市立東丘小学校 約750m(徒歩10分) |
| 中学校 | 豊中市立第八中学校 約850m(徒歩11分) |
| その他利便施設1 | 千里中央駅(北大阪急行電鉄 南北線) 約80m(徒歩1分) |
| その他利便施設2 | 千里中央駅(大阪モノレール線) 約400m(徒歩5分) |
| その他利便施設3 | せんちゅうパル専門店街 約50m(徒歩1分) |
| その他利便施設4 | ヤマダデンキLABI LIFE SELECT千里 約30m(徒歩1分) |
| その他利便施設5 | セブンイレブン千里中央駅北店 約90m(徒歩2分) |
三井不動産リアルティ株式会社
国土交通大臣(15)第777号
0120-31-5431
0120-31-5431
物件の売却をご検討の方は、 はやめの査定依頼がおすすめです!
買い替えをご検討の方はこちら0120-31-5431

