大阪市中央区備後町2丁目
大阪メトロ堺筋線 堺筋本町駅 徒歩3分
2LDK / 67.09㎡
2022年03月築
11,180万円



| 物件種別 | 中古マンション |
| 所在地 | GoogleMaps |
| 交通 | |
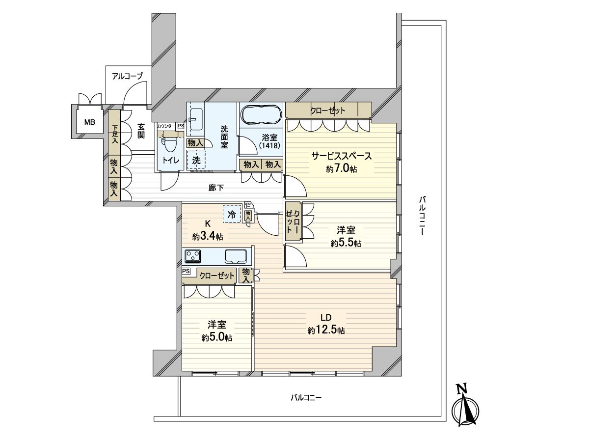
| 間取り | 2SLDK ※S・サービススペースは納戸です |
| 専有面積 | 83.26㎡(約25.18坪) |
| 築年月 | 2014年09月築 |
| 階数 / 階建 | 7階 / 地上21階建 |
| 向き | 南 |
返済計画を入力すると毎月のお支払い目安を表示できます
大阪市中央区釣鐘町2丁目 ~ ジオ釣鐘町 ~ - おすすめポイント - ■ ・大阪メトロ 堺筋線「北浜」駅 徒歩7分 ・京阪本線「北浜」駅 徒歩7分 ・大阪メトロ 谷町線「天満橋」駅 徒歩7分 ・京阪本線/中之島線「天満橋」駅 徒歩8分 ■特徴 ・鉄筋コンクリート21階建免震構造マンション ・南東角部屋 7階部分 ・専有面積83.26平米 2SLDKの間取り ・各室に収納あり ・L字バルコニー31.95平米で広々 ・陽当り、通風良好です ■周辺環境 ・セブンイレブン大阪島町2丁目店 徒歩2分。(約160m) ・ライフ天神橋店 徒歩1分。(約80m) ・THE Kitahama PLAZA 徒歩8分。(約600m) ・郵便局 北浜東郵便局 徒歩4分。(約270m) ・中之島公園 徒歩5分。(約350m) ★コンビニ、スーパー、ショッピング施設が近く 日常生活に利便な住環境です♪ ■ ご希望の住まい探しをお手伝いします 物件の詳細・ご相談はお気軽にお問い合わせください。
| 所在地 | GoogleMaps |
| 価格 | 11,180万円 |
| 交通 | |
| 管理費等 | 14,990円 |
| 修繕積立金 | 10,830円 |
| その他費用 | 自治会費 100円 / 月 |
| 間取り | 2SLDK ※S・サービススペースは納戸です |
| 専有面積 | 83.26㎡(約25.18坪) |
| 築年月 | 2014年09月築 |
| 階数 / 階建 | 7階 / 地上21階建 |
| 向き | 南 |
| バルコニー | 31.95㎡ |
| 現況 | 居住中 |
| 駐車場 | 空き無 |
| 建物構造 | 鉄筋コンクリート造 |
| 総戸数 | 123戸 |
| 管理会社 | (株)阪急阪神ハウジングサポート |
| 管理形態 | 管理会社に全部委託 |
| 管理員の 勤務形態 | 日勤 |
| 土地権利 | 所有権 |
| 分譲会社 | 阪急不動産(株) (新築分譲時における売主) |
| 施工会社 | 西松建設(株) |
| 設計会社 | (株)IAO竹田設計・西松建設(株) |
| 備考 | - |
| 引渡時期 | 相談 |
| 取引態様 | 仲介 |
| 更新日 | 2026年01月22日 |
| 次回更新予定 | 2026年02月05日 |
| 物件番号 | FZDBAA04 |
最新のAI技術を活用した相談サービスです。
お客様一人ひとりのニーズに合わせて最適な情報をご提供します。
リハウスAIチャットの詳しい説明はこちら
GoogleMaps
| スーパー | ライフ天神橋店 約90m(徒歩2分) |
| 公園 | 中之島公園 約350m(徒歩5分) |
| 病院 | 大手前病院 約1000m(徒歩13分) |
| その他利便施設1 | セブンイレブン大阪島町2丁目店 約160m(徒歩2分) |
| その他利便施設2 | ファミリーマート釣鐘町店 約250m(徒歩4分) |
| その他利便施設3 | 京阪シティモール 約650m(徒歩9分) |
| その他利便施設4 | THE Kitahama PLAZA 約600m(徒歩8分) |
| その他利便施設5 | 北浜東郵便局 約240m(徒歩3分) |
三井不動産リアルティ株式会社
国土交通大臣(15)第777号
0120-037-331
0120-037-331
物件の売却をご検討の方は、 はやめの査定依頼がおすすめです!
買い替えをご検討の方はこちら0120-037-331

