尼崎市武庫之荘1丁目
阪急神戸線 武庫之荘駅 徒歩4分
2LDK / 57.57㎡
1994年08月築
条件を変更する
エリア
兵庫県 西宮市 神原
変更する
物件の種別
中古マンション
変更する
こだわり条件
中古マンション
購入申込あり



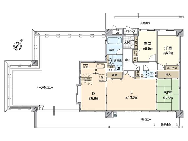
5,280万円
西宮市神原 / 阪急甲陽線 甲陽園駅 徒歩8分
3LDK / 92.61㎡ / 2000年11月築 / 6階
マンションライブラリー
全国で分譲されたマンションをご紹介
全国で分譲された7万棟超のマンションを
エリアごとにご紹介します。売り出し中・
貸し出し中の物件情報も掲載しております。
豊富な取引実績をもとにご所有不動産の推定成約価格※を即時にAIで査定します。
※当社保有データから機械的に算出した参考価格です

