杉並区荻窪3丁目
中央本線 荻窪駅 徒歩15分
2SLDK
建物面積:113.85㎡
土地面積:100.3㎡
新築
11,780万円



| 物件種別 | 新築戸建 |
| 所在地 | GoogleMaps |
| 交通 | 中央本線 荻窪駅 徒歩15分 |
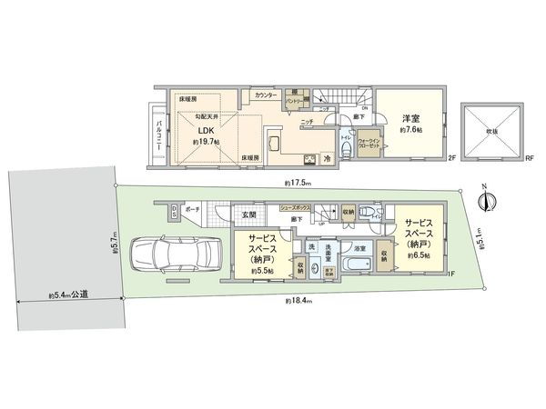
| 間取り | 1SLDK ※S・サービススペースは納戸です |
| 建物面積 | 108.68㎡(約32.87坪) |
| 土地面積 | 97.05㎡(約29.35坪) |
| 築年月 | 2026年02月築 |
予約制内覧会を開催します!
| 開催日 | 4月19日(日)11:00 ~ 17:00 |
|---|
▼アクセス 〇 JR中央・総武線「荻窪」駅 徒歩15分 〇 東京メトロ丸ノ内線「荻窪」駅 徒歩15分 〇 東京メトロ丸ノ内線「南阿佐ヶ谷」駅 徒歩17分 ▼おすすめポイント 〇 「荻窪」駅徒歩15分 〇 令和8年2月完成予定の新築戸建 〇 開放的な幅員 約5.4m公道面 〇 建物32坪超の2階建 ▼設備・仕様 〇 ガス式床暖房 〇 システムキッチン・浄水器内蔵ハンズフリー水栓 〇 食器洗浄乾燥機付 〇 浴室換気乾燥機付 〇 三面鏡 〇 シャワートイレ 〇 TVモニター付きインターホン 〇 宅配ボックス 〇 玄関ドア電子キーシステム 〇 屋外コンセント(EV・PHEV充電用) ▼周辺環境 〇 西田小学校【学区】・・・約300m(徒歩4分) 〇 松渓中学校【学区】・・・約200m(徒歩3分) 〇 ファミリーマート荻窪団地前店・・・約160m(徒歩2分) 〇 TOUMAフレッシュマート・・・約320m(徒歩4分) 〇 西友 高井戸東店・・・約830m(徒歩11分) 〇 やすだクリニック・・・約350m(徒歩5分) 〇 荻窪二郵便局・・・約60m(徒歩1分) 〇 荻窪地域区民センター・・・約690m(徒歩9分) 〇 大田黒公園・・・約710m(徒歩9分)
| 所在地 | GoogleMaps |
| 価格 | 11,780万円 |
| 交通 | 中央本線 荻窪駅 徒歩15分 |
| その他費用 | - |
| 間取り | 1SLDK ※S・サービススペースは納戸です |
| 建物面積 | 108.68㎡(約32.87坪) |
| 土地面積 | 97.05㎡(約29.35坪) |
| 築年月 | 2026年02月築 |
| 建物構造 | 木造2階建 |
| 現況 | 空家 |
| 駐車場 | 有 |
| 土地権利 | 所有権 |
| 地目 | 宅地 |
| 接道状況 | - |
| 建ぺい率 | 50% |
| 容積率 | 100% |
| 用途地域 | 第一種低層住居専用地域 |
| 都市計画 | 市街化区域 |
| 備考 | - |
| 引渡時期 | 相談 |
| 取引態様 | 仲介 |
| 更新日 | 2026年04月19日 |
| 次回更新予定 | 2026年05月03日 |
| 物件番号 | F23BGA5A |
最新のAI技術を活用した相談サービスです。
お客様一人ひとりのニーズに合わせて最適な情報をご提供します。
リハウスAIチャットの詳しい説明はこちら
GoogleMaps
| スーパー | TOUMAフレッシュマート 約320m(徒歩4分) |
| スーパー | 西友 高井戸東店 約830m(徒歩11分) |
| 公園 | 大田黒公園 約710m(徒歩9分) |
| 病院 | やすだクリニック 約350m(徒歩5分) |
| 小学校 | 杉並区立西田小学校 約300m(徒歩4分) |
| 中学校 | 杉並区立松渓中学校 約200m(徒歩3分) |
| その他利便施設1 | ファミリーマート荻窪団地前店 約160m(徒歩2分) |
| その他利便施設2 | 荻窪二郵便局 約60m(徒歩1分) |
0120-133-304
0120-133-304
物件の売却をご検討の方は、 はやめの査定依頼がおすすめです!
買い替えをご検討の方はこちら0120-133-304

