調布市深大寺南町5丁目
京王電鉄京王線 調布駅 バス18分 西原 停歩3分
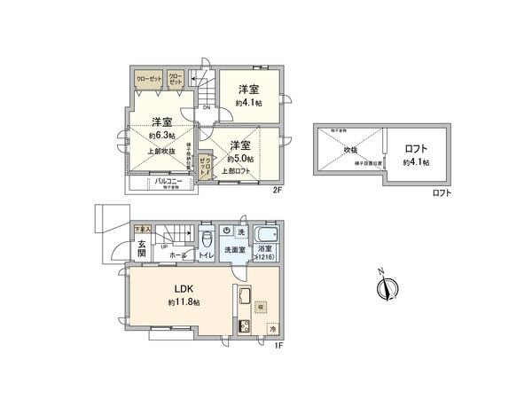
3LDK
建物面積:81.97㎡
土地面積:103.86㎡
2026年03月築(予定)
4,890万円



| 物件種別 | 新築戸建 |
| 所在地 | GoogleMaps |
| 交通 | |
| 間取り | 3LDK |
| 建物面積 | 62.52㎡(約18.91坪) |
| 土地面積 | 78.23㎡(約23.66坪) |
| 築年月 | 2026年02月築(予定) |
返済計画を入力すると毎月のお支払い目安を表示できます
■ おすすめポイント ━━━━━・・・・・ ● 2026年2月完成予定新築戸建 ● 前面公道約6.0mのため、開放感、駐車しやすいです ● 11.8帖のLDK ● 鏡面仕上げシューズBOX ● 家事負担を減らす便利な高機能食洗機 ● 収納に便利なロフト4.1帖有り ■ 充実の設備仕様 ● LOW-E複層ガラス ● システムキッチン ● 食器洗浄機 ● 床下収納庫 ● 一坪ユニットバス ● 浴室換気乾燥機 ● シャワー付洗面化粧台 ● シャワートイレ ● 階段・浴室・トレイに手摺設置 ● 録画機能付インターホン ■ 周辺環境 ●緑豊かな街並み、住環境良好 ●徒歩圏内にスーパー、コンビニ有り、日々のお買い物に便利 ●小学校まで徒歩7分、お子様の通学に安心 ※表示規約に則りバス所要時間は朝の通勤ラッシュ時(7~8時台)の最も本数の多い時間帯において 所要時間が最も長いものを採用しております。 【調布・稲城市エリアで新しい暮らしをお考えの皆様へ】 「家を買い替えたいけど、売却が先?購入が先?何から始めればいいの?」そんなお悩みをお持ちの方も、どうぞお気軽にご相談ください。初めての方でも安心して一歩を踏み出せるよう、丁寧にサポートいたします。 また、調布市・稲城市エリア以外の不動産についても、売却のご相談を承っております。 「相続した不動産、どうすればいい?」「売るタイミングが分からない」「今の価値を知りたい」「住宅ローンが残っているけど、無理なく住み替えたい」など、どんなご相談でも大丈夫です。お客様一人ひとりのご事情に寄り添い、購入から売却までトータルでサポートいたします。 まずは、お電話でご所有不動産の概要をお聞かせください。無料査定のお申し込みはフリーコール:0120-556-404までお気軽にお問い合わせください。 ご自宅の「売却」も、安心と信頼の【三井のリハウス】にお任せください。
| 所在地 | GoogleMaps |
| 価格 | 4,890万円 |
| 交通 | |
| その他費用 | - |
| 間取り | 3LDK |
| 建物面積 | 62.52㎡(約18.91坪) |
| 土地面積 | 78.23㎡(約23.66坪) |
| 築年月 | 2026年02月築(予定) |
| 建物構造 | 木造2階建 |
| 現況 | 未完成 |
| 駐車場 | 有 |
| 土地権利 | 所有権 |
| 地目 | 宅地 |
| 接道状況 | 北西側: 約 6m (公道) |
| 建ぺい率 | 40% |
| 容積率 | 80% |
| 用途地域 | 第一種低層住居専用地域 |
| 都市計画 | 市街化区域 |
| 建築確認番号 | 第HPA-25-11524-1号 |
| 備考 | - |
| 引渡時期 | 相談 |
| 取引態様 | 仲介 |
| 更新日 | 2025年12月19日 |
| 次回更新予定 | 2026年01月02日 |
| 物件番号 | F27AUA0E |
最新のAI技術を活用した相談サービスです。
お客様一人ひとりのニーズに合わせて最適な情報をご提供します。
リハウスAIチャットの詳しい説明はこちら
GoogleMaps
| スーパー | トップフレッシュマーケット深大寺店 約810m(徒歩11分) |
| 公園 | 深大寺自然広場 約400m(徒歩5分) |
| 小学校 | 調布市立深大寺小学校 約560m(徒歩7分) |
| 中学校 | 調布市立神代中学校 約750m(徒歩10分) |
| その他利便施設1 | セブンイレブン晃華学園前店 約530m(徒歩7分) |
| その他利便施設2 | マツモトキヨシ調布深大寺店 約820m(徒歩11分) |
| その他利便施設3 | 調布深大寺郵便局 約1050m(徒歩14分) |
| その他利便施設4 | ワークマンプラス調布深大寺店 約560m(徒歩7分) |
| その他利便施設5 | 西松屋調布佐須店 約890m(徒歩12分) |
| その他利便施設6 | キテラタウン調布 約1730m(徒歩22分) |
0120-556-404
0120-556-404
物件の売却をご検討の方は、 はやめの査定依頼がおすすめです!
買い替えをご検討の方はこちら0120-556-404

