府中市南町6丁目
武蔵野線 府中本町駅 徒歩14分
3LDK
建物面積:90.25㎡
土地面積:100.05㎡
2026年05月築(予定)
5,790万円



| 物件種別 | 新築戸建 |
| 所在地 | GoogleMaps |
| 交通 | |
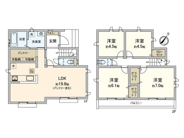
| 間取り | 4LDK |
| 建物面積 | 94.81㎡(約28.68坪) |
| 土地面積 | 100.35㎡(約30.35坪) |
| 築年月 | 2026年05月築(予定) |
■ おすすめポイント ━━━━・・・・ ○ 2駅3沿線利用可能な立地 ○ 南東向き住戸 ○ 長期優良住宅 ○ 約18帖の広々としたLDK ○ 家族との会話が弾む対面式キッチン ○ 1坪タイプのユニットバス ■ アクセス ━━━━━・・・・ ○ JR武蔵野線「府中本町」駅 徒歩14分 ○ 京王線・JR南武線「分倍河原」駅 徒歩19分 ■ 設備・仕様 ━━━━━━・・・ ○ 全窓Low-E複層ガラス ○ システムキッチン ○ 洗面化粧台 ○ 洗濯機置場 ○ トイレ ○ ガスコンロ ○ 浴室乾燥機 ○ 駐車スペース1台(車種による) ○ ポスト ○ インターホン 【府中市・稲城市エリアへお住みかえをご検討中のお客様】 ※府中市・稲城市エリア以外の不動産に関する売却のご相談も承ります。 ■ご自宅の『売却』も三井のリハウスにお任せください 。 ・「売却が先か購入が先か」買替えたいけど、何から始めたら良いのか分からない。 ・所有不動産の相場を把握しておきたい。 ・自宅の住宅ローンが残っているので、無理のない資金計画を相談したい。 お住まいの購入から売却まで、お客様のご事情に合わせてトータルサポートいたします。 まずはフリーコールにて、ご所有不動産の概要をお申し付けください。 『無料査定のお申込みは』 フリーコール 0120-554-979 詳しくは担当までお気軽にお問い合わせください。
| 所在地 | GoogleMaps |
| 価格 | 5,790万円 |
| 交通 | |
| その他費用 | - |
| 間取り | 4LDK |
| 建物面積 | 94.81㎡(約28.68坪) |
| 土地面積 | 100.35㎡(約30.35坪) |
| 築年月 | 2026年05月築(予定) |
| 建物構造 | 木造2階建 |
| 現況 | 未完成 |
| 駐車場 | 有 |
| 土地権利 | 所有権 |
| 地目 | 宅地 |
| 接道状況 | 北東側: 約 6.5m (公道)、北西側: 約 4.5m (公道) |
| 建ぺい率 | 60% |
| 容積率 | 200% |
| 用途地域 | 準工業地域 |
| 都市計画 | 市街化区域 |
| 建築確認番号 | 第HPA-25-14765-1号 |
| 備考 | - |
| 引渡時期 | 2026年05月下旬以降 |
| 取引態様 | 仲介 |
| 更新日 | 2026年04月13日 |
| 次回更新予定 | 2026年04月27日 |
| 物件番号 | F28BGA49 |
最新のAI技術を活用した相談サービスです。
お客様一人ひとりのニーズに合わせて最適な情報をご提供します。
リハウスAIチャットの詳しい説明はこちら
GoogleMaps
| スーパー | コープみらい ミニコープ府中南店 約620m(徒歩8分) |
| 公園 | 郷土の森公園 約550m(徒歩7分) |
| 病院 | 府中朝倉クリニック 約880m(徒歩11分) |
| 小学校 | 府中市立矢崎小学校 約180m(徒歩3分) |
| 中学校 | 府中市立府中第三中学校 約990m(徒歩13分) |
| その他利便施設1 | ウエルシア府中是政店 約1540m(徒歩20分) |
| その他利便施設2 | ローソン・スリーエフ府中是政六丁目店 約530m(徒歩7分) |
| その他利便施設3 | 府中是政郵便局 約990m(徒歩13分) |
| その他利便施設4 | 府中本町駅(JR東日本 武蔵野線) 約1810m(徒歩23分) |
| その他利便施設5 | 分倍河原駅(JR東日本 南武線) 約1480m(徒歩19分) |
0120-554-979
0120-554-979
物件の売却をご検討の方は、 はやめの査定依頼がおすすめです!
買い替えをご検討の方はこちら0120-554-979

