さいたま市緑区大字三室
京浜東北・根岸線 北浦和駅 バス18分 JA埼玉三室前 停歩9分
4LDK
建物面積:102.68㎡
土地面積:104.98㎡
2026年04月築(予定)
4,380万円



| 物件種別 | 新築戸建 |
| 所在地 | GoogleMaps |
| 交通 | 武蔵野線 東浦和駅 徒歩12分 |
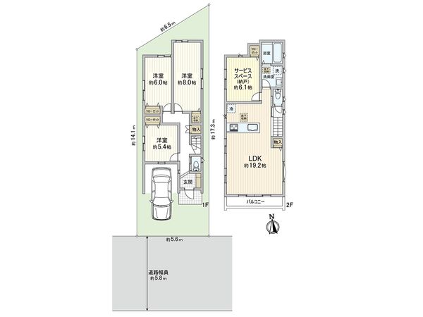
| 間取り | 3SLDK ※S・サービススペースは納戸です |
| 建物面積 | 106.92㎡(約32.34坪) |
| 土地面積 | 88.63㎡(約26.81坪) |
| 築年月 | 2026年05月築(予定) |
返済計画を入力すると毎月のお支払い目安を表示できます
-物件のおすすめポイント- ▼立地 ・武蔵野線「東浦和」駅 徒歩12分 ▼建物の特徴 ・2026年5月完成予定の新築戸建 ・ビルトインガレージ付(車種制限有) ・南側道路につき陽当たり良好 ▼お部屋の特徴 ・約19帖のゆったりしたLDK ・全居室二面採光で明るく風通しのいい空間 ▼設備 ・給湯器「エコジョーズ」で快適な暮らし ・リビングダイニングと一体感のある対面式キッチン ・雨の日の洗濯にも便利な浴室乾燥機 ・シャワー付洗面化粧台 ・トイレには快適な温水洗浄便座 ・来客時に便利なTVモニター付インターホン ・断熱性に優れる複層ガラス ▼周辺環境 ・コモディイイダ東浦和店(約220m)まで近く買物便利 ■ ご希望の住まい探しをお手伝いします ━━━━━・・・ 物件の詳細・ご相談はお気軽にお問い合わせください。
| 所在地 | GoogleMaps |
| 価格 | 4,380万円 |
| 交通 | 武蔵野線 東浦和駅 徒歩12分 |
| その他費用 | - |
| 間取り | 3SLDK ※S・サービススペースは納戸です |
| 建物面積 | 106.92㎡(約32.34坪) |
| 土地面積 | 88.63㎡(約26.81坪) |
| 築年月 | 2026年05月築(予定) |
| 建物構造 | 木造2階建 |
| 現況 | 未完成 |
| 駐車場 | 有 |
| 土地権利 | 所有権 |
| 地目 | 宅地 |
| 接道状況 | 南側: 約 5.8m (公道) |
| 建ぺい率 | 60% |
| 容積率 | 200% |
| 用途地域 | 第二種住居地域 |
| 都市計画 | 市街化区域 |
| 建築確認番号 | 第KS125-3120-51969号 |
| 備考 | 建物面積に車庫部分8.69平米含む、高度地区(15m地区)、建築確認番号:第KS125-3120-51969号 |
| 引渡時期 | 2026年06月上旬以降 |
| 取引態様 | 仲介 |
| 更新日 | 2026年01月12日 |
| 次回更新予定 | 2026年01月26日 |
| 物件番号 | F49AUA22 |
最新のAI技術を活用した相談サービスです。
お客様一人ひとりのニーズに合わせて最適な情報をご提供します。
リハウスAIチャットの詳しい説明はこちら
GoogleMaps
| スーパー | コモディイイダ東浦和店 約220m(徒歩3分) |
| スーパー | ヨークマート柳崎店 約610m(徒歩8分) |
| 公園 | 在家公園 約710m(徒歩9分) |
| 病院 | 埼玉協同病院 約580m(徒歩8分) |
| 小学校 | さいたま市立大牧小学校 約2000m(徒歩25分) |
| 中学校 | さいたま市立尾間木中学校 約1900m(徒歩24分) |
| その他利便施設1 | セブンイレブン浦和大間木店 約410m(徒歩6分) |
| その他利便施設2 | ミニストップ東浦和店 約540m(徒歩7分) |
| その他利便施設3 | ウェルパーク東浦和駅前店 約960m(徒歩12分) |
| その他利便施設4 | 川口柳崎郵便局 約1100m(徒歩14分) |
三井不動産リアルティ株式会社
国土交通大臣(15)第777号
0120-377-231
0120-377-231
物件の売却をご検討の方は、 はやめの査定依頼がおすすめです!
買い替えをご検討の方はこちら0120-377-231

