さいたま市北区土呂町1丁目
湘南新宿ライン(宇都宮~逗子) 土呂駅 徒歩7分
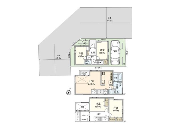
4LDK
建物面積:109.39㎡
土地面積:59.59㎡
2026年07月築(予定)
5,880万円



| 物件種別 | 新築戸建 |
| 所在地 | GoogleMaps |
| 交通 | 湘南新宿ライン(宇都宮~逗子) 土呂駅 徒歩7分 |
| 間取り | 4LDK |
| 建物面積 | 104.91㎡(約31.73坪) |
| 土地面積 | 55.01㎡(約16.64坪) |
| 築年月 | 2026年07月築(予定) |
■ おすすめポイント ━━━━━━━━━━━━━━━・・・・・ ○ 宇都宮線「土呂」駅徒歩7分の好立地 ○ 2026年7月完成予定の新築戸建 ○ 北西約5.9m×南西約6.1mの角地 ○ 敷地面積55.01平米(約16.64坪) ○ LDKは16.2帖 ○ リビングイン階段 ○ 対面式キッチン ○ 吹抜けあり ○ 駐車スペース1台分あり(車種による) ○ 徒歩10分圏内にコンビニ・ドラッグストア等周辺施設充実
| 所在地 | GoogleMaps |
| 価格 | 5,880万円 |
| 交通 | 湘南新宿ライン(宇都宮~逗子) 土呂駅 徒歩7分 |
| その他費用 | - |
| 間取り | 4LDK |
| 建物面積 | 104.91㎡(約31.73坪) |
| 土地面積 | 55.01㎡(約16.64坪) |
| 築年月 | 2026年07月築(予定) |
| 建物構造 | 木造3階建 |
| 現況 | 未完成 |
| 駐車場 | 有 |
| 土地権利 | 所有権 |
| 地目 | 宅地 |
| 接道状況 | 南西側: 約 6.1m (公道)、北西側: 約 5.9m (公道) |
| 建ぺい率 | 60% |
| 容積率 | 200% |
| 用途地域 | 第二種住居地域 |
| 都市計画 | 市街化区域 |
| 建築確認番号 | 第25UDI1W建13781号 |
| 備考 | ※高度地区(20m) ※建物面積に車庫部分11.78平米含む |
| 引渡時期 | 2026年08月上旬以降 |
| 取引態様 | 仲介 |
| 更新日 | 2026年04月12日 |
| 次回更新予定 | 2026年04月26日 |
| 物件番号 | F50BCA07 |
最新のAI技術を活用した相談サービスです。
お客様一人ひとりのニーズに合わせて最適な情報をご提供します。
リハウスAIチャットの詳しい説明はこちら
GoogleMaps
| スーパー | ベルクさいたま宮原店 約1070m(徒歩14分) |
| 公園 | 土呂公園 約350m(徒歩5分) |
| 小学校 | さいたま市立大砂土小学校 約600m(徒歩8分) |
| 中学校 | さいたま市立土呂中学校 約680m(徒歩9分) |
| その他利便施設1 | ウエルシアさいたま土呂店 約320m(徒歩4分) |
| その他利便施設2 | ドラッグセイムス大宮本郷町店 約370m(徒歩5分) |
| その他利便施設3 | ミニストップ土呂駅前店 約620m(徒歩8分) |
| その他利便施設4 | セブンイレブンさいたま土呂駅西店 約740m(徒歩10分) |
| その他利便施設5 | ステラタウン 約1160m(徒歩15分) |
| その他利便施設6 | 土呂西口郵便局 約850m(徒歩11分) |
0120-031-631
0120-031-631
物件の売却をご検討の方は、 はやめの査定依頼がおすすめです!
買い替えをご検討の方はこちら0120-031-631

