さいたま市岩槻区加倉4丁目
東武野田線 岩槻駅 徒歩15分
3LDK
建物面積:81.15㎡
土地面積:182.26㎡
新築
4,980万円



| 物件種別 | 新築戸建 |
| 所在地 | GoogleMaps |
| 交通 | 東武野田線 東岩槻駅 徒歩3分 |
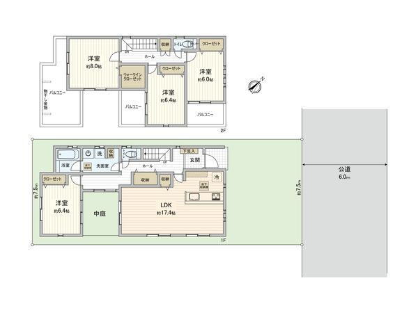
| 間取り | 4LDK |
| 建物面積 | 114.99㎡(約34.78坪) |
| 土地面積 | 142.65㎡(約43.15坪) |
| 築年月 | 2026年09月築(予定) |
■ おすすめポイント ━━━━━━━━━━━━━━━・・・・・ ○ 「東岩槻」駅徒歩3分の好立地 ○ 土地面積約43.1坪 ○ 建物面積約34.7坪 ○ 4LDK+ウォークインクローゼット付き ○ 全居室6帖以上 ○ 中庭テラスがあります ○ 前面道路幅員約6.0m ○ 閑静な住宅地 ○ 地盤改良工事実施済
| 所在地 | GoogleMaps |
| 価格 | 4,980万円 |
| 交通 | 東武野田線 東岩槻駅 徒歩3分 |
| その他費用 | - |
| 間取り | 4LDK |
| 建物面積 | 114.99㎡(約34.78坪) |
| 土地面積 | 142.65㎡(約43.15坪) |
| 築年月 | 2026年09月築(予定) |
| 建物構造 | 木造2階建 |
| 現況 | 未完成 |
| 駐車場 | 有 |
| 土地権利 | 所有権 |
| 地目 | 宅地 |
| 接道状況 | 北東側: 約 6m (公道) |
| 建ぺい率 | 80% |
| 容積率 | 200% |
| 用途地域 | 近隣商業地域 |
| 都市計画 | 市街化区域 |
| 建築確認番号 | 第SJK-KX265601220号 |
| 備考 | - |
| 引渡時期 | 2026年09月下旬以降 |
| 取引態様 | 仲介 |
| 更新日 | 2026年04月27日 |
| 次回更新予定 | 2026年05月11日 |
| 物件番号 | F50BDA26 |
最新のAI技術を活用した相談サービスです。
お客様一人ひとりのニーズに合わせて最適な情報をご提供します。
リハウスAIチャットの詳しい説明はこちら
GoogleMaps
| スーパー | 業務スーパー東岩槻店 約600m(徒歩8分) |
| 公園 | うぐいす児童公園 約220m(徒歩3分) |
| 病院 | 東岩槻ファミリークリニック 約480m(徒歩6分) |
| 小学校 | 上里小学校 約1070m(徒歩14分) |
| 中学校 | 川通中学校 約3070m(徒歩39分) |
| その他利便施設1 | ローソンストア100東岩槻五丁目店 約90m(徒歩2分) |
| その他利便施設2 | ドラッグストアセキ東岩槻店 約670m(徒歩9分) |
| その他利便施設3 | 岩槻区役所東岩槻支所 約200m(徒歩3分) |
| その他利便施設4 | 東岩槻郵便局 約110m(徒歩2分) |
0120-031-631
0120-031-631
物件の売却をご検討の方は、 はやめの査定依頼がおすすめです!
買い替えをご検討の方はこちら0120-031-631

