さいたま市見沼区大字大谷
東武野田線 七里駅 徒歩21分
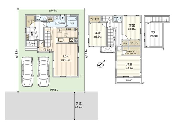
3SLDK
建物面積:108.06㎡
土地面積:129.69㎡
新築
4,520万円



| 物件種別 | 新築戸建 |
| 所在地 | GoogleMaps |
| 交通 | |
| 間取り | 3LDK |
| 建物面積 | 102.9㎡(約31.12坪) |
| 土地面積 | 120.01㎡(約36.3坪) |
| 築年月 | 2025年10月築 |
■ ここがおすすめ━━━━━━━━━━━━━━━・・・・・ ○ 令和7年10月完成の新築戸建3LDK+WIC+SIC+ロフト ○ 広々としたLDK約20帖 ○ 並列2台分の駐車スペース有り(車種によります) ○ 家族との会話が弾む対面式キッチン ○ 約6.0帖のロフトあり ■ 周辺環境 ━━━━━━━━━━━━━━━・・・・・ ○ セブンイレブンさいたま大谷店 徒歩5分(約350m) ○ さいたま市立東宮下小学校 徒歩8分(約600m) ○ 七里総合公園 徒歩12分(約900m) ■ ご希望の住まい探しをお手伝いします ━━━━━・・・ 物件の詳細・ご相談はお気軽にお問い合わせください。
室内を内覧しているように物件を見学することができます。
| 所在地 | GoogleMaps |
| 価格 | 4,520万円 |
| 交通 | |
| その他費用 | - |
| 間取り | 3LDK |
| 建物面積 | 102.9㎡(約31.12坪) |
| 土地面積 | 120.01㎡(約36.3坪) |
| 築年月 | 2025年10月築 |
| 建物構造 | 木造2階建 |
| 現況 | 空家 |
| 駐車場 | - |
| 土地権利 | 所有権 |
| 地目 | 宅地 |
| 接道状況 | 南東側: 約 4.2m (公道) |
| 建ぺい率 | 60% |
| 容積率 | 200%(但し、前面道路幅員により168%に制限されます。) |
| 用途地域 | 第一種中高層住居専用地域 |
| 都市計画 | 市街化区域 |
| 備考 | ※別途ゴミ置場持分7.07平米×1/20ずつ有 ※別途未利用地部分2.67平米×1/20ずつ有 |
| 引渡時期 | 即時 |
| 取引態様 | 仲介 |
| 更新日 | 2026年05月08日 |
| 次回更新予定 | 2026年05月22日 |
| 物件番号 | F50BGA2F |
最新のAI技術を活用した相談サービスです。
お客様一人ひとりのニーズに合わせて最適な情報をご提供します。
リハウスAIチャットの詳しい説明はこちら
GoogleMaps
| スーパー | マルエツ東門前店 約680m(徒歩9分) |
| 病院 | 大谷クリニック 約1100m(徒歩14分) |
| 小学校 | さいたま市立東宮下小学校 約600m(徒歩8分) |
| 中学校 | さいたま市立七里中学校 約1000m(徒歩13分) |
| その他利便施設1 | 七里駅(東武 野田線) 約1700m(徒歩22分) |
| その他利便施設2 | セブンイレブンさいたま大谷店 約350m(徒歩5分) |
| その他利便施設3 | 見沼区片柳支所 約2100m(徒歩27分) |
| その他利便施設4 | 大宮大谷郵便局 約500m(徒歩7分) |
0120-031-631
0120-031-631
物件の売却をご検討の方は、 はやめの査定依頼がおすすめです!
買い替えをご検討の方はこちら0120-031-631

