板橋区蓮沼町
都営三田線 本蓮沼駅 徒歩3分
4LDK
建物面積:92.85㎡
土地面積:89.24㎡
2026年06月築(予定)
9,180万円



| 物件種別 | 新築戸建 |
| 所在地 | GoogleMaps |
| 交通 | |
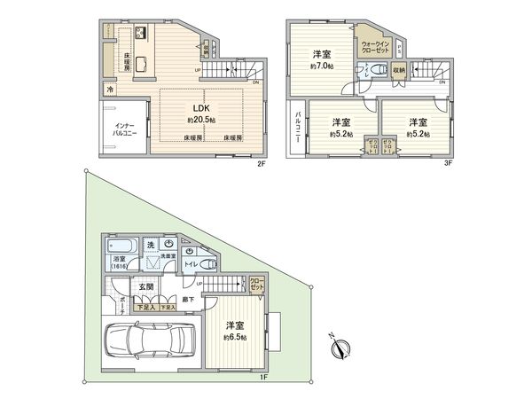
| 間取り | 4LDK |
| 建物面積 | 130.41㎡(約39.44坪) |
| 土地面積 | 78.24㎡(約23.66坪) |
| 築年月 | 2025年11月築 |
予約制内覧会を開催します!
| 開催日 | 2月16日(月)11:00 ~ 17:00 2月19日(木)11:00 ~ 17:00 2月20日(金)11:00 ~ 17:00 2月21日(土)11:00 ~ 17:00 2月22日(日)11:00 ~ 17:00 |
|---|
返済計画を入力すると毎月のお支払い目安を表示できます
-物件のおすすめポイント- ▼立地 ・東京メトロ有楽町線・副都心線「小竹向原」駅 徒歩12分 ・東京メトロ有楽町線・副都心線「千川」駅 徒歩15分 ▼特徴 ・土地面積78.24平米(約23.66坪) ・建物面積130.41平米(約39.44坪) 上記建物面積のうち1F車庫面積13.04平米含む ・木造3階建て4LDKの間取り ・北西、北東の角地につき開放感あり ・採光・通風に恵まれた立地 ・プライバシーを保ちやすい2階リビング設計 ・家族との会話が弾む対面式システムキッチン ・床暖房(LDK) ・カースペース有(車種による) ・前面道路 約8.7m×4.0mで車の出し入れもスムーズ ・周辺に買い物施設等多く、生活利便性良好です ▼周辺環境 ・よしやセーヌ大谷口店 徒歩3分(約170m) ・板橋区立大谷口小学校 徒歩6分(約470m) ■ ご希望の住まい探しをお手伝いします ━━━━━・・・ 物件の詳細・ご相談はお気軽にお問い合わせください。
| 所在地 | GoogleMaps |
| 価格 | 9,180万円 |
| 交通 | |
| その他費用 | - |
| 間取り | 4LDK |
| 建物面積 | 130.41㎡(約39.44坪) |
| 土地面積 | 78.24㎡(約23.66坪) |
| 築年月 | 2025年11月築 |
| 建物構造 | 木造3階建 |
| 現況 | 空家 |
| 駐車場 | 有 |
| 土地権利 | 所有権 |
| 地目 | 宅地 |
| 接道状況 | 北西側: 約 8.7m (公道)、北東側: 約 4m (公道) |
| 建ぺい率 | 80% |
| 容積率 | 300% |
| 用途地域 | 近隣商業地域 |
| 都市計画 | 市街化区域 |
| 備考 | 建築確認番号:第25UDI1T建00170号 上記土地面積にセットバック部分約3.79平米含む。 上記建物面積のうち1F車庫面積13.04㎡含む |
| 引渡時期 | 相談 |
| 取引態様 | 仲介 |
| 更新日 | 2026年02月14日 |
| 次回更新予定 | 2026年02月28日 |
| 物件番号 | F56BGA19 |
最新のAI技術を活用した相談サービスです。
お客様一人ひとりのニーズに合わせて最適な情報をご提供します。
リハウスAIチャットの詳しい説明はこちら
GoogleMaps
| スーパー | よしやセーヌ大谷口店 約170m(徒歩3分) |
| スーパー | オーケー大谷口店 約470m(徒歩6分) |
| 公園 | 大谷口児童遊園 約490m(徒歩7分) |
| 病院 | 宮下医院 約50m(徒歩1分) |
| 小学校 | 板橋区立大谷口小学校 約470m(徒歩6分) |
| 中学校 | 板橋区立上板橋第二中学校 約540m(徒歩7分) |
| その他利便施設1 | ファミリーマート板橋大谷口北町店 約190m(徒歩3分) |
| その他利便施設2 | セブンイレブン板橋小茂根2丁目店 約350m(徒歩5分) |
| その他利便施設3 | トモズ大谷口店 約110m(徒歩2分) |
| その他利便施設4 | 板橋大谷口北郵便局 約40m(徒歩1分) |
三井不動産リアルティ株式会社
国土交通大臣(15)第777号
0120-929-231
0120-929-231
物件の売却をご検討の方は、 はやめの査定依頼がおすすめです!
買い替えをご検討の方はこちら0120-929-231

