さいたま市西区大字指扇
川越線 指扇駅 徒歩10分
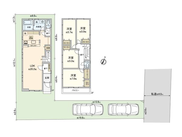
4LDK
建物面積:103.34㎡
土地面積:95.86㎡
2026年09月築(予定)
4,499万円



| 物件種別 | 新築戸建 |
| 所在地 | GoogleMaps |
| 交通 | 川越線 指扇駅 徒歩10分 |
| 間取り | 4LDK |
| 建物面積 | 102.13㎡(約30.89坪) |
| 土地面積 | 136.95㎡(約41.42坪) ※路地状敷地部分約41㎡含む |
| 築年月 | 2026年09月築(予定) |
■ おすすめポイント ━━━━━━━━━━━━━━━・・・・・ ○ JR川越線「指扇」駅徒歩10分 ○ 令和8年9月完成予定の新築戸建4LDK ○ 広々とした約20.2帖のLDK ○ 家族との会話が弾む対面式カウンターキッチン ○ 全居室収納スペース有り ○ 家族のだんらんが増えるリビングイン階段 ○ 掃除がしやすい全居室フローリング仕様 ○ 2台分の駐車スペース有り(車種によります) ○ 周辺買い物施設充実(コンビニ・スーパー・ドラッグストアまで徒歩10分圏内) ■ 設備・仕様 ━━━━━━━━━━━━━━━・・・・・ ○ システムキッチン ○ ビルトイン食器洗浄機 ○ トイレ2か所(温水洗浄便座) ○ ハンドシャワー付洗面台 ○ 浴室乾燥機 ○ TVモニター付インターホン ○ 床下収納 ○ 24時間換気システム
| 所在地 | GoogleMaps |
| 価格 | 4,499万円 |
| 交通 | 川越線 指扇駅 徒歩10分 |
| その他費用 | - |
| 間取り | 4LDK |
| 建物面積 | 102.13㎡(約30.89坪) |
| 土地面積 | 136.95㎡(約41.42坪) ※路地状敷地部分約41㎡含む |
| 築年月 | 2026年09月築(予定) |
| 建物構造 | 木造2階建 |
| 現況 | 未完成 |
| 駐車場 | 有 |
| 土地権利 | 所有権 |
| 地目 | 宅地 |
| 接道状況 | 東側: 約 4m (私道) |
| 建ぺい率 | 60% |
| 容積率 | 200%(但し、前面道路幅員により160%に制限されます。) |
| 用途地域 | 第一種中高層住居専用地域 |
| 都市計画 | 市街化区域 |
| 建築確認番号 | 第25UDI1W建12889号 |
| 備考 | ※高度地区(15m地区) ※2号棟との共有地含む(約0.2平米) |
| 引渡時期 | 相談 |
| 取引態様 | 仲介 |
| 更新日 | 2026年05月08日 |
| 次回更新予定 | 2026年05月22日 |
| 物件番号 | F5HBGA05 |
最新のAI技術を活用した相談サービスです。
お客様一人ひとりのニーズに合わせて最適な情報をご提供します。
リハウスAIチャットの詳しい説明はこちら
GoogleMaps
| スーパー | ライフ指扇店 約800m(徒歩10分) |
| 病院 | 指扇病院 約1400m(徒歩18分) |
| 小学校 | さいたま市立指扇小学校 約800m(徒歩10分) |
| 中学校 | さいたま市立土屋中学校 約670m(徒歩9分) |
| その他利便施設1 | ファミリーマート大宮指扇店 約500m(徒歩7分) |
| その他利便施設2 | ローソンさいたま指扇店 約620m(徒歩8分) |
| その他利便施設3 | ドラッグスギ指扇店 約440m(徒歩6分) |
| その他利便施設4 | 指扇駅前郵便局 約800m(徒歩10分) |
三井不動産リアルティ株式会社
国土交通大臣(15)第777号
0120-031-631
0120-031-631
物件の売却をご検討の方は、 はやめの査定依頼がおすすめです!
買い替えをご検討の方はこちら0120-031-631

