さいたま市見沼区大字中川
京浜東北・根岸線 さいたま新都心駅 徒歩33分
3LDK
建物面積:97.62㎡
土地面積:168.94㎡
新築
4,290万円



| 物件種別 | 新築戸建 |
| 所在地 | GoogleMaps |
| 交通 | |
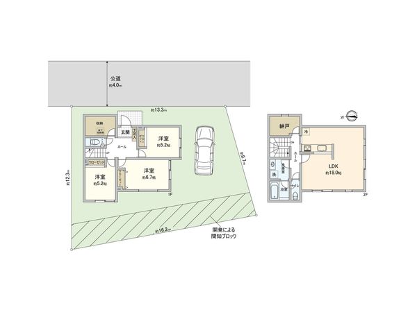
| 間取り | 3SLDK ※S・サービススペースは納戸です |
| 建物面積 | 96.88㎡(約29.3坪) |
| 土地面積 | 161.14㎡(約48.74坪) |
| 築年月 | 2025年10月築 |
■ おすすめポイント ━━━━━━━━━━━━━━━・・・・・ ○ 令和7年10月完成の新築戸建3SLDK ○ 2駅利用可能 JR京浜東北線「さいたま新都心」駅徒歩33分 JR京浜東北線「大宮」駅徒歩34分 ○ 広々としたLDK約18.0帖 ○ リビングが見渡せる対面式キッチン ○ 収納豊富(全居室収納、床下収納等) ○ 閑静な住宅街 ○ 駐車スペース有り(車種によります)
| 所在地 | GoogleMaps |
| 価格 | 4,290万円 |
| 交通 | |
| その他費用 | - |
| 間取り | 3SLDK ※S・サービススペースは納戸です |
| 建物面積 | 96.88㎡(約29.3坪) |
| 土地面積 | 161.14㎡(約48.74坪) |
| 築年月 | 2025年10月築 |
| 建物構造 | 木造2階建 |
| 現況 | 空家 |
| 駐車場 | - |
| 土地権利 | 所有権 |
| 地目 | 宅地 |
| 接道状況 | 東側: 約 4m (公道) |
| 建ぺい率 | 50% |
| 容積率 | 100% |
| 用途地域 | 第一種低層住居専用地域 |
| 都市計画 | 市街化区域 |
| 備考 | ※ゴミ置き場面積4.77平米(持分15分の1) ※高さ制限(10m) ※準防火地域 ※地目:宅地、雑種地 ※土地面積/161.14平米(擁壁部分約46.14平米含む) |
| 引渡時期 | 相談 |
| 取引態様 | 仲介 |
| 更新日 | 2026年05月08日 |
| 次回更新予定 | 2026年05月22日 |
| 物件番号 | F5HBGA56 |
最新のAI技術を活用した相談サービスです。
お客様一人ひとりのニーズに合わせて最適な情報をご提供します。
リハウスAIチャットの詳しい説明はこちら
GoogleMaps
| スーパー | マミーマート南中野店 約1220m(徒歩16分) |
| 公園 | 合併記念見沼公園 約570m(徒歩8分) |
| 病院 | 早川医院 約980m(徒歩13分) |
| 小学校 | 芝川小学校 約670m(徒歩9分) |
| 中学校 | 第二東中学校 約880m(徒歩11分) |
| その他利便施設1 | ローソンさいたま南中野店 約670m(徒歩9分) |
| その他利便施設2 | カワチ薬品中川店 約1040m(徒歩13分) |
三井不動産リアルティ株式会社
国土交通大臣(15)第777号
0120-031-631
0120-031-631
物件の売却をご検討の方は、 はやめの査定依頼がおすすめです!
買い替えをご検討の方はこちら0120-031-631

