松戸市新松戸6丁目
千代田・常磐緩行線 新松戸駅 徒歩17分
5LDK
建物面積:134.15㎡
土地面積:152.45㎡
新築
8,890万円



| 物件種別 | 新築戸建 |
| 所在地 | GoogleMaps |
| 交通 | |
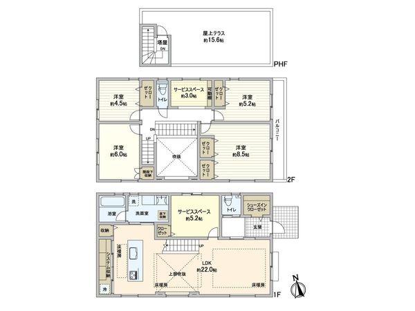
| 間取り | 4SLDK ※S・サービススペースは納戸です |
| 建物面積 | 135.59㎡(約41.01坪) |
| 土地面積 | 152.44㎡(約46.11坪) |
| 築年月 | 2026年03月築 |
■おすすめポイント ━━━━━━━━━━━━━━━・・・・・ 〇 千代田・常磐緩行線、武蔵野線「新松戸」駅 徒歩17分 〇 令和8年3月完成の新築戸建 〇 土地面積:152.44平米(約46.11坪) 〇 建物面積:135.59平米(約40.01坪)の4SLDK 〇 第一種低層住居専用地域の閑静な住宅街 〇 開放感あふれる、屋上テラス(約15.6帖)有り 〇 広々とした、約22.0帖のLDK 〇 明るく開放的な吹抜け ○ ご家族との会話が弾むアイランドキッチン 〇 洗い物の時間を短縮、食器洗浄乾燥機 〇 雨の日の衣類乾燥に便利な浴室乾燥機 〇 一日の疲れを癒すジェットバス 〇 不在時に便利な宅配ボックス ○ 小・中学校、公園が徒歩10分圏内にあり子育て環境良好です ■ライフインフォメーション ━━━━━━━━━━━━━━━・・・・・ 〇 コモディイイダ新松戸店 約600m 〇 イオンフードスタイル新松戸店 約690m 〇 サンドラッグ新松戸店 約530m 〇 ファミリーマート新松戸6丁目店 約390m 〇 新松戸南郵便局 約450m 〇 新松戸中央公園 約230m 〇 森内科クリニック 約230m 〇 松戸市立新松戸南小学校 約450m 〇 松戸市立新松戸南中学校 約400m
| 所在地 | GoogleMaps |
| 価格 | 8,890万円 |
| 交通 | |
| その他費用 | - |
| 間取り | 4SLDK ※S・サービススペースは納戸です |
| 建物面積 | 135.59㎡(約41.01坪) |
| 土地面積 | 152.44㎡(約46.11坪) |
| 築年月 | 2026年03月築 |
| 建物構造 | 木造2階建 |
| 現況 | 空家 |
| 駐車場 | 有 |
| 土地権利 | 所有権 |
| 地目 | 宅地 |
| 接道状況 | 東側: 約 6m (公道) |
| 建ぺい率 | 50% |
| 容積率 | 100% |
| 用途地域 | 第一種低層住居専用地域 |
| 都市計画 | 市街化区域 |
| 備考 | ※屋上テラスは建築面積に含まれません。 ※小学校・中学校までの距離は通学路ではございません。 |
| 引渡時期 | 2026年04月下旬以降 |
| 取引態様 | 仲介 |
| 更新日 | 2026年04月13日 |
| 次回更新予定 | 2026年04月27日 |
| 物件番号 | F77BGA04 |
最新のAI技術を活用した相談サービスです。
お客様一人ひとりのニーズに合わせて最適な情報をご提供します。
リハウスAIチャットの詳しい説明はこちら
GoogleMaps
| スーパー | コモディイイダ新松戸店 約600m(徒歩8分) |
| スーパー | イオンフードスタイル新松戸店 約690m(徒歩9分) |
| 公園 | 新松戸中央公園 約230m(徒歩3分) |
| 病院 | 森内科クリニック 約230m(徒歩3分) |
| 小学校 | 松戸市立新松戸南小学校 約450m(徒歩6分) |
| 中学校 | 松戸市立新松戸南中学校 約400m(徒歩5分) |
| その他利便施設1 | サンドラッグ新松戸店 約530m(徒歩7分) |
| その他利便施設2 | ファミリーマート新松戸六丁目店 約390m(徒歩5分) |
| その他利便施設3 | 新松戸南郵便局 約450m(徒歩6分) |
0120-984-331
0120-984-331
物件の売却をご検討の方は、 はやめの査定依頼がおすすめです!
買い替えをご検討の方はこちら0120-984-331

