相模原市中央区由野台1丁目
横浜線 淵野辺駅 徒歩15分
3SLDK
建物面積:88.14㎡
土地面積:89㎡
2026年09月築(予定)
4,799万円



| 物件種別 | 新築戸建 |
| 所在地 | GoogleMaps |
| 交通 | |
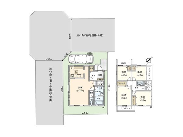
| 間取り | 3LDK |
| 建物面積 | 88.59㎡(約26.79坪) |
| 土地面積 | 88.93㎡(約26.9坪) |
| 築年月 | 2026年02月築 |
■ おすすめポイント ━━━━━━━━━━━━━━━・・・ ○ 土地面積88.93平米 建物面積88.59平米の3LDKの新築戸建 ○ JR横浜線「淵野辺」駅 徒歩14分 ○ 第一種低層住居専用地域 ○ 角地につき開放感あり ○ バルコニー南東向き ○ 全居室2面採光&収納スペース ○ 約17帖LDK&対面式キッチン ○ 家事時短の住設備が充実 ○ 将来間仕切りで間取り変更可能 ○ 公園、小学校が徒歩4分圏内 子育て環境良好 ○ 生活利便性良好 ○ ZEH水準省エネ住宅 ○ 駐車スペース1台分(車種による) ○ 前面道路幅 約6m ■ 三井のリハウス相模大野センターへお車でご来店いただく場合 ━━━━━━━━━━━━━━━・・・ ・ボーノ相模大野内にある【タイムズ相模原市営相模大野駅西側自動車駐車場】もしくは ・行幸通り沿いにある【タイムズ相模原市営相模大野立体駐車場】をご利用ください。 (入庫されたお時間確認のため、発行された駐車券はお手数ですが店舗までお持ちください) お帰りの際【駐車サービス券】をお渡しいたします。
| 所在地 | GoogleMaps |
| 価格 | 4,799万円 |
| 交通 | |
| その他費用 | - |
| 間取り | 3LDK |
| 建物面積 | 88.59㎡(約26.79坪) |
| 土地面積 | 88.93㎡(約26.9坪) |
| 築年月 | 2026年02月築 |
| 建物構造 | 木造2階建 |
| 現況 | 空家 |
| 駐車場 | - |
| 土地権利 | 所有権 |
| 地目 | 宅地 |
| 接道状況 | 北西側: 約 6m (公道)、南西側: 約 5m (公道) |
| 建ぺい率 | 50% |
| 容積率 | 100% |
| 用途地域 | 第一種低層住居専用地域 |
| 都市計画 | 市街化区域 |
| 備考 | - |
| 引渡時期 | 相談 |
| 取引態様 | 仲介 |
| 更新日 | 2026年05月15日 |
| 次回更新予定 | 2026年05月29日 |
| 物件番号 | F80AGB7B |
最新のAI技術を活用した相談サービスです。
お客様一人ひとりのニーズに合わせて最適な情報をご提供します。
リハウスAIチャットの詳しい説明はこちら
GoogleMaps
| スーパー | ビッグ・エー 相模原共和店 約540m(徒歩7分) |
| 公園 | 由野台第3公園 約250m(徒歩4分) |
| 病院 | 遠藤クリニック 約150m(徒歩2分) |
| 小学校 | 相模原市立共和小学校 約260m(徒歩4分) |
| 中学校 | 相模原市立由野台中学校 約980m(徒歩13分) |
| その他利便施設1 | 淵野辺駅(JR東日本横浜線) 約1100m(徒歩14分) |
| その他利便施設2 | ツルハドラッグ相模原由野台店 約550m(徒歩7分) |
| その他利便施設3 | ローソン相模原大野台一丁目店 約620m(徒歩8分) |
| その他利便施設4 | 相模原大野台郵便局 約540m(徒歩7分) |
三井不動産リアルティ株式会社
国土交通大臣(15)第777号
0120-944-131
0120-944-131
物件の売却をご検討の方は、 はやめの査定依頼がおすすめです!
買い替えをご検討の方はこちら0120-944-131

