相模原市南区東大沼4丁目
横浜線 古淵駅 バス16分 西通り 停歩2分
4LDK
建物面積:96.05㎡
土地面積:100.15㎡
2025年11月築(予定)
5,380万円



| 物件種別 | 新築戸建 |
| 所在地 | GoogleMaps |
| 交通 | |
| 間取り | 4LDK |
| 建物面積 | 114.62㎡(約34.67坪) |
| 土地面積 | 151.64㎡(約45.87坪) |
| 築年月 | 2025年10月築 |
返済計画を入力すると毎月のお支払い目安を表示できます
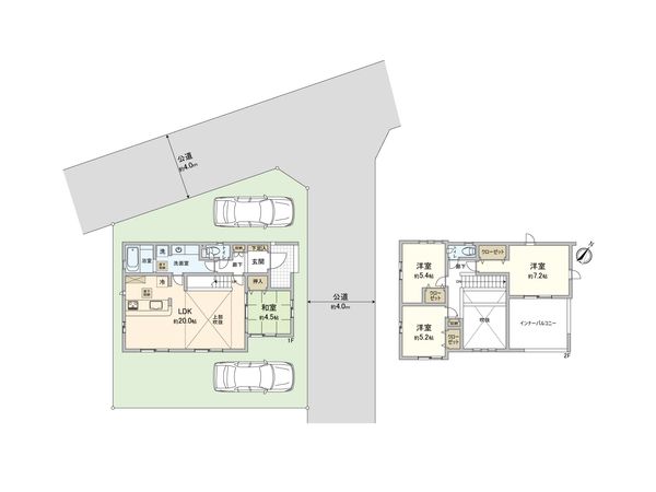
-物件のおすすめポイント- ▼立地 ・小田急線「相模大野」駅 徒歩25分 バスのご利用も可能です。 ・北東・北西角地の為日照良好。開放感がございます。 ▼建物の特徴 ・令和7年10月完成の新築戸建 ・全居室収納付きの4LDK ・駐車2台可 ※車種による ・急な天候の変化にも対応可能なインナーバルコニー ▼お部屋の特徴 ・約20.0帖のLDK。上部吹抜の明るいお部屋です。 ・隣接する畳スペースは洋室仕様です。 扉を開放すると、約24.5帖の一体空間としてご利用いただけます。 ・デザインにこだわったフルフラットカウンターの洗面室 ■ 三井のリハウス相模大野センターへお車でご来店いただく場合 ━━━━━━━━━━━━━━━・・・・・ ・ボーノ相模大野内にある【タイムズ相模原市営相模大野駅西側自動車駐車場】もしくは ・行幸通り沿いにある【タイムズ相模原市営相模大野立体駐車場】をご利用ください。 (入庫されたお時間確認のため、発行された駐車券はお手数ですが店舗までお持ちください) お帰りの際【駐車サービス券】をお渡しいたします。
| 所在地 | GoogleMaps |
| 価格 | 5,380万円 |
| 交通 | |
| その他費用 | - |
| 間取り | 4LDK |
| 建物面積 | 114.62㎡(約34.67坪) |
| 土地面積 | 151.64㎡(約45.87坪) |
| 築年月 | 2025年10月築 |
| 建物構造 | 木造2階建 |
| 現況 | 空家 |
| 駐車場 | - |
| 土地権利 | 所有権 |
| 地目 | 宅地 |
| 接道状況 | - |
| 建ぺい率 | 50% |
| 容積率 | 100% |
| 用途地域 | 第一種低層住居専用地域 |
| 都市計画 | 市街化区域 |
| 備考 | - |
| 引渡時期 | 相談 |
| 取引態様 | 仲介 |
| 更新日 | 2025年10月25日 |
| 次回更新予定 | 2025年11月08日 |
| 物件番号 | F80ARA13 |
GoogleMaps
| スーパー | 新鮮市場なかや 相模原大沼店 約720m(徒歩9分) |
| スーパー | ライフ相模原若松店 約890m(徒歩12分) |
| 公園 | 御園なかよし公園 約70m(徒歩1分) |
| 病院 | 武宮医院 約0m(徒歩0分) |
| 小学校 | 相模原市立大沼小学校 約870m(徒歩11分) |
| 中学校 | 相模原市立麻溝台中学校 約1050m(徒歩14分) |
| その他利便施設1 | セブンイレブン相模原西大沼5丁目店 約750m(徒歩10分) |
| その他利便施設2 | ローソンストア100相模原栄町店 約570m(徒歩8分) |
| その他利便施設3 | 相模原若松郵便局 約630m(徒歩8分) |
| その他利便施設4 | クリエイトエス・ディー相模原東大沼店 約660m(徒歩9分) |
三井不動産リアルティ株式会社
国土交通大臣(15)第777号
0120-944-131
0120-944-131
物件の売却をご検討の方は、 はやめの査定依頼がおすすめです!
買い替えをご検討の方はこちら0120-944-131
