川崎市高津区向ケ丘
東急田園都市線 宮崎台駅 徒歩17分
4LDK
建物面積:104.33㎡
土地面積:140.2㎡
2026年08月築(予定)
6,480万円



| 物件種別 | 新築戸建 |
| 所在地 | GoogleMaps |
| 交通 | 東急田園都市線 宮崎台駅 徒歩17分 |
| 間取り | 4LDK |
| 建物面積 | 103.91㎡(約31.43坪) |
| 土地面積 | 136.8㎡(約41.38坪) |
| 築年月 | 2026年08月築(予定) |
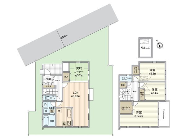
■ アクセス ━━━━━━━━━━━━━━━・・・・・ ○ 東急田園都市線『宮崎台』駅 徒歩17分 ○ 東急田園都市線『梶が谷』駅 バス13分 「上作南原」停歩4分 ■ おすすめポイント ━━━━━━━━━━━・・・・・ ○ 土地面積136.80平米 ○ 建物面積103.91平米の4LDK ○ 全居室南東向きで日当たり良好 ○ お料理の受け渡しに便利な対面式のキッチン ○ リビングの続き間として使えるタタミコーナー ○ 主寝室にはウォークインクローゼット付 ○ 広々としたお庭付き ○ 駐車スペース1台分(車種による制限あり) ○ 低層地域の閑静な住宅街に立地 ○ 小学校・公園が徒歩10分圏内にあり子育て環境良好
| 所在地 | GoogleMaps |
| 価格 | 6,480万円 |
| 交通 | 東急田園都市線 宮崎台駅 徒歩17分 |
| その他費用 | - |
| 間取り | 4LDK |
| 建物面積 | 103.91㎡(約31.43坪) |
| 土地面積 | 136.8㎡(約41.38坪) |
| 築年月 | 2026年08月築(予定) |
| 建物構造 | 木造2階建 |
| 現況 | 未完成 |
| 駐車場 | - |
| 土地権利 | 所有権 |
| 地目 | 宅地 |
| 接道状況 | - |
| 建ぺい率 | 50% |
| 容積率 | 80% |
| 用途地域 | 第一種低層住居専用地域 |
| 都市計画 | 市街化区域 |
| 建築確認番号 | 第KSⅠ26-3820-50035号 |
| 備考 | - |
| 引渡時期 | 2026年09月上旬以降 |
| 取引態様 | 仲介 |
| 更新日 | 2026年04月30日 |
| 次回更新予定 | 2026年05月14日 |
| 物件番号 | F85BGA53 |
最新のAI技術を活用した相談サービスです。
お客様一人ひとりのニーズに合わせて最適な情報をご提供します。
リハウスAIチャットの詳しい説明はこちら
GoogleMaps
| スーパー | フーズマーケットさえき上作延店 約800m(徒歩10分) |
| 公園 | 上作延南原公園 約120m(徒歩2分) |
| 病院 | 上作延南原公園 約820m(徒歩11分) |
| 小学校 | 川崎市立南原小学校 約150m(徒歩2分) |
| 中学校 | 川崎市立向丘中学校 約1180m(徒歩15分) |
| その他利便施設1 | セブンイレブン川崎宮崎北店 約300m(徒歩4分) |
| その他利便施設2 | クリエイトエス・ディー川崎高津向ケ丘店 約240m(徒歩3分) |
三井不動産リアルティ株式会社
国土交通大臣(15)第777号
0120-313-710
0120-313-710
物件の売却をご検討の方は、 はやめの査定依頼がおすすめです!
買い替えをご検討の方はこちら0120-313-710

