横浜市青葉区鴨志田町
東急田園都市線 青葉台駅 バス16分 鴨志田町 停歩4分
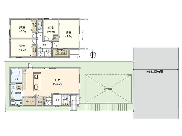
4LDK
建物面積:114.89㎡
土地面積:192.89㎡
2026年05月築(予定)
10,880万円



| 物件種別 | 新築戸建 |
| 所在地 | GoogleMaps |
| 交通 | 東急田園都市線 青葉台駅 徒歩6分 |
| 間取り | 4LDK |
| 建物面積 | 135.77㎡(約41.07坪) |
| 土地面積 | 135㎡(約40.83坪) |
| 築年月 | 2025年09月築 |
予約制内覧会を開催します!
| 開催日 | 4月19日(日)11:00 ~ 17:00 4月25日(土)11:00 ~ 17:00 4月26日(日)11:00 ~ 17:00 5月9日(土)11:00 ~ 17:00 5月10日(日)11:00 ~ 17:00 |
|---|
-物件のおすすめポイント- ▼立地 ・東急田園都市線『青葉台』駅 徒歩6分 ▼建物の特徴 ・令和7年9月完成の新築戸建 ・電動シャッター付きの地下車庫(車種による制限あり) ・眺望の良い高台に立地 ▼お部屋の特徴 ・20帖超えの広々としたLDK ・コミュニケーションを育むリビング階段 ▼設備 ・シンク周りをスッキリみせる浄水器一体型水栓 ・調味料のストックや非常食の収納に便利なパントリー付き ・天候問わずお洗濯が可能になる浴室換気乾燥機 ・洋室約8.4帖にウォークインクローゼットを設置 ▼周辺環境 ・まいばすけっと青葉台北店まで徒歩4分(約280m) ・青葉台第二公園まで徒歩2分(約150m) ・クリエイトSD青葉台二丁目店まで徒歩4分(約260m) ■ ご希望の住まい探しをお手伝いします ━━━━━・・・ 物件の詳細・ご相談はお気軽にお問い合わせください。
| 所在地 | GoogleMaps |
| 価格 | 10,880万円 |
| 交通 | 東急田園都市線 青葉台駅 徒歩6分 |
| その他費用 | - |
| 間取り | 4LDK |
| 建物面積 | 135.77㎡(約41.07坪) |
| 土地面積 | 135㎡(約40.83坪) |
| 築年月 | 2025年09月築 |
| 建物構造 | 木造2階建 |
| 現況 | 空家 |
| 駐車場 | - |
| 土地権利 | 所有権 |
| 地目 | 宅地 |
| 接道状況 | - |
| 建ぺい率 | 40% |
| 容積率 | 80% |
| 用途地域 | 第一種低層住居専用地域 |
| 都市計画 | 市街化区域 |
| 備考 | - |
| 引渡時期 | 相談 |
| 取引態様 | 仲介 |
| 更新日 | 2026年04月16日 |
| 次回更新予定 | 2026年04月30日 |
| 物件番号 | F88AGA8F |
最新のAI技術を活用した相談サービスです。
お客様一人ひとりのニーズに合わせて最適な情報をご提供します。
リハウスAIチャットの詳しい説明はこちら
GoogleMaps
| スーパー | まいばすけっと青葉台北店 約280m(徒歩4分) |
| スーパー | 成城石井青葉台店 約470m(徒歩6分) |
| 公園 | 青葉台第二公園 約150m(徒歩2分) |
| 病院 | たけのこメディカルパーク分院 内科・消化器・内視鏡クリニック 約370m(徒歩5分) |
| 小学校 | 横浜市立青葉台小学校 約1100m(徒歩14分) |
| 中学校 | 横浜市立青葉台中学校 約280m(徒歩4分) |
| その他利便施設1 | セブンイレブン横浜青葉台駅前店 約280m(徒歩4分) |
| その他利便施設2 | クリエイトSD青葉台二丁目店 約260m(徒歩4分) |
| その他利便施設3 | 青葉台東急スクエア 約420m(徒歩6分) |
| その他利便施設4 | 青葉台郵便局 約380m(徒歩5分) |
三井不動産リアルティ株式会社
国土交通大臣(15)第777号
0120-313-740
0120-313-740
物件の売却をご検討の方は、 はやめの査定依頼がおすすめです!
買い替えをご検討の方はこちら0120-313-740

