藤沢市本鵠沼4丁目
小田急電鉄江ノ島線 本鵠沼駅 徒歩10分
1LDK+S×2
建物面積:94.19㎡
土地面積:115.64㎡
2026年05月築(予定)
8,399万円



| 物件種別 | 新築戸建 |
| 所在地 | GoogleMaps |
| 交通 | |
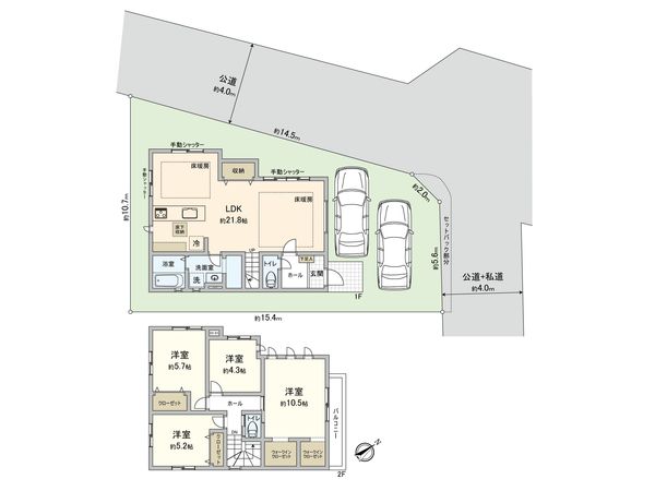
| 間取り | 4LDK |
| 建物面積 | 107.02㎡(約32.37坪) |
| 土地面積 | 135.18㎡(約40.89坪) ※別途私道約4.92㎡有 |
| 築年月 | 2026年03月築(予定) |
返済計画を入力すると毎月のお支払い目安を表示できます
-物件のおすすめポイント- ▼立地 ・江ノ島電鉄「柳小路」徒歩5分 小田急江ノ島線「本鵠沼」徒歩8分 2路線利用可能で通勤・通学に便利 ・第一種低層住居専用地域の閑静な住宅街 ・風致地区内の緑豊かな住環境 ▼建物の特徴 ・カースペース2台分あり(車種による) ・北西・北東角地につき開放感あり ▼お部屋の特徴 ・少ないガス量で効率よくお湯を沸かす省エネ性の高い 給湯器、エコジョーズを採用 ・LDKは約21.8帖とゆったり寛げる空間 ・自然光が入る全居室2面採光 ・全居室フローリング仕様 ▼設備 ・家族の様子を見ながら料理ができる対面式キッチン ・食器洗浄乾燥機付 ・窓がある浴室 ・温水洗浄便座付トイレ ・大型の荷物を収納できるウォークインクローゼット ・床暖房 ・断熱性、遮熱性、防露性に優れた複層ガラス採用 ▼周辺環境 ・FUJI鵠沼藤が谷店まで徒歩9分(約650m) ・上藤が谷公園まで徒歩2分(約100m) ■ ご希望の住まい探しをお手伝いします ━━━━・・・ 物件の詳細・ご相談はお気軽にお問い合わせください。
| 所在地 | GoogleMaps |
| 価格 | 8,399万円 |
| 交通 | |
| その他費用 | - |
| 間取り | 4LDK |
| 建物面積 | 107.02㎡(約32.37坪) |
| 土地面積 | 135.18㎡(約40.89坪) ※別途私道約4.92㎡有 |
| 築年月 | 2026年03月築(予定) |
| 建物構造 | 木造2階建 |
| 現況 | 未完成 |
| 駐車場 | 有 |
| 土地権利 | 所有権 |
| 地目 | 宅地 |
| 接道状況 | 北西側: 約 4m (公道)、北東側: 約 4m (公道) |
| 建ぺい率 | 40% |
| 容積率 | 80% |
| 用途地域 | 第一種低層住居専用地域 |
| 都市計画 | 市街化区域 |
| 建築確認番号 | 第25UDI1W建09589号 |
| 備考 | 法22条区域/宅地造成工事規制区域/第3号鵠沼風致地区 ※北東側前面道路は公道+私道です |
| 引渡時期 | 相談 |
| 取引態様 | 仲介 |
| 更新日 | 2026年01月12日 |
| 次回更新予定 | 2026年01月26日 |
| 物件番号 | F90BGA04 |
最新のAI技術を活用した相談サービスです。
お客様一人ひとりのニーズに合わせて最適な情報をご提供します。
リハウスAIチャットの詳しい説明はこちら
GoogleMaps
| スーパー | FUJI 鵠沼藤が谷店 約650m(徒歩9分) |
| 公園 | 上藤が谷公園 約100m(徒歩2分) |
| 公園 | 桜小路公園 約450m(徒歩6分) |
| 病院 | 鵠沼藤が谷内科 約650m(徒歩9分) |
| 小学校 | 藤沢市立鵠洋小学校 約860m(徒歩11分) |
| 中学校 | 藤沢市立鵠沼中学校 約1270m(徒歩16分) |
| その他利便施設1 | セブン-イレブン 藤沢片瀬山店 約590m(徒歩8分) |
| その他利便施設2 | クリエイトS・D 藤沢片瀬店 約1020m(徒歩13分) |
| その他利便施設3 | 鵠沼駅前郵便局 約1010m(徒歩13分) |
| その他利便施設4 | 柳小路駅(江ノ島電鉄) 約360m(徒歩5分) |
0120-399-031
0120-399-031
物件の売却をご検討の方は、 はやめの査定依頼がおすすめです!
買い替えをご検討の方はこちら0120-399-031

