茅ヶ崎市柳島1丁目
東海道本線(東京~熱海) 茅ケ崎駅 バス10分 浜見平団地 停歩4分
2SLDK
建物面積:100.4㎡
土地面積:101.7㎡
2026年03月築(予定)
5,299万円



| 物件種別 | 新築戸建 |
| 所在地 | GoogleMaps |
| 交通 | |
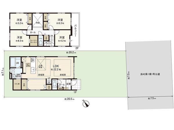
| 間取り | 4LDK |
| 建物面積 | 105.72㎡(約31.98坪) |
| 土地面積 | 154.57㎡(約46.75坪) |
| 築年月 | 2025年10月築 |
返済計画を入力すると毎月のお支払い目安を表示できます
■ おすすめポイント ━━━━━━━━━・・・・・ 〇 土地面積約46.75坪の整形地 〇 カースペース2台分あり(2台分は車種による) 〇 南東側道路につき日当たり良好 〇 前面道路幅員約7.5mにつき開放感あり 〇 広々としたリビング約22.2帖 〇 吹き抜けのある開放感あふれるリビングダイニング 〇 家族との会話が弾む対面式キッチン 〇 リビングは寒い日でも暖かく過ごせる床暖房付 〇 リネン庫・床下収納・ウォークインクローゼットなどもあり、収納豊富 ■ 担当者より ━━━━━━━━━━━━・・・・・ 周辺環境や施設のご案内はもちろん、周辺物件も併せてご紹介できます。また、購入に際しての諸費用、住宅ローン(月々の返済例など)等、資金計画のご相談も承っておりますので、お気軽にお問合せ下さいませ!お客様からのお問い合わせ、心よりお待ちしております!
| 所在地 | GoogleMaps |
| 価格 | 5,299万円 |
| 交通 | |
| その他費用 | - |
| 間取り | 4LDK |
| 建物面積 | 105.72㎡(約31.98坪) |
| 土地面積 | 154.57㎡(約46.75坪) |
| 築年月 | 2025年10月築 |
| 建物構造 | 木造2階建 |
| 現況 | 空家 |
| 駐車場 | 有 |
| 土地権利 | 所有権 |
| 地目 | 宅地 |
| 接道状況 | 南東側: 約 7.5m (公道) |
| 建ぺい率 | 60% |
| 容積率 | 200% |
| 用途地域 | 第一種中高層住居専用地域 |
| 都市計画 | 市街化区域 |
| 備考 | - |
| 引渡時期 | 相談 |
| 取引態様 | 仲介 |
| 更新日 | 2025年12月08日 |
| 次回更新予定 | 2025年12月22日 |
| 物件番号 | F99AGBC3 |
最新のAI技術を活用した相談サービスです。
お客様一人ひとりのニーズに合わせて最適な情報をご提供します。
リハウスAIチャットの詳しい説明はこちら
GoogleMaps
| 公園 | 宮の下公園 約260m(徒歩4分) |
| 公園 | 柳島スポーツ公園 約750m(徒歩10分) |
| 小学校 | 茅ヶ崎市立柳島小学校 約450m(徒歩6分) |
| 中学校 | 茅ヶ崎市立中島中学校 約550m(徒歩7分) |
| その他利便施設1 | クリエイトS・D茅ヶ崎柳島店 約550m(徒歩7分) |
| その他利便施設2 | ファミリーマート茅ケ崎中島店 約550m(徒歩7分) |
| その他利便施設3 | 竜泉寺の湯湘南茅ヶ崎店 約800m(徒歩10分) |
| その他利便施設4 | ニトリ茅ヶ崎店 約900m(徒歩12分) |
| その他利便施設5 | BRANCH茅ヶ崎1 約1000m(徒歩13分) |
三井不動産リアルティ株式会社
国土交通大臣(15)第777号
0120-329-031
0120-329-031
物件の売却をご検討の方は、 はやめの査定依頼がおすすめです!
買い替えをご検討の方はこちら0120-329-031

