茅ヶ崎市松林2丁目
東海道本線(東京~熱海) 辻堂駅 バス11分 松林 停歩2分
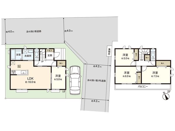
4LDK
建物面積:105.16㎡
土地面積:126.73㎡
新築
4,190万円



| 物件種別 | 新築戸建 |
| 所在地 | GoogleMaps |
| 交通 | |
| 間取り | 4LDK |
| 建物面積 | 94.81㎡(約28.68坪) |
| 土地面積 | 99.94㎡(約30.23坪) |
| 築年月 | 2026年02月築 |
■ おすすめポイント ━━━━━━━━━・・・・・ 〇JR東海道本線「辻堂駅」「茅ヶ崎駅」2駅バスアクセス可能 〇スーパー・コンビニ・ドラッグストア、松林小学校まで徒歩10分圏内 〇北東二面接道で開放的な立地、車庫入れも楽々 〇全居室2面採光、風通し良好 〇1階はLDK隣接の洋室と合わせると約21帖の広々スペース 〇2部屋から出入りできる南向きバルコニー 〇ZEH水準の省エネ高断熱住宅 ■ 担当者より ━━━━━━━━━━━━・・・・・ 周辺環境や施設のご案内はもちろん、周辺物件も併せてご紹介できます。また、購入に際しての諸費用、住宅ローン(月々の返済例など)等、資金計画のご相談も承っておりますので、お気軽にお問合せ下さい!
| 所在地 | GoogleMaps |
| 価格 | 4,190万円 |
| 交通 | |
| その他費用 | - |
| 間取り | 4LDK |
| 建物面積 | 94.81㎡(約28.68坪) |
| 土地面積 | 99.94㎡(約30.23坪) |
| 築年月 | 2026年02月築 |
| 建物構造 | 木造2階建 |
| 現況 | 空家 |
| 駐車場 | 有 |
| 土地権利 | 所有権 |
| 地目 | 宅地 |
| 接道状況 | - |
| 建ぺい率 | 60% |
| 容積率 | 200%(但し、前面道路幅員(m)×4/10×100%に制限されます。) |
| 用途地域 | 第一種中高層住居専用地域 |
| 都市計画 | 市街化区域 |
| 備考 | ※第二種高度地区、準防火地域 |
| 引渡時期 | 相談 |
| 取引態様 | 仲介 |
| 更新日 | 2026年05月15日 |
| 次回更新予定 | 2026年05月29日 |
| 物件番号 | F99AGBCB |
最新のAI技術を活用した相談サービスです。
お客様一人ひとりのニーズに合わせて最適な情報をご提供します。
リハウスAIチャットの詳しい説明はこちら
GoogleMaps
| スーパー | やまか松林店 約700m(徒歩9分) |
| 小学校 | 茅ヶ崎市立松林小学校 約290m(徒歩4分) |
| 中学校 | 茅ヶ崎市立松林中学校 約950m(徒歩12分) |
| その他利便施設1 | セブンイレブン茅ヶ崎松林2丁目店 約500m(徒歩7分) |
| その他利便施設2 | クリエイトS・D茅ヶ崎松林店 約800m(徒歩10分) |
三井不動産リアルティ株式会社
国土交通大臣(15)第777号
0120-329-031
0120-329-031
物件の売却をご検討の方は、 はやめの査定依頼がおすすめです!
買い替えをご検討の方はこちら0120-329-031

