目黒区下目黒6丁目
東急目黒線 武蔵小山駅 徒歩17分
4LDK
建物面積:145.62㎡
土地面積:85.89㎡
2026年05月築(予定)
22,980 万円



| 物件種別 | 新築戸建 |
| 所在地 | GoogleMaps |
| 交通 | 山手線 目黒駅 徒歩10分 |
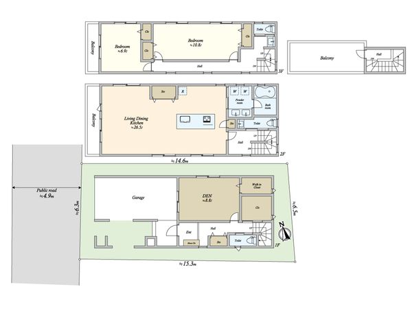
| 間取り | 2SLDK ※S・サービススペースは納戸です |
| 建物面積 | 181.79㎡(約54.99坪) |
| 土地面積 | 98.55㎡(約29.81坪) |
| 築年月 | 2025年11月築(予定) |
返済計画を入力すると毎月のお支払い目安を表示できます
-物件のおすすめポイント- ▼立地 ・JR山手線・東京メトロ南北線・都営三田線・東急目黒線 「目黒」駅 徒歩10分 ▼建物の特徴 ・木造3階建て ・土地面積98.55平米 ・建物面積181.79平米 ・4.97平米のペントハウス ・1階には電動シャッター付きガレージ ・約8.8帖の納戸にはウォークインクローゼット等、収納充実 ・開放感のあるアイランドキッチン ・お料理に便利な3口コンロ ・各フロアにトイレ有 ・2ボウル洗面化粧台 ・窓付きで通風のよい浴室 ■ ご希望の住まい探しをお手伝いします ━━━━━・・・ 物件の詳細・ご相談はお気軽にお問い合わせください。
| 所在地 | GoogleMaps |
| 価格 | 22,980万円 |
| 交通 | 山手線 目黒駅 徒歩10分 |
| その他費用 | - |
| 間取り | 2SLDK ※S・サービススペースは納戸です |
| 建物面積 | 181.79㎡(約54.99坪) |
| 土地面積 | 98.55㎡(約29.81坪) |
| 築年月 | 2025年11月築(予定) |
| 建物構造 | 木造3階建 |
| 現況 | 未完成 |
| 駐車場 | - |
| 土地権利 | 所有権 |
| 地目 | 宅地 |
| 接道状況 | 北西側: 約 4.9m (公道) |
| 建ぺい率 | 70% |
| 容積率 | 192% |
| 用途地域 | 第一種中高層住居専用地域 |
| 都市計画 | 市街化区域 |
| 建築確認番号 | 第JAIC2024W0420A |
| 備考 | ・建物面積181.79平米には、車庫21.73平米を含みます。 ・本物件は、11月末完成予定です。 |
| 引渡時期 | 2025年11月下旬以降 |
| 取引態様 | 仲介 |
| 更新日 | 2025年10月25日 |
| 次回更新予定 | 2025年11月08日 |
| 物件番号 | FBIAGAE1 |
三井不動産リアルティ株式会社
国土交通大臣(15)第777号
0120-923-731
0120-923-731
物件の売却をご検討の方は、 はやめの査定依頼がおすすめです!
買い替えをご検討の方はこちら0120-923-731
