横浜市栄区長沼町
東海道本線(東京~熱海) 戸塚駅 バス12分 長沼 停歩1分
4LDK
建物面積:108.48㎡
土地面積:129.06㎡
2026年09月築(予定)
4,380万円



| 物件種別 | 新築戸建 |
| 所在地 | GoogleMaps |
| 交通 | |
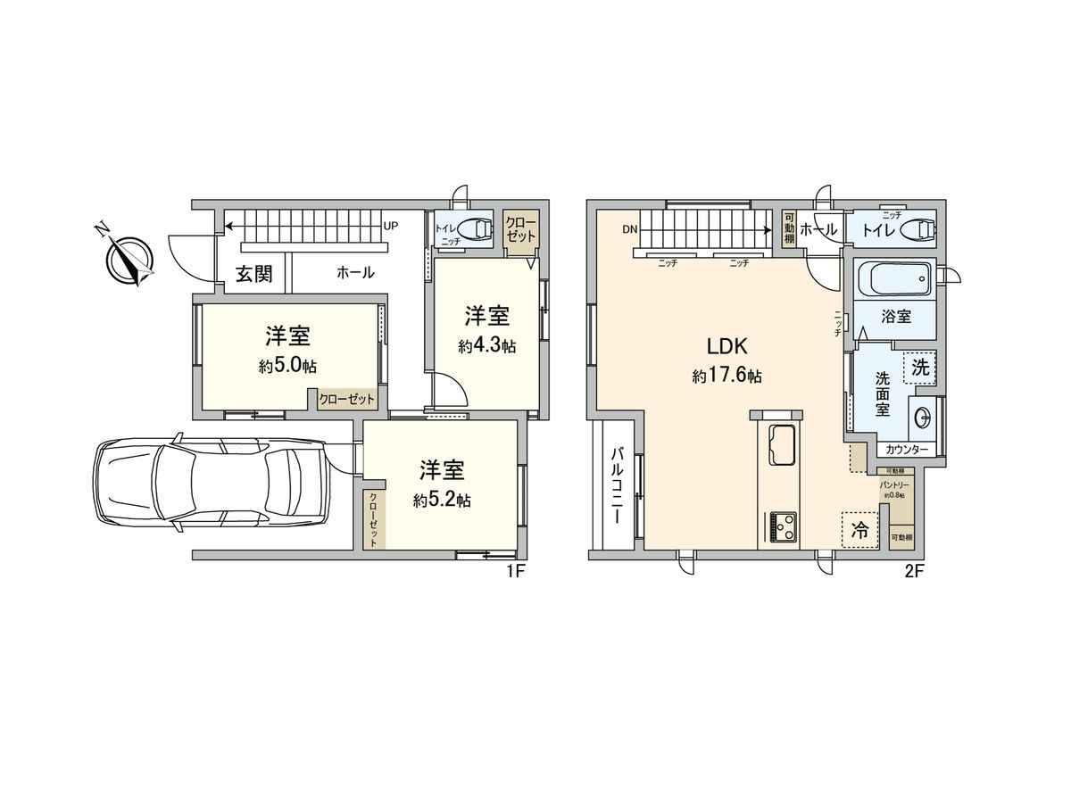
| 間取り | 3LDK |
| 建物面積 | 87.77㎡(約26.55坪) |
| 土地面積 | 98.78㎡(約29.88坪) |
| 築年月 | 2026年02月築 |
■おすすめポイント ━━━━━━━━━━━━━━━・・・・・ 〇 京浜東北根岸線「本郷台」駅徒歩18分 東海道線他「大船」駅バス7分「公田」徒歩7分 〇 周辺は低層戸建てが建ち並ぶ閑静な住宅街 〇 家族が集うリビングダイニングは約17.6帖 〇 設備・仕様 ・システムキッチン(食洗機、浄水器付) ・ユニットバス(オート機能、浴室暖房乾燥機付) ・洗面化粧台(三面鏡、シャワー、鏡裏収納付) ・温水洗浄機能付トイレ2カ所 ・ガス式乾燥機(専用台付) ・シャッター付窓 ・全居室収納 ・宅配BOX付ポスト ・テレビモニター付インターホンなど 周辺環境、周辺物件も併せてご案内いたします。 また、購入に際しての諸費用、住宅ローン等、資金計画の ご相談も承っておりますので、お気軽にご相談下さいませ。 フリーコール「0120-343-031」
| 所在地 | GoogleMaps |
| 価格 | 4,380万円 |
| 交通 | |
| その他費用 | - |
| 間取り | 3LDK |
| 建物面積 | 87.77㎡(約26.55坪) |
| 土地面積 | 98.78㎡(約29.88坪) |
| 築年月 | 2026年02月築 |
| 建物構造 | 木造2階建 |
| 現況 | 空家 |
| 駐車場 | - |
| 土地権利 | 所有権 |
| 地目 | 宅地 |
| 接道状況 | - |
| 建ぺい率 | 50% |
| 容積率 | 100% |
| 用途地域 | 第一種低層住居専用地域 |
| 都市計画 | 市街化区域 |
| 備考 | - |
| 引渡時期 | 相談 |
| 取引態様 | 仲介 |
| 更新日 | 2026年05月25日 |
| 次回更新予定 | 2026年06月08日 |
| 物件番号 | FE1AGA8A |
最新のAI技術を活用した相談サービスです。
お客様一人ひとりのニーズに合わせて最適な情報をご提供します。
リハウスAIチャットの詳しい説明はこちら
GoogleMaps
| 公園 | たいら台公園 約200m(徒歩3分) |
| 小学校 | 公田小学校 約960m(徒歩12分) |
| 中学校 | 本郷中学校 約930m(徒歩12分) |
| その他利便施設1 | ファミリーマート栄スポーツセンター店 約800m(徒歩10分) |
| その他利便施設2 | JAハマッ子直売所本郷店 約850m(徒歩11分) |
| その他利便施設3 | ピーコックストア本郷台店 約1420m(徒歩18分) |
| その他利便施設4 | 横浜栄共済病院 約830m(徒歩11分) |
0120-343-031
0120-343-031
物件の売却をご検討の方は、 はやめの査定依頼がおすすめです!
買い替えをご検討の方はこちら0120-343-031

