新座市栄5丁目
西武池袋・豊島線 大泉学園駅 バス18分 天沼マーケット前 停歩7分
4LDK
建物面積:93.15㎡
土地面積:82.9㎡
2026年01月築(予定)
4,990万円



| 物件種別 | 新築戸建 |
| 所在地 | GoogleMaps |
| 交通 | |
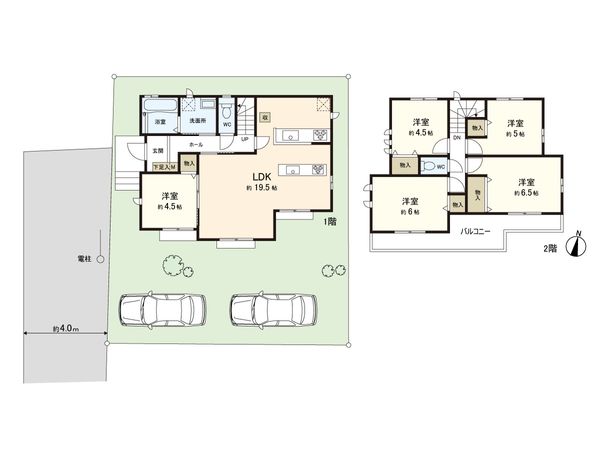
| 間取り | 5LDK |
| 建物面積 | 103.92㎡(約31.43坪) |
| 土地面積 | 145.79㎡(約44.1坪) ※別途私道約68.5㎡有 (共有持分 1320/6850) |
| 築年月 | 2026年01月築(予定) |
返済計画を入力すると毎月のお支払い目安を表示できます
■ 交通アクセス ━━━━━━━━━━━━━━・・・・・ 〇 東武東上線「朝霞」駅 バス17分 「新座栄」バス停 徒歩7分 〇 西武池袋線「大泉学園」駅 バス18分 「天沼マーケット前」バス停 徒歩8分 ■ おすすめポイント ━━━━━━━━━━━━━━━・・・・・ ○ 敷地面積145.79平米(約44.10坪) ○ 建物面積103.92平米(約31.43坪) 〇 2路線利用可能 〇 閑静な住宅街 〇 LDKは約19.5帖の広さ 〇 家族との会話が弾む対面キッチン ○ 豊富な収納スペース(全居室収納、シューズボックス) ○ 浴室乾燥機付きユニットバス ○ 1・2階にトイレ ○ ワイドバルコニー ○ カースペース2台分(車種による) 〇 スーパーやコンビニ等買い物に便利 ■ 御客様へのメッセージ ━━━━━━━━━━━━━━━・・・・・ この度は物件詳細画面をご覧いただきありがとうございます。 御客様からのお問い合わせを心よりお待ちしております。
| 所在地 | GoogleMaps |
| 価格 | 4,990万円 |
| 交通 | |
| その他費用 | - |
| 間取り | 5LDK |
| 建物面積 | 103.92㎡(約31.43坪) |
| 土地面積 | 145.79㎡(約44.1坪) ※別途私道約68.5㎡有 (共有持分 1320/6850) |
| 築年月 | 2026年01月築(予定) |
| 建物構造 | 木造2階建 |
| 現況 | 未完成 |
| 駐車場 | 有 |
| 土地権利 | 所有権 |
| 地目 | 宅地 |
| 接道状況 | 西側: 約 4m (私道) |
| 建ぺい率 | 60% |
| 容積率 | 200% |
| 用途地域 | 第一種住居地域 |
| 都市計画 | 市街化区域 |
| 建築確認番号 | 第HPA-25-09782-1号 |
| 備考 | - |
| 引渡時期 | 相談 |
| 取引態様 | 仲介 |
| 更新日 | 2025年12月25日 |
| 次回更新予定 | 2026年01月08日 |
| 物件番号 | FECAGAF1 |
最新のAI技術を活用した相談サービスです。
お客様一人ひとりのニーズに合わせて最適な情報をご提供します。
リハウスAIチャットの詳しい説明はこちら
GoogleMaps
| スーパー | いなげや大泉学園店 約730m(徒歩10分) |
| 公園 | 栄三丁目第二児童遊園 約200m(徒歩3分) |
| 小学校 | 新座市立栄小学校 約1140m(徒歩15分) |
| 中学校 | 新座市立第三中学校 約1270m(徒歩16分) |
| その他利便施設1 | セブンイレブン新座栄1丁目店 約570m(徒歩8分) |
| その他利便施設2 | 新座栄郵便局 約230m(徒歩3分) |
0120-58-1131
0120-58-1131
物件の売却をご検討の方は、 はやめの査定依頼がおすすめです!
買い替えをご検討の方はこちら0120-58-1131

