練馬区東大泉6丁目
西武池袋・豊島線 大泉学園駅 徒歩11分
1LDK+S×2
建物面積:119.47㎡
土地面積:111.01㎡
2026年06月築(予定)
11,180万円



| 物件種別 | 新築戸建 |
| 所在地 | GoogleMaps |
| 交通 | 西武池袋・豊島線 大泉学園駅 徒歩6分 |
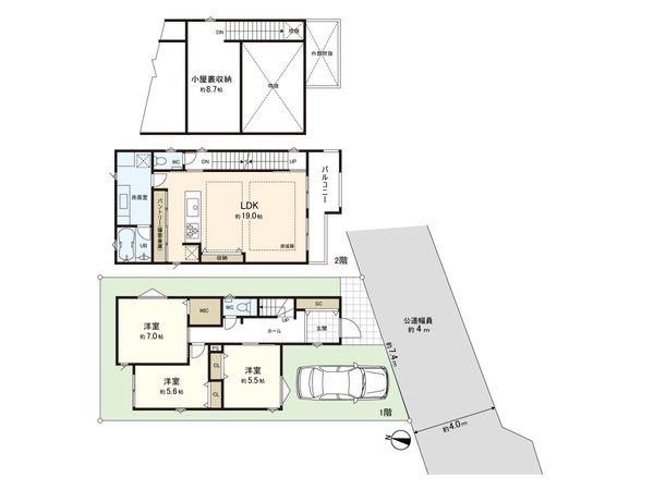
| 間取り | 3LDK |
| 建物面積 | 112.15㎡(約33.92坪) |
| 土地面積 | 100.83㎡(約30.5坪) |
| 築年月 | 2025年07月築 |
■ 交通アクセス ━━━━━━━━━━━━━━・・・・・ 〇 西武池袋線「大泉学園」駅 徒歩6分 ■ おすすめポイント ━━━━━━━━━━━━━━━・・・・・ ○ 敷地面積100.83平米(約30.50坪) ○ 建物面積112.15平米(約33.92坪) ※建物面積に車庫面積9.44平米、備蓄倉庫2.42平米を含む 〇 閑静な住宅街 ○ 採光やプライバシー面に配慮された2階リビングを採用 〇 LDには足元から暖まる床暖房 ○ 豊富な収納スペース (全居室収納、WIC、SC、パントリー、小屋裏収納) ○ たっぷり収納できるウォークインクローゼット 〇 ベビーカー等の収納に便利なシューズクローク 〇 備蓄や食料品等スッキリしまえるパントリー ○ スペースを有効活用できる小屋裏収納 〇 会話が弾む対面式キッチン(食洗機、浄水器付き) ○ 浴室乾燥暖房機付きユニットバス ○ 温水洗浄機能付きトイレ2箇所(1・2F) ○ 来客時便利なモニター付インターフォン ○ 周辺にスーパーやコンビニ等買い物に便利 ○ 公園、小・中学校が近く子育てしやすい環境 ■ 御客様へのメッセージ ━━━━━━━━━━━━━━━・・・・・ この度は物件詳細画面をご覧いただきありがとうございます。 御客様からのお問い合わせを心よりお待ちしております。
| 所在地 | GoogleMaps |
| 価格 | 11,180万円 |
| 交通 | 西武池袋・豊島線 大泉学園駅 徒歩6分 |
| その他費用 | - |
| 間取り | 3LDK |
| 建物面積 | 112.15㎡(約33.92坪) |
| 土地面積 | 100.83㎡(約30.5坪) |
| 築年月 | 2025年07月築 |
| 建物構造 | 木造2階建 |
| 現況 | 空家 |
| 駐車場 | 有 |
| 土地権利 | 所有権 |
| 地目 | 宅地 |
| 接道状況 | 南東側: 約 4m (公道) |
| 建ぺい率 | 50% |
| 容積率 | 100% |
| 用途地域 | 第一種低層住居専用地域 |
| 都市計画 | 市街化区域 |
| 備考 | ※建物面積112.15平米には、備蓄倉庫部分2.42平米が含まれます。 上記建物面積のうち1F車庫面積9.44㎡含む |
| 引渡時期 | 相談 |
| 取引態様 | 仲介 |
| 更新日 | 2026年04月13日 |
| 次回更新予定 | 2026年04月27日 |
| 物件番号 | FECBGA2E |
最新のAI技術を活用した相談サービスです。
お客様一人ひとりのニーズに合わせて最適な情報をご提供します。
リハウスAIチャットの詳しい説明はこちら
GoogleMaps
| スーパー | まいばすけっと 東大泉3丁目店 約160m(徒歩2分) |
| 小学校 | 練馬区立大泉東小学校 約480m(徒歩6分) |
| 中学校 | 大泉中学校 約505m(徒歩7分) |
| その他利便施設1 | LIVINオズ大泉 約485m(徒歩7分) |
| その他利便施設2 | ファミリーマート大泉学園駅北店 約215m(徒歩3分) |
| その他利便施設3 | スギ薬局東大泉店 約230m(徒歩3分) |
0120-58-1131
0120-58-1131
物件の売却をご検討の方は、 はやめの査定依頼がおすすめです!
買い替えをご検討の方はこちら0120-58-1131

