海老名市国分寺台5丁目
小田急電鉄小田原線 海老名駅 バス19分 国分寺台第9 停歩4分
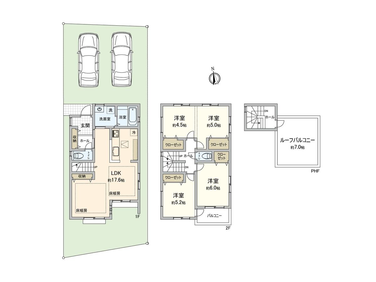
4LDK
建物面積:115.1㎡
土地面積:161.83㎡
2026年05月築(予定)
4,780万円



| 物件種別 | 新築戸建 |
| 所在地 | GoogleMaps |
| 交通 | |
| 間取り | 3LDK |
| 建物面積 | 96.26㎡(約29.11坪) |
| 土地面積 | 122.29㎡(約36.99坪) |
| 築年月 | 2026年05月築(予定) |
■ おすすめポイント ○令和8年5月完成予定の新築戸建 ○相鉄線「海老名」駅まで徒歩20分 ○小田急線「海老名」駅まで徒歩24分 ○第一種低層住居専用地域内の閑静な住宅街 ○建物面積96.26平米の3LDK ○LDKは広々の約17.6帖(床暖房あり) ○PH階にはルーフバルコニーがございます ○前面道路幅員約4.0mに約6.7m面しています ■ お気軽にお問合せください ━━━━━━━━━・・・・・ 物件見学のご要望、購入に際しての諸費用、住宅ローンのご相談など、各種ご相談を承っております。 下方にございます「お問合せ」または「見学予約」ボタン、もしくはフリーコール「0120-944-431」まで、お気軽にお問合せください。 キッズスペースやおむつ交換台もご用意しておりますので、小さなお子様をお連れしてのご来店も歓迎です。 お車でお越しの際は、 ・タイムズ海老名中央公園地下駐車場(旧市営駐車場) ・スルガ銀行様横の三井のリパーク をご利用ください。 皆様からのお問い合わせを、心よりお待ちしております。 ※ビナウォーク駐車場は提携駐車場ではございませんので、ご注意ください。
| 所在地 | GoogleMaps |
| 価格 | 4,780万円 |
| 交通 | |
| その他費用 | - |
| 間取り | 3LDK |
| 建物面積 | 96.26㎡(約29.11坪) |
| 土地面積 | 122.29㎡(約36.99坪) |
| 築年月 | 2026年05月築(予定) |
| 建物構造 | 木造2階建 |
| 現況 | 未完成 |
| 駐車場 | - |
| 土地権利 | 所有権 |
| 地目 | 宅地 |
| 接道状況 | 北東側: 約 4m (公道) |
| 建ぺい率 | 40% |
| 容積率 | 80% |
| 用途地域 | 第一種低層住居専用地域 |
| 都市計画 | 市街化区域 |
| 建築確認番号 | 第25UDI1K建01608号 |
| 備考 | - |
| 引渡時期 | 相談 |
| 取引態様 | 仲介 |
| 更新日 | 2026年04月30日 |
| 次回更新予定 | 2026年05月14日 |
| 物件番号 | FEKBGA20 |
最新のAI技術を活用した相談サービスです。
お客様一人ひとりのニーズに合わせて最適な情報をご提供します。
リハウスAIチャットの詳しい説明はこちら
GoogleMaps
| スーパー | そうてつローゼンかしわ台店 約1100m(徒歩14分) |
| スーパー | ユーコープミアクチーナ上今泉店 約1300m(徒歩17分) |
| 公園 | 緑地やすらぎ公園 約170m(徒歩3分) |
| 小学校 | 海老名市立杉本小学校 約390m(徒歩5分) |
| 中学校 | 海老名市立柏ケ谷中学校 約1700m(徒歩22分) |
| その他利便施設1 | ハックドラッグ海老名上今泉店 約1200m(徒歩15分) |
| その他利便施設2 | クリエイトエス・ディーかしわ台スクエア店 約1100m(徒歩14分) |
| その他利便施設3 | ローソン海老名国分北四丁目店 約380m(徒歩5分) |
| その他利便施設4 | 国分郵便局 約1100m(徒歩14分) |
三井不動産リアルティ株式会社
国土交通大臣(15)第777号
0120-944-431
0120-944-431
物件の売却をご検討の方は、 はやめの査定依頼がおすすめです!
買い替えをご検討の方はこちら0120-944-431

