西東京市東町2丁目
西武池袋・豊島線 保谷駅 徒歩10分
2SLDK
建物面積:100.61㎡
土地面積:81.18㎡
2025年12月築(予定)
5,990万円



| 物件種別 | 新築戸建 |
| 所在地 | GoogleMaps |
| 交通 | 西武池袋・豊島線 保谷駅 徒歩10分 |
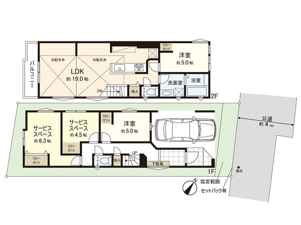
| 間取り | 2SLDK ※S・サービススペースは納戸です |
| 建物面積 | 106.81㎡(約32.31坪) |
| 土地面積 | 82.42㎡(約24.93坪) |
| 築年月 | 2025年12月築(予定) |
返済計画を入力すると毎月のお支払い目安を表示できます
■ 物件名 ━━━━━━━━━━━━━━━・・・・・ ○ 西東京市東町2丁目 新築戸建2号棟 ■ 交通 ━━━━━━━━━━━━━━━・・・・・ ○ 西武池袋線「保谷」駅 徒歩10分 ■ おすすめポイント ━━━━━━━━━━━━━━━・・・・・ ○ 敷地面積82.42平米(約24.93坪) ※ セットバック1.94平米・共有持ち分2/1 ※ 敷地内道路提供部分あり ○ インテリアの映える広々としたリビング約19帖 ○ 交通量の少ない閑静な住宅街 ○ 家族との会話が弾むカウンタキッチン ○ コミュニケーションを育むリビング階段 ○ 雨の日にも便利な浴室換気乾燥機 ○ 約6.3帖と約4.5帖のサービスルーム(納戸)はともに居室としてもお使いになれる広さです。 ○ ビルトインガレージあり(車種による制限があります) ○ 「保谷」駅周辺にはスーパーや商業施設・飲食店が立ち並んでいるため、買物便良好です。
| 所在地 | GoogleMaps |
| 価格 | 5,990万円 |
| 交通 | 西武池袋・豊島線 保谷駅 徒歩10分 |
| その他費用 | - |
| 間取り | 2SLDK ※S・サービススペースは納戸です |
| 建物面積 | 106.81㎡(約32.31坪) |
| 土地面積 | 82.42㎡(約24.93坪) |
| 築年月 | 2025年12月築(予定) |
| 建物構造 | 木造2階建 |
| 現況 | 未完成 |
| 駐車場 | 有 |
| 土地権利 | 所有権 |
| 地目 | 宅地 |
| 接道状況 | - |
| 建ぺい率 | 60% |
| 容積率 | 200% |
| 用途地域 | 準工業地域 |
| 都市計画 | 市街化区域 |
| 建築確認番号 | 第25UDI1W建04282号 |
| 備考 | ※建ぺい率は準防火地域内の準耐火建築物のため70%に緩和されます。 上記建物面積のうち1F車庫面積12.31㎡含む |
| 引渡時期 | 相談 |
| 取引態様 | 仲介 |
| 更新日 | 2025年12月12日 |
| 次回更新予定 | 2025年12月26日 |
| 物件番号 | FEPAGABC |
最新のAI技術を活用した相談サービスです。
お客様一人ひとりのニーズに合わせて最適な情報をご提供します。
リハウスAIチャットの詳しい説明はこちら
GoogleMaps
| スーパー | ヨークフーズ保谷店 約650m(徒歩9分) |
| スーパー | 西友保谷店 約720m(徒歩9分) |
| スーパー | いなげや保谷駅前店 約870m(徒歩11分) |
| 公園 | 文理台公園 約170m(徒歩3分) |
| 小学校 | 西東京市立東小学校 約550m(徒歩7分) |
| 中学校 | 西東京市立明保中学校 約360m(徒歩5分) |
| その他利便施設1 | セブンイレブン西東京東町3丁目店 約350m(徒歩5分) |
| その他利便施設2 | ローソン西東京中町二丁目店 約450m(徒歩6分) |
| その他利便施設3 | くすりのダイイチ ソレイユ保谷店 約720m(徒歩9分) |
| その他利便施設4 | 保谷東町郵便局 約190m(徒歩3分) |
三井不動産リアルティ株式会社
国土交通大臣(15)第777号
0120-40-6831
0120-40-6831
物件の売却をご検討の方は、 はやめの査定依頼がおすすめです!
買い替えをご検討の方はこちら0120-40-6831

