蕨市中央7丁目
京浜東北・根岸線 蕨駅 徒歩18分
3LDK
建物面積:116.75㎡
土地面積:68.39㎡
2026年02月築(予定)
5,480万円



| 物件種別 | 新築戸建 |
| 所在地 | GoogleMaps |
| 交通 | 京浜東北・根岸線 蕨駅 徒歩8分 |
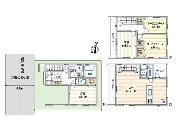
| 間取り | 2SLDK ※S・サービススペースは納戸です |
| 建物面積 | 109.3㎡(約33.06坪) |
| 土地面積 | 61.67㎡(約18.65坪) |
| 築年月 | 2026年05月築(予定) |
返済計画を入力すると毎月のお支払い目安を表示できます
-物件のおすすめポイント- ▼立地 ・JR京浜東北・根岸線「蕨」駅 徒歩8分の好立地 ▼建物の特徴 ・車1台駐車可能(車種制限有) ▼お部屋の特徴 ・LDKは約17.1帖とゆったりくつろげる空間 ・バルコニー3か所 ▼設備 ・家族との会話が弾む対面式キッチン ・窓があり、換気しやすく明るい浴室・洗面所 ・ 1・2階トイレ付 ・クローゼット等収納充実 ▼周辺環境 ・ マルエツ蕨店/約300m ・ セブンイレブン蕨中央3丁目店/約190m ■ ご希望の住まい探しをお手伝いします ━━━━━・・・ 物件の詳細・ご相談はお気軽にお問い合わせください。
| 所在地 | GoogleMaps |
| 価格 | 5,480万円 |
| 交通 | 京浜東北・根岸線 蕨駅 徒歩8分 |
| その他費用 | - |
| 間取り | 2SLDK ※S・サービススペースは納戸です |
| 建物面積 | 109.3㎡(約33.06坪) |
| 土地面積 | 61.67㎡(約18.65坪) |
| 築年月 | 2026年05月築(予定) |
| 建物構造 | 木造3階建 |
| 現況 | 未完成 |
| 駐車場 | 有 |
| 土地権利 | 所有権 |
| 地目 | 宅地 |
| 接道状況 | 西側: 約 4m (公道) |
| 建ぺい率 | 60% |
| 容積率 | 200% |
| 用途地域 | 第一種住居地域 |
| 都市計画 | 市街化区域 |
| 建築確認番号 | 第25UDI1S建03000号 |
| 備考 | ※2SSLDK 上記建物面積のうち1F車庫面積11.17㎡含む |
| 引渡時期 | 2026年05月下旬以降 |
| 取引態様 | 仲介 |
| 更新日 | 2026年02月14日 |
| 次回更新予定 | 2026年02月28日 |
| 物件番号 | FLEBGA03 |
最新のAI技術を活用した相談サービスです。
お客様一人ひとりのニーズに合わせて最適な情報をご提供します。
リハウスAIチャットの詳しい説明はこちら
GoogleMaps
| スーパー | マルエツ蕨店 約300m(徒歩4分) |
| スーパー | 西友蕨店 約550m(徒歩7分) |
| 公園 | 中央公園 約110m(徒歩2分) |
| 小学校 | 中央小学校 約500m(徒歩7分) |
| 中学校 | 東中学校 約1500m(徒歩19分) |
| その他利便施設1 | セブンイレブン蕨中央3丁目店 約190m(徒歩3分) |
| その他利便施設2 | ローソンストア100わらび中央店 約300m(徒歩4分) |
| その他利便施設3 | マツモトキヨシ蕨西口店 約500m(徒歩7分) |
0120-959-531
0120-959-531
物件の売却をご検討の方は、 はやめの査定依頼がおすすめです!
買い替えをご検討の方はこちら0120-959-531

